Y Beudy (West Barn), Dyffryn Ardudwy, LL44 2RQ

Offers in region of
£180,000
SSTC
This property listing is now SSTC

3 Bedroom Off-Plan for sale in Dyffryn Ardudwy

1 3 2
  • Architecturally Designed Properties
  • Grade II Listed
  • Unique and exciting project
  • Planning permission granted and ready for development
  • Located in a prime position
  • Traditional Stone Property
  • Planning application ref: NP5/58/LB459A

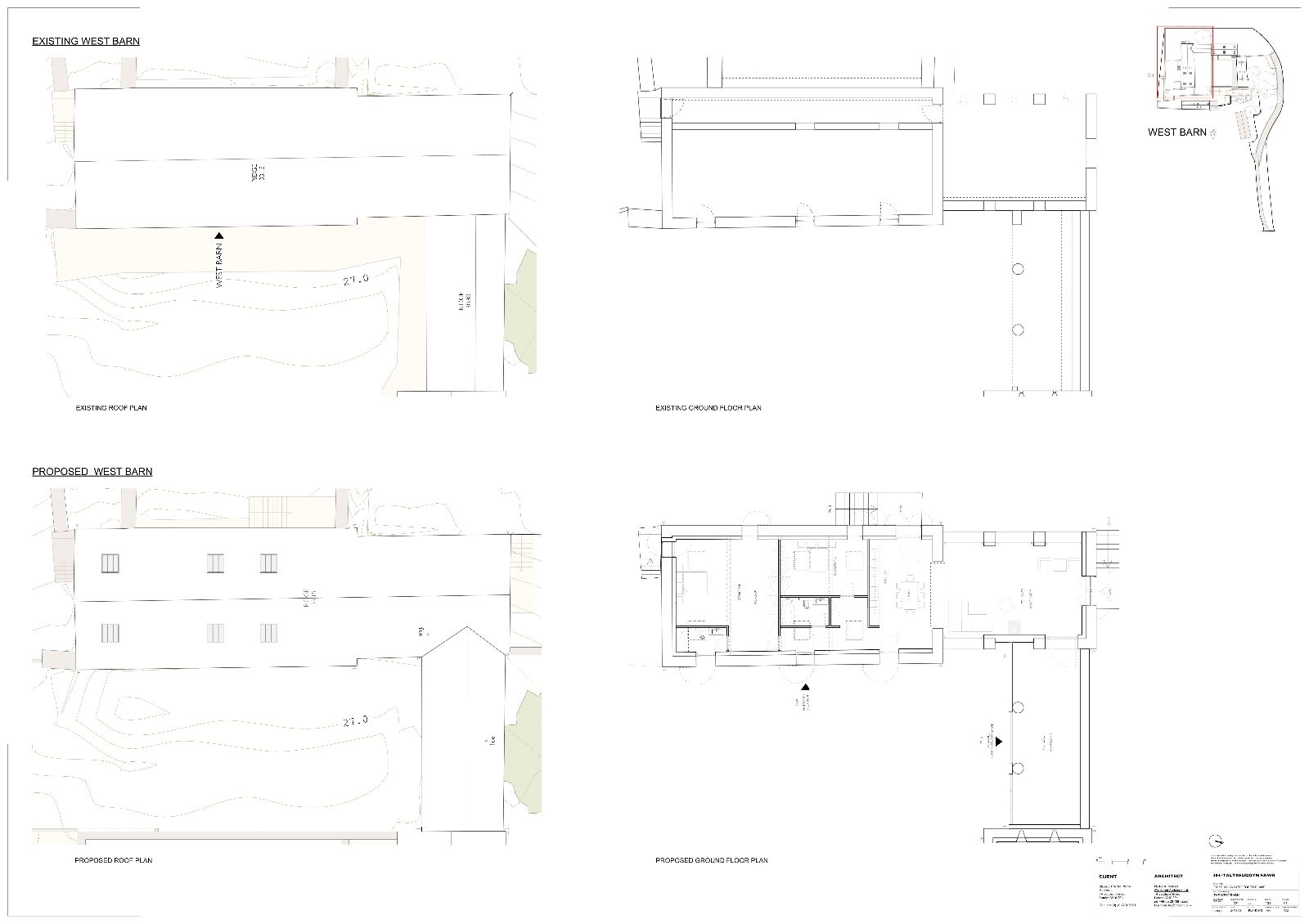
A unique and exciting opportunity to purchase a completely original and unrestored heritage listed stone barn with detailed planning consent to convert into an unrestricted residential property in a spectacular setting within the Snowdonia.

A unique and exciting opportunity to purchase a completely original and unrestored heritage listed stone barn with detailed planning consent to convert into an unrestricted residential property in a spectacular setting within the Snowdonia National Park. Taltreuddyn Fawr, lying between Dyffryn Ardudwy and Llanbedr, is a set of former barns which have been granted planning permission to be converted into luxury homes. The barns are in an extraordinary setting near the coast, each forming a part of the wonderfully intact historic farm courtyard. There will be only four properties and each one has been individually designed to enhance the character of the historic buildings. The architect developer of the project is retaining one of the buildings for his own use and the remaining three buildings are now for sale.

The architect/developer of the project would be happy to work with purchasers to personalise the design and handle the entire process of design, application for any planning amendments required as well as producing the construction information and administering the construction contract until the home is completed. This would be subject to agreeing costs for the management and construction costs, which are additional to the purchase price of the unrestored buildings.

Alternatively, the purchaser would be free to organise this work separately.

The architect developer will fund the completion of the common parts of the project (car parking area and lane).

Please note that there are three more barns available. Please use the following links to view:
North Barn: https://www.rightmove.co.uk/properties/145285535#/?channel=COM_BUY
East Barn: https://www.rightmove.co.uk/properties/145285538#/?channel=COM_BUY
South Barn: https://www.rightmove.co.uk/properties/145285541#/?channel=COM_BUY


Tenure: Freehold
Freehold plus 1/4 share of the freehold of the common parts

Directions
The Property is situated between the villages of Dyffryn Ardudwy and Llanbedr respectively. The Agent's signage shall direct prospective Purchasers from the Highway.


Extent of the Property
The extent of the properties can be found on the site plan. This will identify the four properties which are available and their respective key on the right hand side.

Viewing Arrangements
Any interested parties should register their interest with the selling agents and book any viewings through Walter Lloyd Jones.

Please take note that the Agent nor the Vendors shall not accept liability for any injury sustained by virtue of any unaccompanied viewing.

Important Information

  • This is a Freehold property.

Property Ref: 748451_RS0998

Share:

Similar Properties

6 Arthog Terrace, Arthog, LL39 1AQ

2 Bedroom Terraced House | Offers in region of £180,000

6 Arthog Terrace is an extremely well presented, 2 bedroom mid-terraced Grade II Listed cottage of traditional stone con...

7 Streamside Holiday Homes, Dyffryn Ardudwy, LL44 2BE

3 Bedroom Detached House | Offers in region of £179,950

7 Streamside is a detached 3 bedroom property, affording an exquisite tranquil setting. The house is of timber construct...

Apartment 9 , Cors Y Gedol, Barmouth LL42 1DP

2 Bedroom Apartment | Offers in region of £179,950

Apartment 9, Cors y Gedol is a luxury 2 bedroomed apartment in a prestigious Grade II Listed Building. Located in the to...

Bragdy, Meyrick Street, Dolgellau, LL401LS

2 Bedroom Terraced House | Offers in region of £185,000

Bragdy is a Grade II Listed mid-terraced 2 bedroom cottage, of traditional stone construction under a slated roof. There...

34 Belgrave Road, Fairbourne, LL38 2AZ

7 Bedroom End of Terrace House | Offers in region of £185,000

34 Belgrave Road is an impressive 7 bedroom, end-of-terrace residence offering spacious accommodation arranged over four...

2 Glan Y Werydd, St. Annes Square, Barmouth, LL42 1AS

3 Bedroom Terraced House | Offers in region of £185,500

2 Glan Y Werydd is a charming end terrace, 3 bedroom cottage located in the heart of Barmouth and is ideally positioned...

Walter Lloyd Jones & Co (Dolgellau)

Bridge Street, Dolgellau, Gwynedd, LL40 1AS

01341 422278

How much is your home worth?

Use our short form to request a valuation of your property.

Request a Valuation

Mortgage Calculator

Amount Borrowed: £
Total Amount Repayable: £
Total Monthly Payment: £
©2025 The Guild of Property Professionals. All rights reserved. Terms and Conditions | Privacy Policy | Cookie Policy | Complaints Policy | Members Login
The Guild of Property Professionals Trading Address: 121 Park Lane, London W1K 7AG. GPEA Limited. Registered in England & Wales.  Company No: 02819824.  Registered Office Address: 2 St. Stephen's Court, St. Stephen's Road, Bournemouth, Dorset, England, BH2 6LA.  VAT Registration No: 576 8795 61
Book a Property Valuation Update Cookies Preferences