Tonbridge Road, Bough Beech, Edenbridge

Guide Price
£950,000

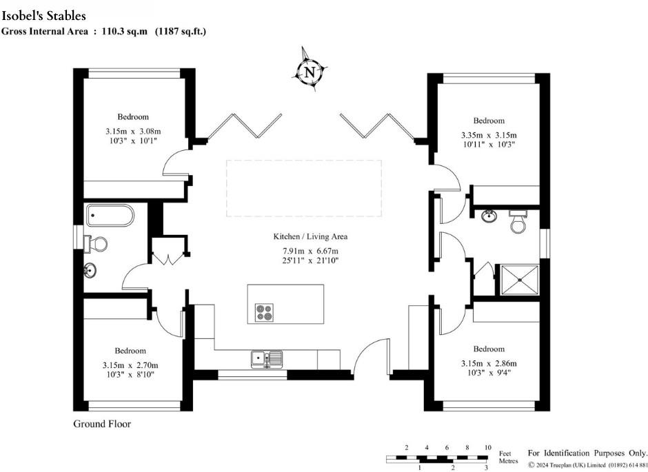
4 Bedroom Detached House for sale in Edenbridge

1 4 2
  • Detached New Build Timber Oak Framed
  • Single Storey Property in Rural Setting
  • Four Bedrooms
  • Open Plan Living/Kitchen/Dining
  • Gardens & Paddock

A newly built stunning timber frame home encompassing open plan living in a rural setting with paddock and garden. Ideal for those looking for equestrian facilities. Additional paddock available by separate negotiation. Approached through double electric gates over a gravel driveway. Isobel's Stables is an oak framed four bedroom property with paddock to the rear. All set within delightful grounds and gardens enjoying views over the surrounding countryside.

Accommodation - Isobel's Stables is a newly constructed oak-framed single storey property featuring underfloor heating throughout and oak beams. The bright and spacious open plan living area is in the heart for the home, flooded with light from the dual aspect windows and dramatic glass roof lantern. It includes a well-appointed hand painted kitchen with composite stone worktops built in double oven and fridge freezer and a large island unit incorporating a breakfast bar and induction hob. The spacious adjoining sitting and dining area with a wood burning stove is ideal for relaxing and entertaining. Bifold doors seamlessly connect to the outdoors and open onto a paved terrace that overlooks the gardens.

There are four double bedrooms with vaulted beamed ceilings and with two Jack & Jill shared bathrooms, one with bath and the other with a walk-in shower.

Surrounding the property are delightful gardens with picturesque views of the countryside and fields.

Paddock to the rear of the property

AGENTS NOTE
Separate 1.84 acre field available by separate negotiation

PROPERTY INFORMATION
Services: Mains Water and Electricity. Private Drainage.
Local Authority: Sevenoaks District Council, 01732 227000

Fixtures and fittings are excluded from the sale but may be available by separate negotiation.

Situation - Isobel's Stables occupies a convenient rural position between the National Trust Village of Chiddingstone, Bough Beech and Chiddingstone Causeway with its Post Office and Little Brown Jug Public House/Restaurant.

Wider shopping facilities are available from Sevenoaks, Tonbridge and Tunbridge Wells Town Centres all offer a wide range of shopping facilities as well as main line stations to London Charing Cross/Cannon Street. Similar services are available from Hildenborough Main Line Station. Nearby Penshurst Station has services to Tonbridge and Redhill.

There are a good number of well-regarded schools in the local area including Chiddingstone and Leigh Primary Schools. Grammar Schools for both Boys and Girls in Tonbridge and Tunbridge Wells as well as the Weald of Kent girl's grammar annexe in Sevenoaks. Tonbridge and Sevenoaks Public Schools and a variety of Preparatory Schools in and around Sevenoaks and Tonbridge including Hilden Grange, the Schools at Somerhill and New Beacon. Holmewood House at Langton Green and Walthamstow Hall for Girls.

The A21 gives access to the M25 and motorway network to Gatwick, Heathrow and Stansted airports, Channel Tunnel Terminus and Ports, as well as Ebbsfleet International Terminal and Bluewater.

Leisure facilities include Golf Courses at Hever and Nizels and Sailing at Bough Beech Reservoir. There is also a private health/fitness centre at Nizels. Tonbridge School Sports Centre.

Property Ref: 58845_34147940

Share:

Similar Properties

Hollow Trees Drive, Leigh, Tonbridge

4 Bedroom Detached House | Guide Price £950,000

This individual detached house is ideally positioned on a private no through lane, close to local primary school and vil...

Burton Avenue, Leigh - Chain Free

5 Bedroom Detached House | Offers in excess of £880,000

This stylish five bedroom detached family home, built by Bellway Homes in 2018, is situated within the desirable 1811 de...

Tonbridge Road, Hildenborough

4 Bedroom Detached House | Guide Price £875,000

Beautifully presented extended detached Victorian four bedroom family home, offering excellent family accommodation and...

Hildenbrook Farm, Hildenborough

3 Bedroom Semi-Detached House | Guide Price £955,000

This stunning attached single roundel Kentish oast house occupies a superb plot within the Hildenbrook Farm development...

French Street, Westerham

3 Bedroom Semi-Detached House | Guide Price £1,000,000

Guide: £1,000,000 to £1,100,000This idyllic country cottage is one of just a handful of sought after properties within t...

Hildenbrook Farm, Hildenborough

4 Bedroom Detached House | Guide Price £1,075,000

This stylish and uniquely designed barn style detached four bedroom family home offers a rare opportunity in the charmin...

James Millard Independent Estate Agents (Hildenborough)

178 Tonbridge Road, Hildenborough, Kent, TN11 9HP

01732 834835

How much is your home worth?

Use our short form to request a valuation of your property.

Request a Valuation

Mortgage Calculator

Amount Borrowed: £
Total Amount Repayable: £
Total Monthly Payment: £
©2025 The Guild of Property Professionals. All rights reserved. Terms and Conditions | Privacy Policy | Cookie Policy | Complaints Policy | Members Login
The Guild of Property Professionals Trading Address: 121 Park Lane, London W1K 7AG. GPEA Limited. Registered in England & Wales.  Company No: 02819824.  Registered Office Address: 2 St. Stephen's Court, St. Stephen's Road, Bournemouth, Dorset, England, BH2 6LA.  VAT Registration No: 576 8795 61
Book a Property Valuation Update Cookies Preferences