Sentrys Orchard, Exminster, EX6

£350,000

4 Bedroom Semi-Detached House for sale in Exeter

2 4 2

A four bedroom semi detached property situated in the popular and sought after village of Exminster with good size living acommodaton, modern fitted kitchen and bathroom, master en-suite with enclosed rear garden and garage. The property is within close proximity to local shops, school, public house, local bus routes and main commuter links to the city. EPC C, Council Tax Band D, Freehold.

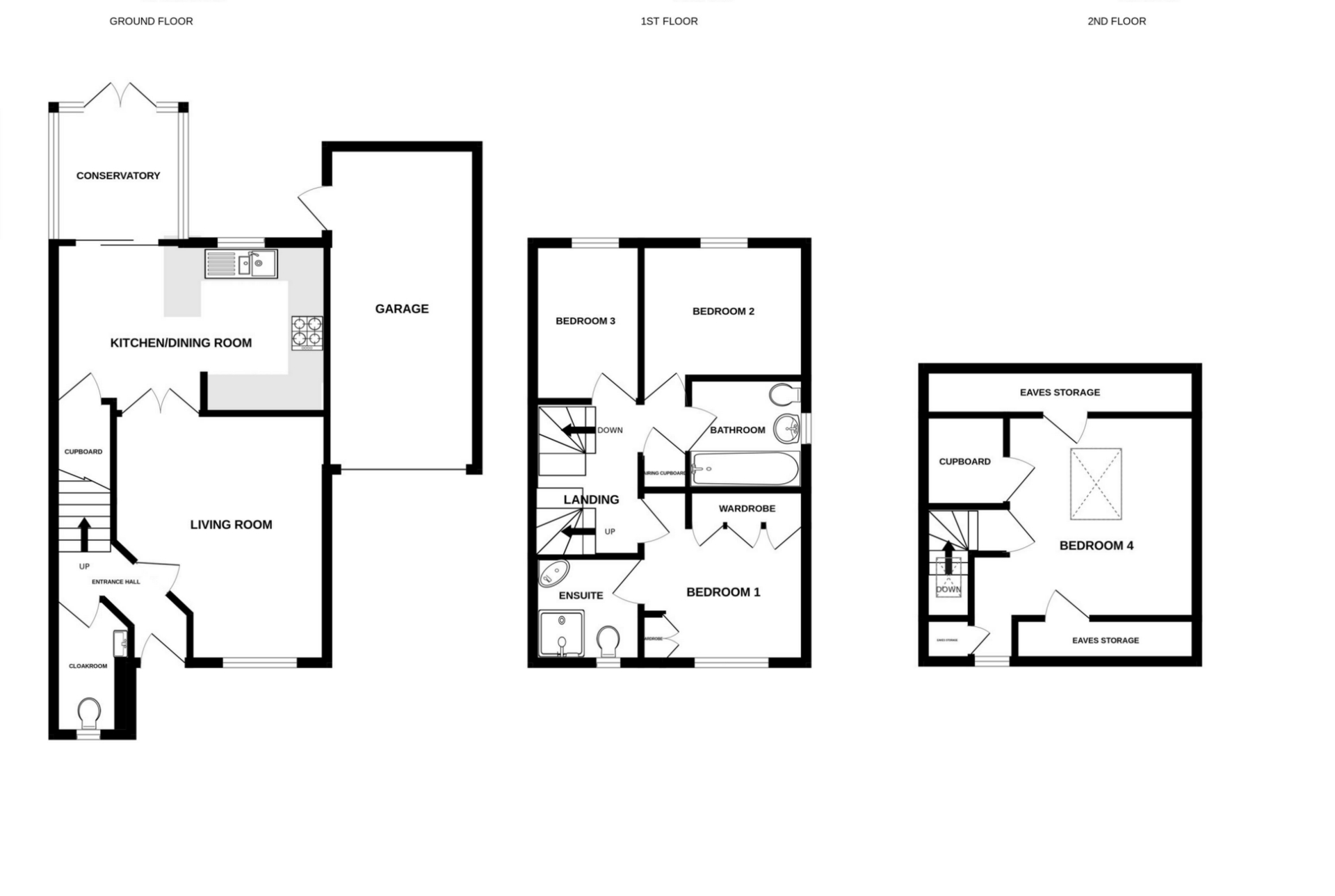
FRONT DOOR TO..

HALLWAY: Stairs to first floor landing, radiator, door to WC, door to the lounge.

WC: Close coupled WC, wash hand basin, radiator, obscure double glazed window to the front.

LOUNGE: 4.3m x 3.7m (14'1" x 12'2"), Double glazed window to the front, radiator, doors to..

KITCHEN/DINER: 4.7m x 3.0m (15'5" x 9'10"), Base cupboards and drawers with worktop over, one and a half bowl sink and drainer, space for cooker, space for fridge freezer, wall mounted cupboards, radiator understair storage cupboard, double glazed window to the rear, double glazed sliding doors to the conservatory.


CONSERVATORY: 2.4m x 2.2m (7'10" x 7'3"), Double glazed windows to the rear and the side, double glazed door to the rear garden.

FIRST FLOOR LANDING: Stairs to second floor landing, storage cupboard, doors to..

BEDROOM 1: 3.0m x 3.0m (9'10" x 9'10"), Double glazed window to the front, radiator, door to..

EN-SUITE: Close coupled WC, wash hand basin with storage under, shower cubicle with shower over, heated towl rail, obscure double glazed window to the front.

BEDROOM 2: 2.8m x 2.4m (9'2" x 7'10"), Double glazed window to the rear, radiator.

BEDROOM 3: 2.8m x 1.8m (9'2" x 5'11"), Double glazed window to the rear, radiator.

BATHROOM: Close coupled WC, wash hand basin, panelled bath with shower attachment, heated towel rail, obscure double glazed window to the side.

SECOND FLOOR LANDING: Roof window, door to..

BEDROOM 4: 3.5m x 3.2m (11'6" x 10'6"), Roof window to front and rear, eaves storage, radiator, storage cupboard.

OUTSIDE: To the front of the property is a driveway leading to the garage. To the rear is an enclosed garden laid ot paved patio with steps leading to a section of stone chippings

AGENTS NOTE: The property is within Teignbridge District Council.

IMPORTANT NOTICE: Important notice - limited seller information
This property is being sold without an occupier or previous owner available to provide the usual property information. As such, we are unable to offer first-hand details regarding its condition, any alterations, boundaries, neighbour relations, or other matters that would typically be answered by an owner-occupier.
Consequently, our knowledge of the property is more limited than in a standard owner-occupied sale, and some material information may not be known. While we will take all reasonable steps to supply accurate information, prospective buyers are strongly advised to carry out all standard checks, inspections, and searches. Buyers should also inform their Solicitor of this situation and obtain appropriate legal advice.

Important Information

  • This is a Freehold property.

Property Ref: 11602779_FRASE003880

Share:

Similar Properties

Cowick Lane, St Thomas, EX2

3 Bedroom Semi-Detached House | £350,000

A well presented three bedroom semi detached property situated in the popular residential area of St Thomas with good si...

Broadparks Avenue, Pinhoe, EX4

2 Bedroom Bungalow | £350,000

A renovated two bedroom bungalow positioned in the popular location of Pinhoe with modern fitted kitchen and shower room...

Newlands Close, St Thomas, EX2

3 Bedroom Semi-Detached House | Offers in excess of £350,000

A well presented three bedroom semi detached property situated in a popular residential area within close proximity to l...

Elgar Close, Broadfields, EX2

3 Bedroom Detached House | £360,000

A three bedroom detached property positioned in the popular residential area of Broadfields with good size living accomm...

Franklyn Drive, St Thomas, EX2

3 Bedroom Terraced House | £365,000

A well presented three bedroom terrace property situated in the popular residential area of St Thomas with good size liv...

Shelton Place, North Street, EX1

4 Bedroom Terraced House | Offers in excess of £375,000

A three storey terrace house situated in the popular residential area of Heavitree within close proximity to local schoo...

Fraser & Wheeler (Exeter) (St Thomas)

St Thomas, Exeter, EX4 1AW

01392 420410

How much is your home worth?

Use our short form to request a valuation of your property.

Request a Valuation

Mortgage Calculator

Amount Borrowed: £
Total Amount Repayable: £
Total Monthly Payment: £
©2025 The Guild of Property Professionals. All rights reserved. Terms and Conditions | Privacy Policy | Cookie Policy | Complaints Policy | Members Login
The Guild of Property Professionals Trading Address: 121 Park Lane, London W1K 7AG. GPEA Limited. Registered in England & Wales.  Company No: 02819824.  Registered Office Address: 2 St. Stephen's Court, St. Stephen's Road, Bournemouth, Dorset, England, BH2 6LA.  VAT Registration No: 576 8795 61
Book a Property Valuation Update Cookies Preferences