Hillside Road, Falmouth, TR11

Guide Price
£199,500

2 Bedroom Flat for sale in Falmouth

1 2 1
  • Spacious Two Bedroom Apartment
  • Open Plan Living
  • Lift Access
  • Allocated Parking
  • Well Presented
  • Close Proximity to Swanpool Beach & Nature Reserve
  • No Onward Chain
  • PLEASE WATCH OUR WALK THROUGH VIDEO TOUR

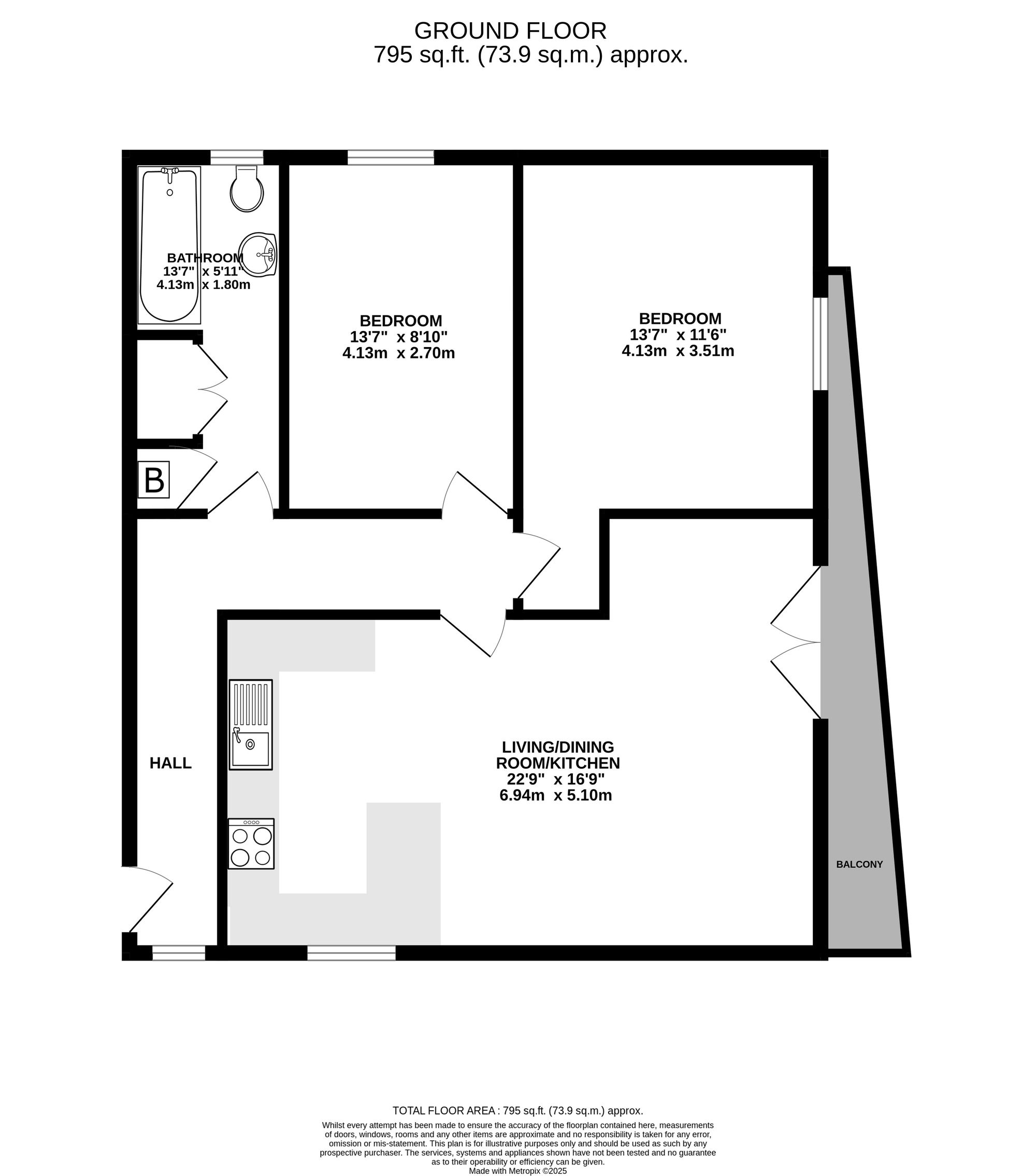
THE PROPERTY

This spacious and well-presented two-bedroom top floor apartment is ideal for first-time buyers, investors, or those seeking a convenient bolt hole. Located on the upper floor of a modern development, with the benefit of lift access, the apartment enjoys elevated outlooks with greenery views. The open-plan living area provides a great sense of space and flow, ideal for both relaxing and entertaining while both bedrooms are generously sized, easily accommodating double beds and additional storage, making the layout practical and versatile. The apartment also benefits from a covered, allocated parking space and no onward chain.

THE LOCATION

The Spinnakers is on the outskirts of Falmouth (in the Boslowick area), a popular location for those seeking a Falmouth address but with quiet residential living at heart. It is convenient too, about one mile from the town, harbourside and seafront, whilst local shops and two primary schools are within a few minutes walk. The Co-op is a welcome addition and a great facility on ones doorstep, opening early 'til late.

Energy Efficiency Current: 81.0
Energy Efficiency Potential: 81.0

Important Information

  • This is a Leasehold property.
  • This Council Tax band for this property is: B

Property Ref: 04288798-379a-4318-9d34-455aef437fc9

Share:

Similar Properties

Calver Close, Penryn, TR10

2 Bedroom Flat | Guide Price £195,000

Top floor apartment with countryside and river views. Quiet with only 3 units in the block. 2 bedrooms, open plan living...

Penwerris Lane, Falmouth, TR11

3 Bedroom Terraced House | Guide Price £195,000

Three-bedroom terraced home with potential for modernisation, boasting river and sea views from box-bay window, south-we...

Gyllyngvase Road, Anchorage Apartments Gyllyngvase Road, TR11

1 Bedroom Flat | Guide Price £180,000

So very close to Gyllyngvase beach, this one bedroom apartment offers a wonderful place to live or a lucrative investmen...

Falmouth, TR11

2 Bedroom Flat | Guide Price £210,000

Well-presented top-floor apartment near Falmouth amenities and Swanpool Beach. Two double bedrooms, contemporary kitchen...

Grove Place, Falmouth, TR11

1 Bedroom Flat | Guide Price £220,000

This well proportioned, one bedroom apartment is set within a grade II listed Regency style former town house and boasts...

Emslie Road, Carnes Court Emslie Road, TR11

1 Bedroom Flat | Guide Price £220,000

A superb and well-presented, one bedroom, first floor, lift served apartment set within this intimate McCarthy & Stone r...

Heather & Lay (Falmouth)

Falmouth, Cornwall, TR11 3DN

01326 319767

How much is your home worth?

Use our short form to request a valuation of your property.

Request a Valuation

Mortgage Calculator

Amount Borrowed: £
Total Amount Repayable: £
Total Monthly Payment: £
©2025 The Guild of Property Professionals. All rights reserved. Terms and Conditions | Privacy Policy | Cookie Policy | Complaints Policy | Members Login
The Guild of Property Professionals Trading Address: 121 Park Lane, London W1K 7AG. GPEA Limited. Registered in England & Wales.  Company No: 02819824.  Registered Office Address: 2 St. Stephen's Court, St. Stephen's Road, Bournemouth, Dorset, England, BH2 6LA.  VAT Registration No: 576 8795 61
Book a Property Valuation Update Cookies Preferences