The Greendale, Fareham

Guide Price
£325,000
SSTC
This property listing is now SSTC

3 Bedroom Semi-Detached House for sale in Fareham

1 3 1
  • Popular residential location
  • In need of modernising
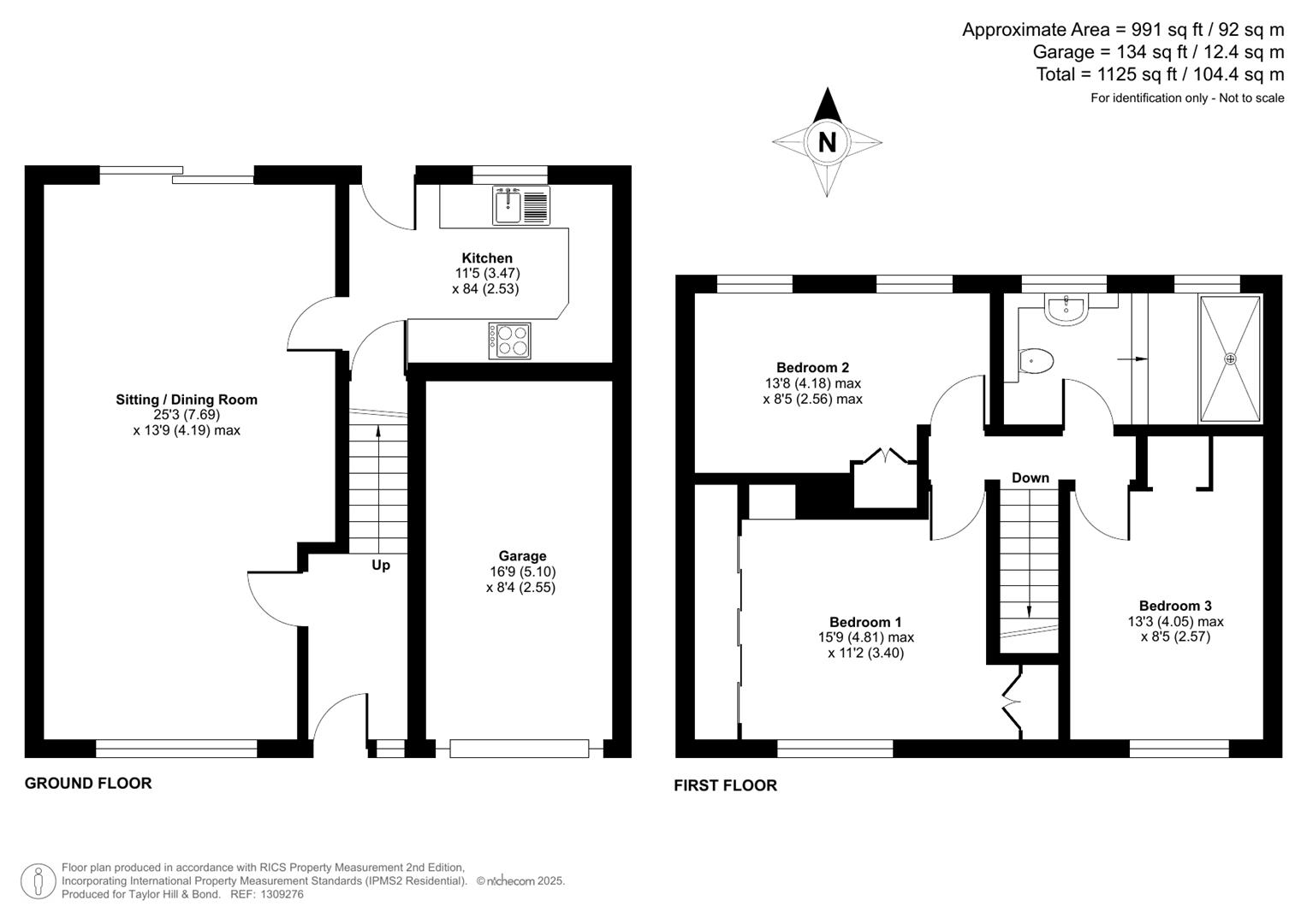
  • Extensive block paved driveway parking and single garage
  • Generous Sitting/Dining Room extending to 26ft in length
  • Worcester boiler replaced
  • EPC- D

Situated in a popular residential location close to schools and amenities, a semi detached property in need of modernising, offered with no onward chain.

The property benefits from three double bedrooms and a substantial sitting room/dining room which is dual aspect extending to 25'3" feet in length. The kitchen has ample cupboards with an integral fridge, dishwasher, electric hob and oven. On the first floor is a generous shower room. The property benefits from extensive block paved driveway parking to the front with a gate leading to the rear garden, which is low maintenance with Astroturf and a paved terrace.

SUMMARY OF FEATURES:
No onward chain; Three double bedrooms; In need of updating; Ample cupboards to kitchen with integral fridge, dishwasher, electric oven and hob; Gas fire to sitting room; Close to amenities along Highlands Road

GENERAL INFORMATION:
TENURE: Freehold; SERVICES: Mains gas, electricity, water and drainage; LOCAL AUTHORITY: Fareham Borough Council; TAX BAND: C

DISTANCES:
Local amenities- 0.4 miles; Orchard Lea primary & junior school - 0.5 miles; Bus stops- 0.3 miles; Train station- 1.5 miles; Fareham town Centre- 2.2 miles

Property Ref: 33983982

Share:

Similar Properties

Southfields, Portchester

3 Bedroom Semi-Detached House | Guide Price £320,000

Conveniently located in a quiet development built by Persimmon Homes in 2019 with green open spaces nearby and Portchest...

Kingston Gardens, Fareham

3 Bedroom Terraced House | Guide Price £320,000

Situated in a popular residential location close to schools and amenities, a beautifully presented and upgraded family h...

West Street, Titchfield Village

2 Bedroom End of Terrace House | Guide Price £312,500

*** NO ONWARD CHAIN***Situated in the heart of Titchfield village and within easy walking distance to amenities, a beaut...

Sycamore Close, Titchfield Common

3 Bedroom Semi-Detached House | Guide Price £342,500

Situated in a much sought-after residential location, close to countryside and coastal walks, bus routes and amenities,...

Leep Lane, Alverstoke

3 Bedroom Bungalow | Guide Price £350,000

A deceptively spacious three bedroom bungalow situated in a peaceful tucked away lane close to Alverstoke Village. Leep...

Fair Acre Walk, Fareham

3 Bedroom Detached House | Guide Price £350,000

Situated in an extremely sought-after residential location equidistant between the village of Titchfield and the market...

Taylor Hill & Bond (Titchfield)

Titchfield, Fareham, Titchfield, Hampshire, PO14 4RT

01329 844812

How much is your home worth?

Use our short form to request a valuation of your property.

Request a Valuation

Mortgage Calculator

Amount Borrowed: £
Total Amount Repayable: £
Total Monthly Payment: £
©2026 The Guild of Property Professionals. All rights reserved. Terms and Conditions | Privacy Policy | Cookie Policy | Complaints Policy | Members Login
The Guild of Property Professionals Trading Address: 121 Park Lane, London W1K 7AG. GPEA Limited. Registered in England & Wales.  Company No: 02819824.  Registered Office Address: 2 St. Stephen's Court, St. Stephen's Road, Bournemouth, Dorset, England, BH2 6LA.  VAT Registration No: 576 8795 61
Book a Property Valuation Update Cookies Preferences