BEACONSFIELD ROAD, FAREHAM

£279,950
SSTC
This property listing is now SSTC

3 Bedroom End of Terrace House for sale in Fareham

2 3 1
  • THREE BEDROOM FAMILY HOME
  • CUL-DE-SAC LOCATION
  • WELL-PRESENTED
  • OPEN-PLAN 'L' SHAPED KITCHEN/DINER
  • LOUNGE
  • SHOWER ROOM
  • LEAN-TO
  • SIZEABLE REAR GARDEN
  • PARKING AREA TO REAR
  • EPC RATING C

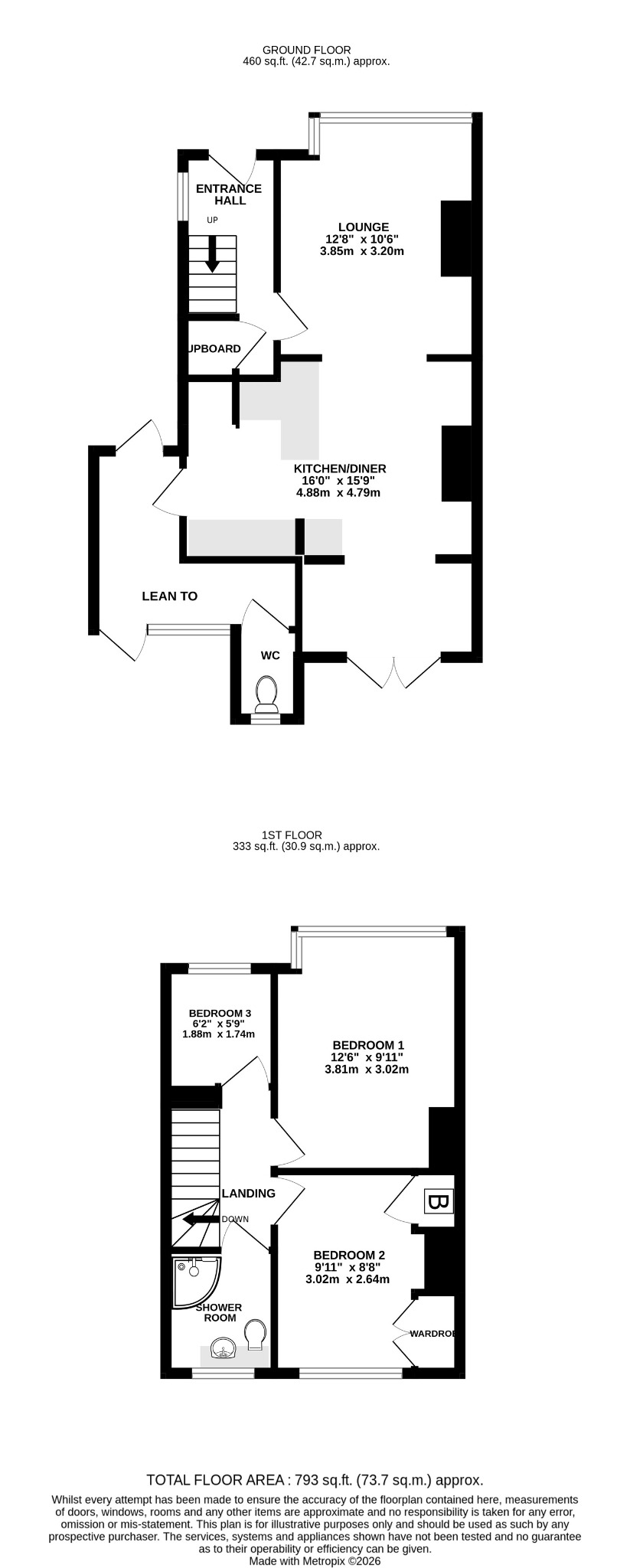
DESCRIPTION
This three bedroom end of terrace is located in a cul-de-sac just south of Fareham town centre with amenities nearby and within a short distance of Fareham Creek. The well-presented internal accommodation comprises; entrance hall, lounge, open plan 'L' shaped kitchen/diner, lean-to and a WC. To the first floor, there are three bedrooms and a shower room. Outside, there is a sizeable well-maintained rear garden with a PARKING area at the bottom which is accessible from a service road to the rear of the property. Viewing is strongly recommended by the sole agents.

ENTRANCE HALL
UPVC double glazed front door. Double glazed obscure window to the side aspect. Picture rail. Staircase rising to the first floor. Under stairs storage cupboard. Wood effect flooring.

LOUNGE
Double glazed bay window to the front aspect. Picture rail. Ornate fireplace. Radiator. Continuation of the flooring from the entrance hall. Opening to:

KITCHEN/DINER

DINING AREA
Double glazed French doors leading to the rear garden. Picture rail. Electric coal effect fireplace. Continuation of the flooring from the lounge.

KITCHEN AREA
Window to the rear aspect. Door leading to the lean-to. Matching wall and base units with contrasting work tops. Inset stainless steel sink and drainer. Four ring gas hob with extractor above. Space for integral cooker. Space for fridge/freezer. Wood effect flooring.

LEAN-TO
Double glazed door leading to the front and rear aspect. Double glazed window to the rear aspect. Space for washing machine and tumble dryer and additional fridge or freezer.

WC
Obscure window to the rear aspect. Low level WC.

FIRST FLOOR
LANDING

Obscure window to the side aspect. Access to part-boarded loft with light.

BEDROOM ONE
Double glazed window to the front aspect. Picture rail. Radiator.

BEDROOM TWO
Double glazed window to the rear aspect. Picture rail. Storage cupboard with wall mounted 'Logic' combination boiler. Fitted wardrobe. Radiator.

BEDROOM THREE
Double glazed window to the front aspect. Picture rail. Radiator. Wood effect flooring.

SHOWER ROOM
Double glazed obscure window to the rear aspect. Suite comprising shower cubicle. Vanity unit with wash hand basin. Concealed low level WC. Part tiled walls. Radiator. Wood effect flooring.

OUTSIDE
To the front of the property, there is a path leading to the front door. Low maintenance shingled front garden and a gate leading to the lean-to.

A particular feature of this home is the sizeable rear garden which is predominantly laid to lawn with an initial patio area and PARKING located at the bottom of the garden. A service road provides access to this parking area.

COUNCIL TAX
Fareham Borough Council. Tax Band B. Payable 2025/2026. £1,683.54.

Important Information

  • This is a Freehold property.
  • This Council Tax band for this property is: B

Property Ref: PFHCC_702768

Share:

Similar Properties

CATISFIELD LANE, CATISFIELD

2 Bedroom Apartment | £279,950

SHARE OF THE FREEHOLD. This charming Grade II listed top floor (second floor) apartment is positioned within a most impr...

BELVOIR CLOSE, FAREHAM

3 Bedroom Semi-Detached House | £279,950

NO FORWARD CHAIN. A three bedroom semi-detached house, which occupies a larger than average plot backing onto the Gillie...

GORDON ROAD, FAREHAM

3 Bedroom Terraced House | £279,950

An excellent opportunity to purchase this three bedroom house located in the heart of Fareham town centre with the added...

TENNYSON GARDENS, FAREHAM

3 Bedroom Semi-Detached Bungalow | £280,000

NO FORWARD CHAIN. An excellent opportunity to purchase this extended three bedroom semi-detached bungalow located in a c...

NEW ROAD, FAREHAM

3 Bedroom End of Terrace House | £280,000

NO FORWARD CHAIN. This three bedroom end of terraced house is ideally located in the heart of Fareham town centre and wi...

LONSDALE AVENUE, PORTCHESTER

2 Bedroom Semi-Detached Bungalow | £280,000

NO FORWARD CHAIN. A two bedroom semi-detached bungalow located close to Portchester foreshore which requires general upd...

Pearsons Estate Agents (Fareham)

21 West Street, Fareham, Hampshire, PO16 0BG

01329 288241

How much is your home worth?

Use our short form to request a valuation of your property.

Request a Valuation

Mortgage Calculator

Amount Borrowed: £
Total Amount Repayable: £
Total Monthly Payment: £
©2026 The Guild of Property Professionals. All rights reserved. Terms and Conditions | Privacy Policy | Cookie Policy | Complaints Policy | Members Login
The Guild of Property Professionals Trading Address: 121 Park Lane, London W1K 7AG. GPEA Limited. Registered in England & Wales.  Company No: 02819824.  Registered Office Address: 2 St. Stephen's Court, St. Stephen's Road, Bournemouth, Dorset, England, BH2 6LA.  VAT Registration No: 576 8795 61
Book a Property Valuation Update Cookies Preferences