Kiln Lane, Lower Bourne, Farnham, Surrey, GU10

Guide Price
£665,000
SSTC
This property listing is now SSTC

3 Bedroom House for sale in Farnham

3

A well proportioned 3 bedroom semi-detached family home in a peaceful setting in the highly popular village of Lower Bourne

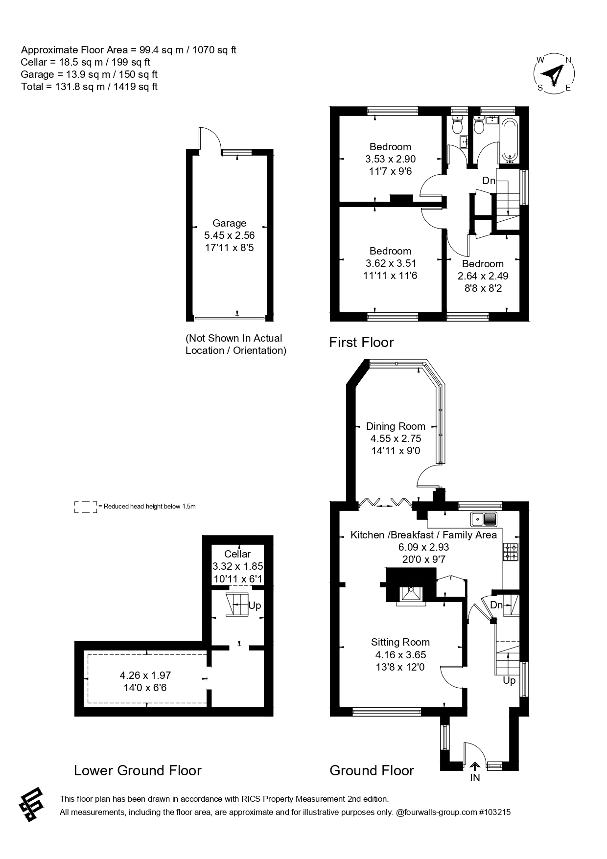
Property Summary    A well maintained 3 bedroom semi offering generous accommodation, excellent parking, garage and secluded garden, making an ideal home for families and within close proximity to excellent local schools.

Front door to: Reception Hall    With study recess, arch through to:

Hallway    With staircase to first floor.

Sitting Room    Front aspect, attractive fireplace housing log burning stove, arch to:

Kitchen/Breakfast/Family area    Rear aspect. Extremely well fitted and comprising a wealth of eye and base level units, one and a half bowl sink unit, integrated dishwasher and washer/dryer, integrated fridge/freezer, electric double oven and gas hob with extractor above, cupboard housing Worcester gas fired boiler, understairs storage cupboard with trap door to Cellar. Glass doors to:

Cellar    Good head height and providing excellent storage, light.

Dining/Family Room    Delightful outlook and views over the rear garden, casement door to rear garden.

First Floor Landing    Access to loft, airing cupboard housing hot water tank, slatted shelving over.

Bedroom    Front aspect, pleasant outlook, large double wardrobe.

Bedroom    Rear aspect, lovely outlook to rear.

Bedroom    Front aspect, built-in wardrobe.

Bathroom    Frosted window, modern suite in classic white, tile enclosed bath, over the bath shower and glass screen, w.c., vanity wash hand basin, part tiled walls, heated towel rail.

Additional Separate w.c.    Frosted window, w.c., wash hand basin, part tiled walls.

Outside

To the front    Driveway providing parking for approximately four cars. Raised flower and shrub border, enclosed by mature hedging, gated access to rear.

Garage    Up and over door, power and light, consumer unit, door to rear.

Rear garden    Attractive paved patio/sun terrace to shaped area of lawn, mature flower and shrub borders, screened by fencing and mature hedging, offering a high degree of privacy and seclusion.

General    Services - Mains water, drainage and electricity. Gas central heating. Double glazing.
Local Authority - Waverley B. C., The Burys, Godalming GU7 1HR 01483 523333
Council Tax - Band E with an annual charge for the year ending 31.03.26 of £3,032.60.
Tenure - Freehold.
EPC rating - C
Mobile signal available. Ultrafast broadband (via Ofcom).

Situation    The property is convenient to the highly desirable village of Lower Bourne, offering a store/post office, chemist, Public House, Doctors surgery, Veterinary clinic, the Bourne Green, Bourne Woods and the renowned South Farnham School.

Farnham    The Georgian town centre of Farnham offers a comprehensive range of shopping, recreational and cultural pursuits, with bustling cobbled courtyards boasting many shops, cafés and an excellent choice of restaurants. There is a Waitrose, Sainsbury's, Leisure Centre, David Lloyd Club, local Rugby, Football and Tennis clubs, and Farnham's historic deer park offering over 300 acres of beautiful open countryside, providing opportunities for walking, cycling and dog walking. There is an excellent choice of both state and private schools in the area including South Farnham School, Weydon Secondary School, Waverley Abbey Junior School, Frensham Heights, Edgeborough, St. Edmund's and Barfield. Further opportunities exist within the immediate area for walking, riding and cycling with much of the neighbouring land belonging to the National Trust. Sailing is also available at the nearby Frensham Great Pond.

Communications    Communications are first class with the A31 and mainline station about 2 miles and the A3 about 7 miles. The A331 Blackwater Valley road links Farnham with the M3, M25 and Heathrow.

Location    Farnham town centre 1.8 miles (Waterloo from 53 minutes)
Guildford 12 miles (Waterloo from 38 minutes)
A31/A3 2 miles, London 40 miles   
(All distances and times are approximate)

Directions    Leave Farnham via the A287, Firgrove Hill, and continue to the top. At the traffic lights go straight across, continue past the Fox public house and at the crossroads turn right into Burnt Hill Road. Continue along passing the Royal British Legion on the right, Turn right into Kiln Lane where the property can be found on the left.

Important Information

  • This is a Freehold property.

Property Ref: AND260048

Share:

Similar Properties

Shady Nook, Farnham, Surrey, GU9

4 Bedroom House | Guide Price £650,000

A well presented 4 bedroom detached family home situated in this highly popular development most convenient to Farnham P...

Moor Park House Way, Farnham, Surrey, GU10

3 Bedroom House | Guide Price £650,000

A stunning 3 bedroom mews style house forming part of a historic country estate in the highly favoured Moor Park set wit...

Coniston Drive, Farnham, Surrey, GU9

4 Bedroom House | Guide Price £650,000

An attractive and well-presented 4 bedroom detached family home occupying a delightful plot in this highly popular devel...

Wentworth Close, Weybourne, Farnham, Surrey, GU9

3 Bedroom House | Guide Price £675,000

A well presented 3/4 bedroom detached family home in a sought after location convenient to excellent schools and local a...

Coniston Drive, Farnham, Surrey, GU9

4 Bedroom House | Guide Price £695,000

A well presented 4 bedroom detached family home offering spacious accommodation with garage, parking and secluded rear g...

Little Green Lane, Farnham, Surrey, GU9

4 Bedroom House | Guide Price £695,000

A spacious 4 bedroom detached family home offering tremendous scope for improvement and situated in a highly popular loc...

Andrew Lodge Estate Agents (Farnham)

Farnham, Surrey, GU9 7PD

01252 717705

How much is your home worth?

Use our short form to request a valuation of your property.

Request a Valuation

Mortgage Calculator

Amount Borrowed: £
Total Amount Repayable: £
Total Monthly Payment: £
©2026 The Guild of Property Professionals. All rights reserved. Terms and Conditions | Privacy Policy | Cookie Policy | Complaints Policy | Members Login
The Guild of Property Professionals Trading Address: 121 Park Lane, London W1K 7AG. GPEA Limited. Registered in England & Wales.  Company No: 02819824.  Registered Office Address: 2 St. Stephen's Court, St. Stephen's Road, Bournemouth, Dorset, England, BH2 6LA.  VAT Registration No: 576 8795 61
Book a Property Valuation Update Cookies Preferences