West Parley, Ferndown, Dorset

£650,000

4 Bedroom Detached House for sale in Ferndown

1 4 2

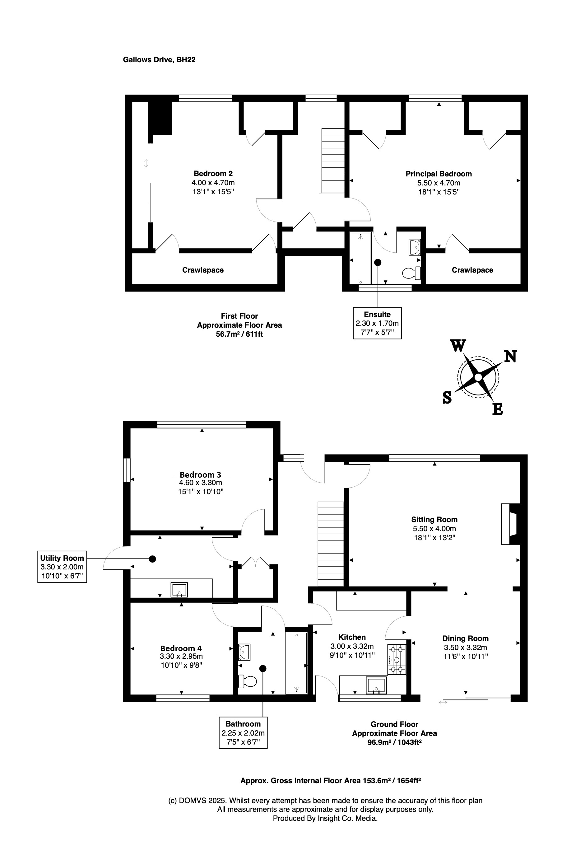
This attractive home is arranged over two floors, with the main living spaces on the ground floor alongside two bedrooms, and further accommodation above. The front door opens into a central HALLWAY, providing direct access to all principal rooms, as clearly shown on the floor plan. The hallway is wide and welcoming, setting the tone for the bright and spacious accommodation throughout.

The SITTING ROOM, situated to the front of the property, is generously sized and filled with natural light, with a log burner providing a warm and inviting focal point. Its proportions make it ideal for both relaxed family living and more formal entertaining. At the rear, the DINING ROOM enjoys sliding doors that open directly onto the garden, filling the space with natural light and creating a seamless connection between indoor and outdoor living. This room is well sized, comfortably accommodating larger gatherings while remaining perfectly suited to everyday family use.

The KITCHEN is fitted with solid wooden worktops, a Rangemaster™ cooker, and a Belfast sink, with ample space for additional appliances, providing a functional and attractive workspace. A separate UTILITY ROOM adds practical storage and workspace, keeping daily household activity separate from the main kitchen. Together with BEDROOM THREE, BEDROOM FOUR, and the adjacent SHOWER ROOM, the ground floor offers considerable flexibility, with the possibility of utilising the Utility room as a separate kitchenette, this portion of the house makes a natural, generous SECONDARY ACCOMMODATION – ideal for relatives or potential income (subject to any consents). BEDROOM THREE is particularly generous, easily serving as an additional sitting room or a large home office, while BEDROOM FOUR is also spacious, providing versatile accommodation for guests, family, or ancillary use.

Upstairs, the PRINCIPAL BEDROOM benefits from a contemporary ENSUITE BATHROOM with underfloor heating and motion-sensor lighting, while BEDROOM TWO enjoys far reaching views. All upper rooms are well proportioned, straightforward in layout, and designed to maximise light and space throughout, providing comfortable and practical accommodation.

Outside
The property sits within a private and secure GARDEN, offering a sense of seclusion and tranquillity. The outdoor space is well proportioned, with wide areas of lawn bordered by established trees and planting, creating a peaceful setting that feels separate from neighbouring properties. A paved TERRACE runs along the rear of the house, expanding around the side of the garden, providing a practical area for outdoor dining and entertaining. The garden's layout allows for flexible use, whether for family activities or relaxing in privacy. The property benefits from secure access, making the outside space ideal for children, pets, and general family use.

Location
Positioned in a highly desirable residential area of West Parley, the property is within easy reach of excellent local schools, amenities, and pubs. It is ideally placed for access to beautiful green spaces, with a short walk to the River Stour and the Stour Valley Way, offering scenic riverside walks through woodland and heathland, including Poor Common.

For more extensive shopping, dining, and leisure options, Ferndown town centre is just a short distance away, while regular bus routes provide convenient connections to Wimborne, Bournemouth, and Poole, each offering a wide range of shops, bars, restaurants, and leisure facilities, as well as award-winning sandy beaches. The nearby A31 ensures quick access to the New Forest, Southampton, London, and beyond, making this an excellent location for commuters as well as those seeking a peaceful yet well-connected setting.

Directions
Use what3words.com to navigate to the exact spot. Search using: image.guard.afford

Four generous double bedrooms
Flexible ground floor layout
Potential self-contained living/secondary accommodation
Private rear garden
Ample parking
Well finished


LOCAL AUTHORITY Dorset Council. Tax band E.

ROOM MEASUREMENTS Please refer to floor plan.

SERVICES Mains drainage, electricity & gas. Gas central heating.

BROADBAND Standard download 3 Mbps, upload 0.5 Mbps. Superfast download 70 Mbps, upload 18 Mbps. Ultrafast download 1000 Mbps, upload 1000 Mbps. Please note all available speeds quoted are 'up to'.

MOBILE PHONE COVERAGE For further information please go to Ofcom website.

TENURE Freehold.

LETTINGS Should you be interested in acquiring a Buy-to-Let investment, and would appreciate advice regarding the current rental market, possible yields, legislation for landlords and how to make a property safe and compliant for tenants, then find out about our Investor Club Our expert lettings team will be pleased to provide you with additional, personalised support; just call on the branch telephone number to take the next step.

IMPORTANT NOTICE DOMVS and its Clients give notice that: they have no authority to make or give any representations or warranties in relation to the property. These particulars do not form part of any offer or contract and must not be relied upon as statements or representations of fact. Any areas, measurements or distances are approximate. The text, photographs (including any AI photography) and plans are for guidance only and are not necessarily comprehensive. It should not be assumed that the property has all necessary Planning, Building Regulation or other consents, and DOMVS has not tested any services, equipment or facilities. Purchasers must satisfy themselves by inspection or otherwise. DOMVS is a member of The Property Ombudsman scheme and subscribes to The Property Ombudsman Code of Practice.

Important Information

  • This is a Freehold property.

Property Ref: 654487_NDO250063

Share:

Similar Properties

Dorchester, Dorset

5 Bedroom House | Guide Price £650,000

Beautiful town centre home with over 4,000 sq ft arranged over three floors, plus the cellar. Gated parking for six vehi...

Milton Abbas, Blandford, Dorset

4 Bedroom Detached House | Offers Over £650,000

A truly one-of-a-kind property. This stunning converted chapel (NOT Grade listed) offers elegant, spacious living in a h...

Bridport, Dorset

4 Bedroom Detached House | Offers Over £650,000

Owners say, “Ours is a spacious and much-loved home, positioned in a secluded setting within a special village.&#14...

Kingston Maurward, Nr Dorchester, Dorset

4 Bedroom Detached House | £665,000

Originally part of the magnificent grounds of 18th century Kingston Maurward manor house. Choosing one of these three 4-...

Frampton Park, Nr Dorchester, Dorset

3 Bedroom Detached House | Offers Over £675,000

Owner says, 'I was drawn to the rural setting without it being remote, and to the history of the home and area. I've lov...

Lytchett Matravers, Poole, Dorset

3 Bedroom Detached House | Offers Over £675,000

A beautifully-presented modern (built in 2010) detached thatched home with a superb studio outbuilding, tucked away in a...

DOMVS Mid Dorset (Dorchester)

Dorchester, Dorset, DT1 1UW

01305 757300

How much is your home worth?

Use our short form to request a valuation of your property.

Request a Valuation

Mortgage Calculator

Amount Borrowed: £
Total Amount Repayable: £
Total Monthly Payment: £
©2026 The Guild of Property Professionals. All rights reserved. Terms and Conditions | Privacy Policy | Cookie Policy | Complaints Policy | Members Login
The Guild of Property Professionals Trading Address: 121 Park Lane, London W1K 7AG. GPEA Limited. Registered in England & Wales.  Company No: 02819824.  Registered Office Address: 2 St. Stephen's Court, St. Stephen's Road, Bournemouth, Dorset, England, BH2 6LA.  VAT Registration No: 576 8795 61
Book a Property Valuation Update Cookies Preferences