Wigeon Close, Great Notley, Braintree

Guide Price
£475,000
SSTC
This property listing is now SSTC

3 Bedroom Detached House for sale in Great Notley, Braintree

3 3 3
  • NO ONWARD CHAIN!!
  • 23' DUAL ASPECT Lounge, Dining Room, Kitchen & UTILITY ROOM
  • UNOVERLOOKED Rear Garden
  • Ground Floor Double Bedroom With Shower Room
  • Spacious Three/Four Bedroom DETACHED Property
  • EN-SUITE To Master Bedroom
  • Driveway Parking For Three/Four Vehicles
  • Quiet CUL-DE-SAC Location
  • Short Walk To All Local Shops/Amenities & Popular Schools
  • Further POTENTIAL TO EXTEND (STPP)

Boasting NO ONWARD CHAIN and benefiting from a 23' DUAL ASPECT lounge, modern kitchen plus UTILITY and an UNOVERLOOKED rear garden is this three/four bedroom detached property. Offering a GROUND FLOOR second reception room / fourth double bedroom with adjoining SHOWER ROOM currently being used as a guest room, driveway parking for 3-4 vehicles and EN-SUITE to master bedroom plus family bathroom. Set in a quiet CUL-DE-SAC position on the sought after Great Notley Garden Village, just a short walk to all shops/amenities & popular schools.

***GUIDE PRICE £475,000 - £500,000***

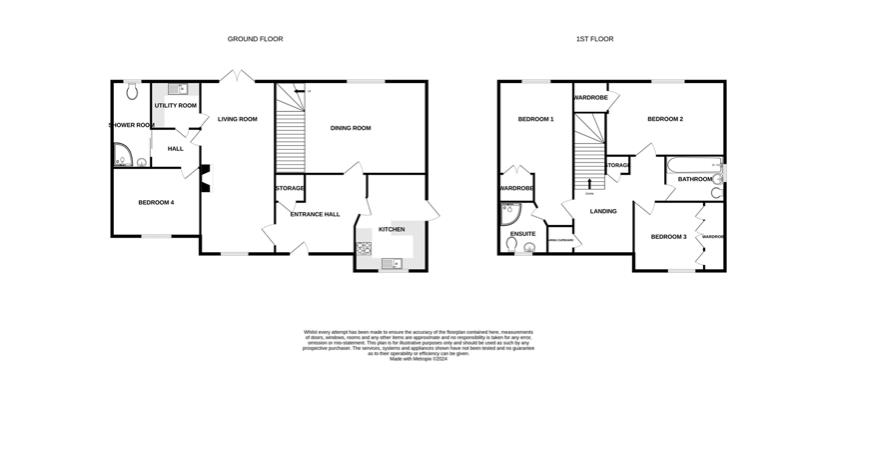
The accommodation, with approximate room sizes, is as follows:

Ground Floor Accommodation: -

Entrance Hall: -

Cloakroom: -

Lounge: - 7.14m x 3.68m (23'5 x 12'1) -

Kitchen: - 4.50m x 3.45m (14'9 x 11'4) -

Utility Room: -

Dining Room: - 4.14m x 2.92m (13'7 x 9'7) -

Bedroom Four / Playroom: - 3.40m x 2.84m (11'2 x 9'4) -

Shower Room: - 3.48m x 1.68m (11'5 x 5'6) -

First Floor Accommodation: -

Landing: -

Master Bedroom: - 4.19m x 3.38m (13'9 x 11'1) -

En-Suite: -

Bedroom Two: - 3.12m x 3.12m (10'3 x 10'3) -

Bedroom Three: - 2.92m x 2.59m (9'7 x 8'6) -

Family Bathroom: -

Exterior: -

Rear Garden: -

Driveway & Parking: -

Agents Notes: - Council Tax Band: E

For further information regarding this property, please contact Hamilton Piers.

Property Ref: 33790472

Share:

Similar Properties

Audley Road, Great Leighs, Chelmsford

4 Bedroom Detached House | Offers in region of £475,000

A well presented link detached FOUR BEDROOM family home, boasting an IMPRESSIVE 24' KITCHEN DINER, separate OFFICE/STUDY...

Radcliffe Way, Great Leighs, Chelmsford

3 Bedroom Detached House | Guide Price £475,000

Boasting THREE GOOD-SIZED BEDROOMS with an EN SUITE to the master, a SPACIOUS 18' LOUNGE and a STYLISH 18' KITCHEN DINER...

Osier Place, Braintree

4 Bedroom Detached House | Guide Price £475,000

Bring offered to the market with NO ONWARD CHAIN is this SUBSTANTIAL DETACHED MODERN HOME, immaculate throughout and boa...

Wood Way, Great Notley, Braintree

4 Bedroom Detached House | Offers in region of £485,000

Boasting TWO EN-SUITES plus family bathroom & d/stairs cloakroom, 19' CONSERVATORY, lounge and STUDY/PLAYROOM is this we...

Washall Drive, Great Notley, Braintree

4 Bedroom Detached House | Guide Price £490,000

**GUIDE PRICE £490,000-£510,000**Boasting NO ONWARD CHAIN with masses of POTENTIAL TO EXTEND or CONVERT LOFT (STPP), ben...

Hidcote Way, Great Notley, Braintree

4 Bedroom Detached House | Guide Price £490,000

**GUIDE PRICE £490,000-£510,000**Boasting NO ONWARD CHAIN and benefiting from THREE reception rooms inc. 15' lounge & CO...

Hamilton Piers (Great Notley)

Great Notley, Essex, CM77 7AE

01376341141

How much is your home worth?

Use our short form to request a valuation of your property.

Request a Valuation

Mortgage Calculator

Amount Borrowed: £
Total Amount Repayable: £
Total Monthly Payment: £
©2026 The Guild of Property Professionals. All rights reserved. Terms and Conditions | Privacy Policy | Cookie Policy | Complaints Policy | Members Login
The Guild of Property Professionals Trading Address: 121 Park Lane, London W1K 7AG. GPEA Limited. Registered in England & Wales.  Company No: 02819824.  Registered Office Address: 2 St. Stephen's Court, St. Stephen's Road, Bournemouth, Dorset, England, BH2 6LA.  VAT Registration No: 576 8795 61
Book a Property Valuation Update Cookies Preferences