Chelmsford Road, Harrogate

Guide Price
£825,000
SSTC
This property listing is now SSTC

5 Bedroom Detached House for sale in Harrogate

5 2

A characterful five-bedroom detached property with attractive south-facing garden and parking, situated in this delightful position within a couple of minutes' walk from Harrogate town centre and the railway station. This superb home offers generous accommodation over three levels extending to over 2,000 square feet.

An early internal viewing is essential to appreciate the well-appointed accommodation, together with the most attractive and convenient residential position. 

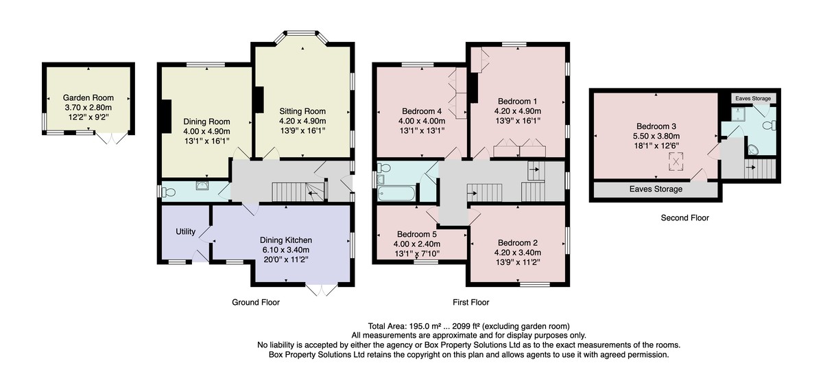
ACCOMMODATION GROUND FLOOR
RECEPTION HALL

SITTING ROOM
A large reception room with bay window and feature fireplace and log-burner.

DINING ROOM
A further large reception room with window to the front and fireplace with log-burner.

CLOAKROOM
With WC and washbasin. Window to the rear.

DINING KITCHEN
With a range of fitted units with gas hob with extractor above and integrated double oven. Integrated fridge / freezer and dishwasher. Patio doors leading out to the back garden.

UTILITY ROOM
With fitted units, worktop and sink and space and plumbing for appliances. Also housing the boiler. With door leading to the back garden.

FIRST FLOOR
BEDROOM 1
A generously sized double bedroom with carpet flooring and dual aspect windows to front.

BEDROOM 2
A further good-sized double bedroom with windows to rear and side.

BEDROOM 4
Another good-sized double bedroom with window to front.

BEDROOM 5
A single bedroom with space for office equipment and window to rear.

FAMILY BATHROOM
A stylish family bathroom comprising of W/C, washbasin, and bath with shower overhead.

SECOND FLOOR
Fixed stairs lead to the second floor where the fourth bedroom is located.

BEDROOM 3
This room can double up and provide an office. Skylight window and window to side.

STYLISH EN-SUITE SHOWER ROOM
There is a stylish en-suite with W/C, washbasin and shower. There is further room in the eaves for storage.  

OUTSIDE To the front of the property is a lawned garden and a block-paved driveway providing off-street parking for multiple vehicles. To the rear is the fully enclosed, south-facing garden with a pleasant patio area and lawned garden, well-stocked flowerbeds and home office / garden room.
 

Property Ref: 56568_100470028422

Share:

Similar Properties

Leadhall Lane, Harrogate

4 Bedroom Detached House | Guide Price £825,000

* 360 3D Virtual Walk-Through Tour *A spacious, and beautifully presented four-bedroom detached family home with good-si...

Brinklow Way, Harrogate

5 Bedroom Detached House | £815,000

A substantial five-bedroom detached family home offering over 2,100 sq. ft of flexible accommodation, situated in a peac...

Cautley Drive, Killinghall, Harrogate

5 Bedroom Detached House | Offers Over £800,000

* 360 3D Virtual Walk-Through Tour *A beautifully presented and deceptively spacious four / five-bedroom detached modern...

Wetherby Road, Harrogate

5 Bedroom Detached House | Guide Price £835,000

A most impressive and attractive detached period property with very good sized gardens, situated in this convenient loca...

Byron Court , Beech Grove, Harrogate

3 Bedroom Apartment | Guide Price £850,000

* 360 3D Virtual Walk-Through Tour *A rare opportunity to purchase a very spacious second-floor three-bedroom apartment...

Leadhall Lane, Harrogate

4 Bedroom Detached House | Guide Price £850,000

An impressive four-bedroom detached property which now reveals spacious and beautifully presented accommodation, appoint...

Verity Frearson (Harrogate)

Harrogate, North Yorkshire, HG1 1JT

01423 562 531

How much is your home worth?

Use our short form to request a valuation of your property.

Request a Valuation

Mortgage Calculator

Amount Borrowed: £
Total Amount Repayable: £
Total Monthly Payment: £
©2025 The Guild of Property Professionals. All rights reserved. Terms and Conditions | Privacy Policy | Cookie Policy | Complaints Policy | Members Login
The Guild of Property Professionals Trading Address: 121 Park Lane, London W1K 7AG. GPEA Limited. Registered in England & Wales.  Company No: 02819824.  Registered Office Address: 2 St. Stephen's Court, St. Stephen's Road, Bournemouth, Dorset, England, BH2 6LA.  VAT Registration No: 576 8795 61
Book a Property Valuation Update Cookies Preferences