William Street West, Hebburn, Tyne and Wear, NE31

Offers in region of
£140,000
SSTC
This property listing is now SSTC

4 Bedroom Terraced House for sale in Hebburn

2 4 2
  • Terraced House
  • Four Bedrooms
  • Great Location
  • Excellent First Time Buy
  • Ground Floor Bedroom
  • Lawned Garden

This well-proportioned four-bedroom terraced house on William Street West, presents an excellent opportunity for first-time buyers or growing families seeking flexible living in a convenient location.
The ground floor layout includes two reception rooms, a versatile fourth bedroom (ideal as a home office, playroom, or guest space), and a ground floor bathroom, enhancing day-to-day convenience. The kitchen opens out to the private rear garden—perfect for relaxing or entertaining in warmer months.
Upstairs, three further spacious bedrooms are complemented by a second family bathroom, catering well to the needs of a busy household.
Located in a popular residential area, this home benefits from excellent transport links via Hebburn Metro Station and nearby road networks, with a wide range of local amenities including shops, schools, and leisure facilities within easy reach.
Call today for more information!
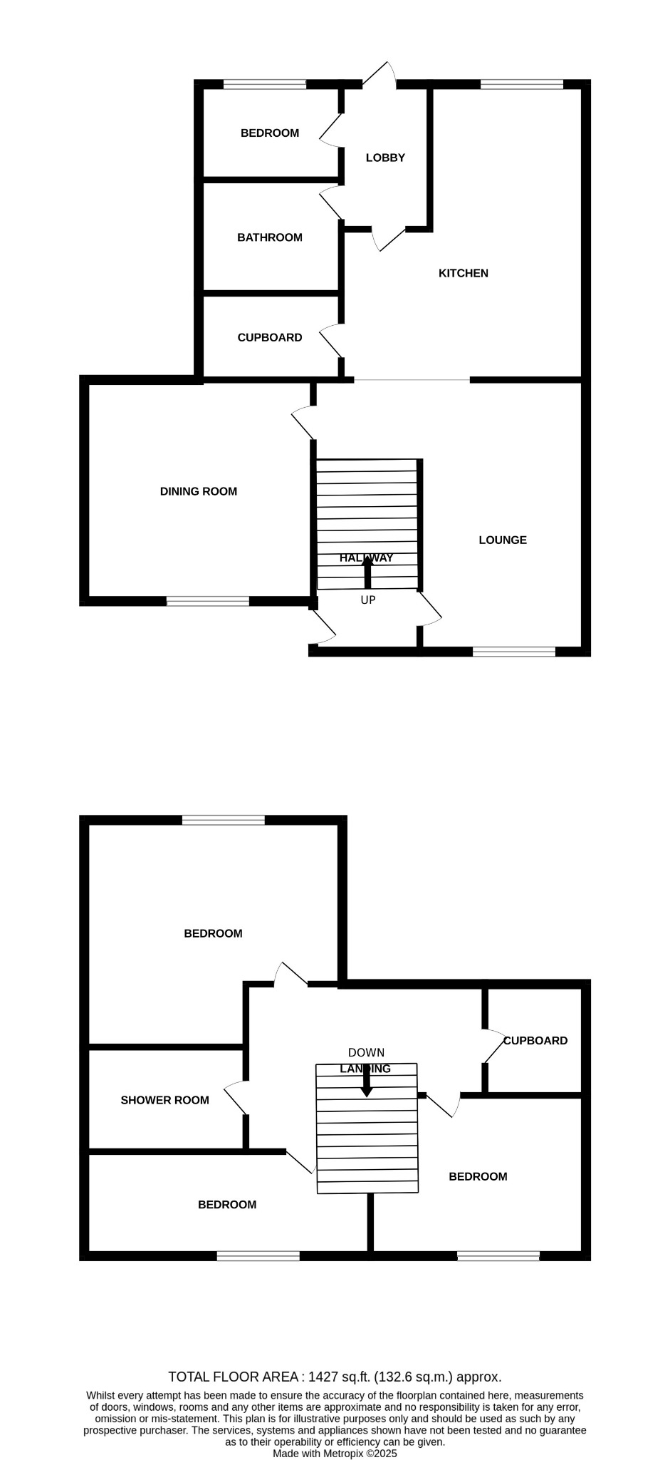
Entrance Via UPVC double glazed composite door, to hall with radiator and stairs to the first floor landing.
Dining Room (4.30m x 2.93m)With UPVC double glazed window and radiator.
Lounge (3.66m x 6.04m)With UPVC double glazed window, radiator, electric fire with brick chimney breast and spotlights.
Kitchen (3.97m x 3.42m)With UPVC double glazed window, 2 Velux windows, radiator, a range of white wall and floor units with complimentary grey worktops, breakfast bar, splashback tiles, gas cooker point, extractor fan, space for a fridge/freezer, plumbing for a washing machine, under-bench space, and fully tiled flooring.
Downstairs Bathroom (2.97m x 2.06m)With fitted white three-piece-suite; low level WC, panelled bath with mixer tap, overhead electric shower, pedestal hand washbasin, chrome heated towel rail and extractor fan.
Downstairs Bedroom (2.67m x 2.65m)With UPVC double glazed window and radiator.
First Floor Landing With storage cupboard and loft access.
Bedroom 1 (4.53m x 2.57m)With UPVC double glazed window and radiator.
Bedroom 2 (2.59m x 3.80m)With UPVC double glazed window and radiator
Bedroom 3 (2.81m x 2.16m)With UPVC double glazed window, radiator and built-in wardrobes with sliding mirrored doors
Bathroom (2.02m x 1.64m)Fully tiled walls and flooring, three-piece-suite; low level WC, step-in shower cubicle with electric shower and glass shower door, corner vanity hand washbasin with mixer tap, chrome heated towel rail, plastic cladding to the ceiling, and extractor fan
Exterior Block paved rear with freestanding patio awning Forecourt garden to the front with lawn, and steps to the entrance
Material Information• Tenure - Freehold• Length of lease - N/A• Annual ground rent amount - N/A• Ground rent review period - N/A• Annual service charge amount - N/A• Service charge review period - N/A• Council tax band - A• EPC - C

Important Information

  • This is a Freehold property.
  • This Council Tax band for this property is: A

Property Ref: 800_448940

Share:

Similar Properties

South Parade, Gateshead, Tyne and Wear, NE10

3 Bedroom Terraced House | Offers in region of £140,000

Find your next home in this terraced house located on South Parade, Gateshead. Featuring three generously sized bedrooms...

Holly Street, Jarrow, Tyne and Wear, NE32

3 Bedroom Terraced House | Offers in region of £139,950

A well-presented three-bedroom terraced house in Jarrow, extended and featuring a private yard, ideal for first-time buy...

The Cornfields, Hebburn, Tyne and Wear, NE31

2 Bedroom Terraced House | Offers in region of £139,950

Nestled within the sought-after area of The Cornfields in Hebburn, this two-bedroom terraced house presents a great oppo...

Tyne View, Hebburn, Tyne and Wear, NE31

2 Bedroom Semi-Detached House | Offers in region of £145,000

Don't miss the chance to own this beautiful semi-detached house with a driveway, rear garden, and access to scenic river...

Lea Avenue, Jarrow, NE32

3 Bedroom Semi-Detached House | Offers in region of £145,000

Three Bedroom Semi-Detached House in Lea Avenue, Ideal Family Home

Hill Street, Jarrow, Tyne and Wear, NE32

2 Bedroom Terraced House | Offers in region of £149,950

This beautifully maintained two-bedroom terraced property is perfect for first-time buyers or anyone seeking a ready-to-...

Chase Holmes (Hebburn)

73 Station Road, Hebburn, North East England, NE31 1LA

0191 4245555

How much is your home worth?

Use our short form to request a valuation of your property.

Request a Valuation

Mortgage Calculator

Amount Borrowed: £
Total Amount Repayable: £
Total Monthly Payment: £
©2025 The Guild of Property Professionals. All rights reserved. Terms and Conditions | Privacy Policy | Cookie Policy | Complaints Policy | Members Login
The Guild of Property Professionals Trading Address: 121 Park Lane, London W1K 7AG. GPEA Limited. Registered in England & Wales.  Company No: 02819824.  Registered Office Address: 2 St. Stephen's Court, St. Stephen's Road, Bournemouth, Dorset, England, BH2 6LA.  VAT Registration No: 576 8795 61
Book a Property Valuation Update Cookies Preferences