Mickleburgh Hill, Herne Bay

£695,000
SSTC
This property listing is now SSTC

4 Bedroom Detached Bungalow for sale in Herne Bay

4 2
  • **Watch Our Narrated Video Walkthrough Tour**
  • Detached Executive Chalet Bungalow
  • Three/Four Double Bedrooms
  • Presented To An Impeccable Standard Throughout
  • Separate Lounge & Dining Room
  • Stunning Insulated Garden Studio With WC
  • Incredible Gardens With Entertainment Spaces
  • Walking Distance To Herne Bay Town Centre
  • Easy Access Nearby To A299 To London
  • Internal Viewing Is Highly Advised

**WATCH OUR NARRATED VIDEO WALKTHROUGH TOUR**
Kent Estate Agencies are proud to present this incredible detached chalet bungalow to the market in Herne Bay. This property truly offers the perfect blend of character and modern living with a particular focus on quality and peace of mind.
The ground floor offers swathes of light and airy spaces to enjoy and original parquet floor cascades throughout the ground floor of the property, running into a majority of the principle rooms.
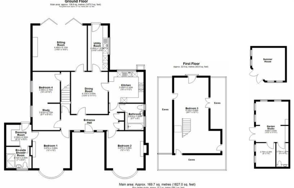
A spacious entrance hall greets you as you enter through the front door and you will instantly get a sense of the shear amount of space on offer. The master bedroom suite offers a spacious bedroom with separate dressing room, en-suite and entrance to a private outdoor covered courtyard for enjoying coffee of a morning. The second bedroom located to the front of the property enjoys the second of the bay windows and offers a further double bedroom. Bedroom three is currently set out a study for the time being but easily offers another fantastic double bedroom. The first floor is accessible via an independent door found in the hallway on the ground floor. This space offers a retreat from the rest of the property with space in abundance and a Juliette balcony to enjoy the garden from. The ground floor of the property continues by offering a luxurious family bathroom, kitchen with full range of premium fitted appliances and exceptionally large utility room with access to the rear garden.
The dining room forms the focal hub in its centre acting as the heart of the home ready to host family dinners and get-togethers. Alongside the dining room is the lounge, a beautiful stand out space with an incredible sense of space and light with its bi-folding doors opening to greet you into the landscaped gardens to the rear.
The rear gardens are a triumph of design and offer a deceivingly low maintenance space to enjoy and entertain from. The array of spaces available in the rear garden come in the form of a fantastic covered hot tub area with a bespoke gazebo, summer house with decked area and a stunning insulated cabin which can easily be used by family to stay in or to run a business from home.
Off-road parking is provided to the front via a large driveway for multiple vehicles.
Call the exclusive sole agent Kent Estate Agencies today to book your viewing.

Location:
The seafront with stunning walks along 'The Downs' is just a short walk away with popular cycle paths leading as far as Birchington in one direction and Whitstable in the other. Herne Bay town centre is just moments away where you will find a good range shopping, restaurants leisure amenities including rowing, sailing and yacht clubs along with a swimming pool and cinema. The harbour town of Whitstable is only 5.5 miles distant which enjoys a variety of shopping, educational and leisure amenities including sailing, water sports and bird watching, as well as the seafood restaurants for which it has become renowned. The Cathedral city of Canterbury is 8.5 miles away with its theatre and cultural amenities, as well as benefiting from excellent public and state schools. The City also boasts the facilities of a major shopping centre enjoying a range of mainstream retail outlets as well as many individual shops. Excellent transport links are nearby with Herne Bay mainline train station being 1.5 miles away providing direct links to London Victoria in approximately 88 minutes and London St Pancras in approximately 86 minutes. Easy access to the A299 is less than a mile away providing road links to London via the M2.

Non Approved Property Details   


Entrance Hall   
Double glazed security front door. Original Parquet Flooring. Large radiator with TRV. Fitted Cupboard containing consumer unit.

Lounge   16' 9 x 14' 8 (5.11m x 4.48m)
Wet underfloor heating system with controls. Data points. Media wall with realistic flame fire. Bi folding doors to rear garden.

Dining Room   13' 8 x 11' 11 (3.97m x 0.00m)
Original parquet flooring. Radiator with TRV.

Kitchen   11' 3 x 10' 0 (0.00m x 0.00m)
Electric underfloor heating plus radiator. Double gas oven. Fitted high level microwave. Neff induction four burner hob with overhead. Two wine coolers. Integrated fridge. Neff integrated dishwasher. Fitted under sink waste disposal unit. Under cabinet. Integrated recycling bin system.

Utility Room   14' 8 x 6' 6 (4.48m x 1.83m)
Electric underfloor heating. Points for washing machine, tumble dryer and fridge/freezer. Cupboard housing inverter for solar panels on main house. Double glazed door to rear garden.

Bedroom One   12' 0 x 12' 0 (3.66m x 3.66m)
Original parquet flooring. Privacy film on bay windows. Curved radiator with TRV. Data points. Light switches from bedside and door.

Dressing Room To Bedroom One   8' 10 x 6' 2 (2.7m x 1.88m)
Electric underfloor heating. Fully fitted wardrobes with lights. Double glazed door leading to sheltered courtyard.

En-Suite To Bedroom One   8' 2 x 7' 0 (2.49m x 2.14m)
Electric underfloor heating. Walk in shower with electric Bluetooth Mira drench head shower. Fitted storage. Humidistat extractor fan.

Bedroom Two   12' 0 x 12' 0 (3.66m x 3.66m)
Original parquet flooring. Privacy film on bay windows. Curved radiator with TRV. Data points.

Bathroom   8' 7 x 6' 0 (2.62m x 1.83m)
Electric underfloor heating plus radiator. Bath with gravity fed & pump shower/mixer with drench head. Humidistat extractor fan.

Study Area   8' 7 x 6' 10 (2.62m x 2.09m)


Bedroom Three   26' 7 x 12' 1 (0.00m x 0.00m)
Currently configured as an office. Original parquet flooring. Privacy film on windows. Cupboard under stairs. 2 x radiators with TRV.

Bedroom Four (First Floor)   8' 2 x 10' 0 (2.49m x 3.05m)
Storage in eves. Access to main loft storage which is boarded throughout with lights and houses main water tank. Juliette balcony overlooking rear garden via double glazed door. Fully electric Velux window with automatic rain sensor and control. Radiator with TRV.

Garden Studio - Main Room   11' 11 x 15' 2 (3.64m x 4.63m)
4m x 8m fully insulated and plastered throughout with new UPVC windows and doors. Separate consumer unit. Electric radiator. Fitted wall units and solid oak work top. data points x 2.

Garden Studio - Secondary Room   7' 6 x 9' 0 (2.29m x 2.75m)
Electric radiator. Storage cupboard.

Garden Studio - WC   
Hot water boiler under sink. Electric towel rail. Fitted cupboard. *2 x 5kw batteries and inverter for solar panel system.

Summer House & Hot Tub Area   
Summer house comes with power and lighting. The hot tub is a five person Canadian Spa housed under a bespoke gazebo which is included in the house sale.

Garden Shed   
Metal shed 10 x 10 with separate consumer unit. Power and lighting.

Rear Garden   


Front Garden & Driveway   


**Solar Panels & Batteries**   
The solar panels and batteries currently installed at the property are available through separate negotiation. Please enquire with Kent Estate Agencies to find out more.

There are currently 9 x 500w solar panels (4.5kw) with associated inverter and batteries.

Main Services
The following mains services are connected to the property electricity, water, gas, drainage and a telephone line. All services will be subject to the appropriate companies transfer conditions.

Heating
Central heating is provided by a gas fired boiler and hot water radiators as indicated in these particulars.

Windows
The windows are double glazed units.

Tenure
The property is to be sold Freehold with vacant possession.

Council Tax
We are advised by the Valuation Office that the property is currently within Council Tax Band D. The amount payable under tax band D for the year 2024/2025 is £2,196.77.

Viewing
Please ring us to make an appointment. We are open from 9am to 6pm Monday to Friday, 9am to 5pm Saturdays and by appointment only on Sundays.

Agent Notes
Kent Estate Agencies gives notice for themselves and for the sellers of the property, whose agents they are that any floor plans, plans or mapping and measurements are approximate quoted in metric with imperial equivalents. All are for general guidance only and whilst every attempt has been made to ensure accuracy, they must not be relied on. The measurements are provided in accordance with the R.I.C.S. Code of Measuring Practice 6th edition.
We have not carried out a structural survey and the services, appliances and specific fittings have not been tested and therefore no guarantee can be given that they are in working order. Photographs are reproduced for general information and it must not be inferred that any item shown is included with the property. Prospective purchasers or lessees should seek their own professional advice. Kent Estate Agencies retain the copyright in all advertising material used to market this property.
No person in the employment of Kent Estate Agencies has any authority to make any representation or warranty whatever in relation to this property. Purchase prices, rents or other prices quoted are correct at the date of publication and, unless otherwise stated, exclusive of VAT.
For a free valuation of your property contact the number on this brochure. Printed ???..2025

Important Information

  • This is a Freehold property.

Property Ref: 57383_82C2B6

Share:

Similar Properties

Church Road, Hoath, Canterbury

3 Bedroom Detached House | £675,000

Greenacre is an enchanting medieval cottage (not listed) nestled in the picturesque and highly sought after village of H...

Mandarin Lane, Stillwater Park, Herne Bay

5 Bedroom Detached House | £675,000

This substantial executive home is tucked right away within the exclusive Stillwater Park; argued to be Herne Bay's fine...

Grand Drive, Herne Bay

4 Bedroom Detached House | Offers in excess of £650,000

OPULENT PERIOD HOME JUST OFF THE SEAFRONT AT HAMPTON... Prime location for this most attractive Edwardian home situated...

Domneva Road, Westgate-on-Sea

2 Bedroom Detached House | £699,995

A luxurious, architect designed home of immense quality, situated in a coveted location just 130 yards from the golden s...

Windmill Road, Herne Bay

4 Bedroom Detached House | £725,000

A substantially extended and meticulously renovated home, occupying a generous corner plot and situated within a quiet a...

Hampton Pier Avenue, Herne Bay

4 Bedroom Detached Bungalow | £735,000

Watch the sun go down over Hampton Bay from this detached chalet bungalow with spectacular sea views and a lifestyle tha...

Kent Estate Agencies (Herne Bay)

99 Mortimer Street, Herne Bay, Kent, CT6 5ER

01227 213499

How much is your home worth?

Use our short form to request a valuation of your property.

Request a Valuation

Mortgage Calculator

Amount Borrowed: £
Total Amount Repayable: £
Total Monthly Payment: £
©2025 The Guild of Property Professionals. All rights reserved. Terms and Conditions | Privacy Policy | Cookie Policy | Complaints Policy | Members Login
The Guild of Property Professionals Trading Address: 121 Park Lane, London W1K 7AG. GPEA Limited. Registered in England & Wales.  Company No: 02819824.  Registered Office Address: 2 St. Stephen's Court, St. Stephen's Road, Bournemouth, Dorset, England, BH2 6LA.  VAT Registration No: 576 8795 61
Book a Property Valuation Update Cookies Preferences