High Street, Broadstairs, CT10

£525,000
SSTC
This property listing is now SSTC

Commercial Property for sale in High Street

  • Town Centre Location
  • Office/Commercial Space
  • Approx 224m2 (2420sqft)
  • Ground Floor Refectory/Coffee-Shop
  • Would Suit Single or Multiple Businesses
  • Close to Station & Car Park
  • Off Street Parking
  • Well Presented
  • No Forward Chain

SUBSTANTIAL TOWN CENTRE OFFICE BUILDING WITH GREAT POTENTIAL

Situated within the heart of Broadstairs' busy High Street this spacious commercial property is arranged over four floors and offers scope for numerous business enterprises, subject to any necessary planning consents. Formerly used as a language school the property benefits from 225m2 (2420sqft) of commercial space currently arranged with a coffee-shop on the ground with service counter, store room and accessible W.C. On the first floor are three offices/classrooms, with two further office/classrooms and W.C.s located on the second floor. On the top floor are two further offices/classrooms.

The property has been refurbished and maintained to a high standard by the current owners and now offers a great opportunity for a single business, multiple business hub or enterprise space. The property benefits from two/three parking spaces at the rear, with public car parking nearby and is within a quarter of a mile of the train station. The property is offered with no forward chain.

Ground Floor


Coffee Shop/Refectory
10.97m x 5.07m (36' 0" x 16' 8") With direct access from and glazed frontage to High Street. Combination of table and bench seating. Engineered wood flooring. Counter service area with undercounter storage and sink.

Utility/Store Room
3.57m x 1.21m (11' 9" x 4' 0") With storage cupboards, counter top and sink unit.

Rear Lobby
With Access to rear parking area and accessible W.C.

Accessible W.C.
2.20m x 1.57m (7' 3" x 5' 2")

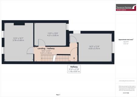
First Floor


Office One
5.08m x 3.78m (16' 8" x 12' 5")

Office Two
4.21m x 3.05m (13' 10" x 10' 0")

Office Three
4.35m x 3.76m (14' 3" x 12' 4")

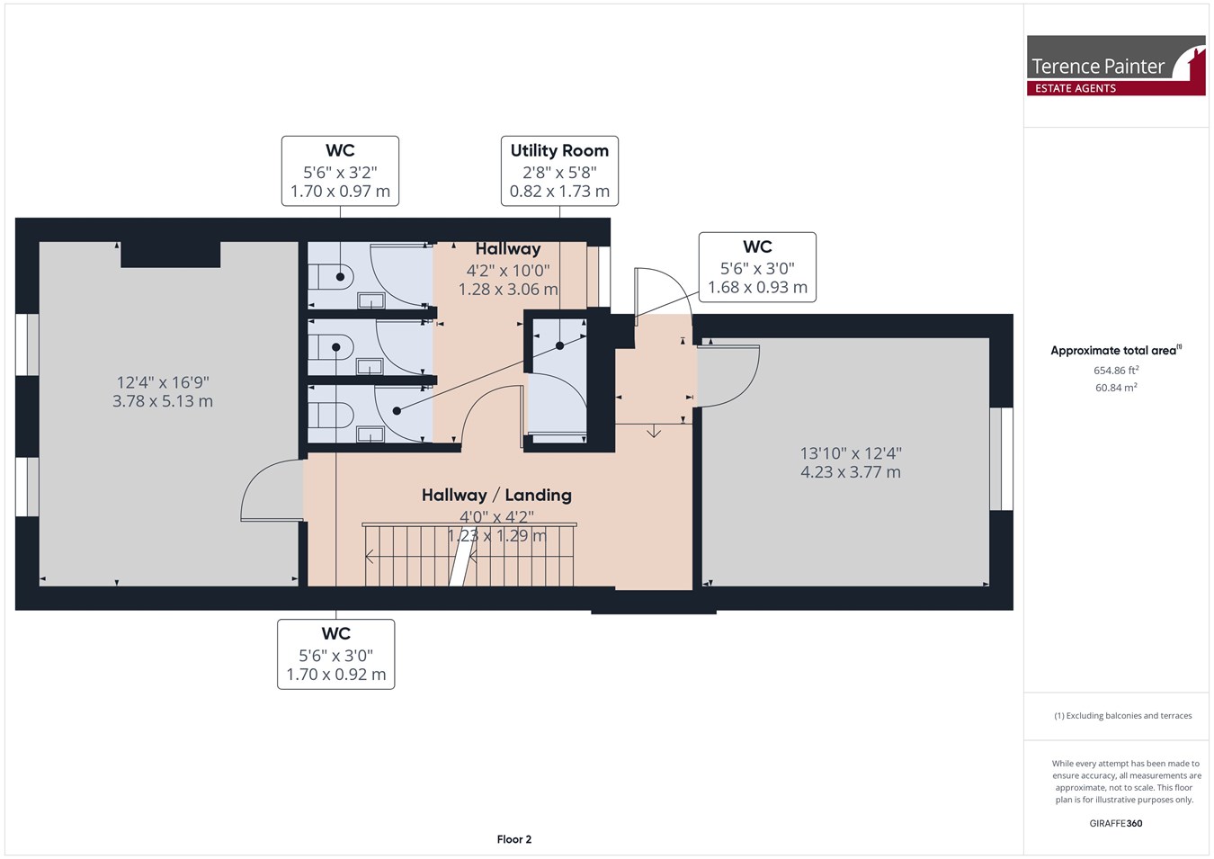
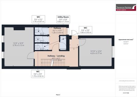
Second Floor


Office Four
5.13m x 3.78m (16' 10" x 12' 5")

W.C.s
With three W.C.s each with wash hand basins.

Office Five
4.23m x 3.77m (13' 11" x 12' 4")

Third Floor


Office Six
5.12m x 3.27m (16' 10" x 10' 9")

Office Seven
4.23m x 3.62m (13' 11" x 11' 11")

Exterior


Car Parking
At the rear of the property is a hardstanding area suitable for off street parking. Steel fire escape.

Business Rates
The current Rateable Value for Business Rates is �18,000.

Services
We understand the property to benefit from all mains services.

Planning
All planning enquiries should be made to Thanet District Council on 01843 577150 or to planning.services@thanet.gov.uk

Important Information

  • This is a Freehold property.

Property Ref: 5345346_27856032

Share:

Similar Properties

King Edward Avenue, Broadstairs, CT10

4 Bedroom Semi-Detached House | £500,000

EXTENDED FOUR BEDROOM SEMI DETACHED PERIOD FAMILY HOME IN THE HEART OF BROADSTAIRS WITH A STUNNING GARDEN AND DOUBLE DRI...

Sea View Road, Broadstairs, CT10

3 Bedroom Chalet | £499,950

PUT YOUR MARK ON THIS DELIGHTFUL DETACHED CHALET BUNGALOW LOCATED NEAR THE DESIRABLE CHESS BOARD ESTATE AND BEING OFFERE...

60 Stone Road, Broadstairs, CT10

2 Bedroom Flat | £495,000

APARTMENT FOUR, AVAILABLE NOW! A NEWLY CONVERTED TWO BEDROOM FIRST FLOOR APARTMENT FEATURING TWO BALCONIES AND A PRIVATE...

Orchard Close, St Nicholas At Wade, Birchington, CT7

3 Bedroom Detached House | £535,000

MODERN AND IMMACULATELY PRESENTED DETACHED THREE DOUBLE BEDROOM EXECUTIVE HOME LOCATED WITHIN A PRIVATE ROAD, IN THE PIC...

West Cliff Road, Broadstairs, CT10

4 Bedroom Detached House | £565,000

NO FORWARD CHAIN - DETACHED FAMILY HOME OFFERING AN ABUNDANCE OF LIVING SPACE IDEALLY LOCATED WITHIN YARDS OF THE BEACH...

Capel Close, Kingsgate, Broadstairs, CT10

3 Bedroom Detached Bungalow | £565,000

BEAUTIFULLY PRESENTED AND SPACIOUS THREE BEDROOM DETACHED BUNGALOW LOCATED WITHIN THE HEART OF PRESTIGIOUS KINGSGATE, JU...

Terence Painter Estate Agents (Broadstairs)

Broadstairs, Kent, CT10 1JT

01843 866866

How much is your home worth?

Use our short form to request a valuation of your property.

Request a Valuation

Mortgage Calculator

Amount Borrowed: £
Total Amount Repayable: £
Total Monthly Payment: £
©2025 The Guild of Property Professionals. All rights reserved. Terms and Conditions | Privacy Policy | Cookie Policy | Complaints Policy | Members Login
The Guild of Property Professionals Trading Address: 121 Park Lane, London W1K 7AG. GPEA Limited. Registered in England & Wales.  Company No: 02819824.  Registered Office Address: 2 St. Stephen's Court, St. Stephen's Road, Bournemouth, Dorset, England, BH2 6LA.  VAT Registration No: 576 8795 61
Book a Property Valuation Update Cookies Preferences