Beaumont Way, Hazlemere, HP15

£375,000
SSTC
This property listing is now SSTC

2 Bedroom Not Specified for sale in High Wycombe

1 2 2
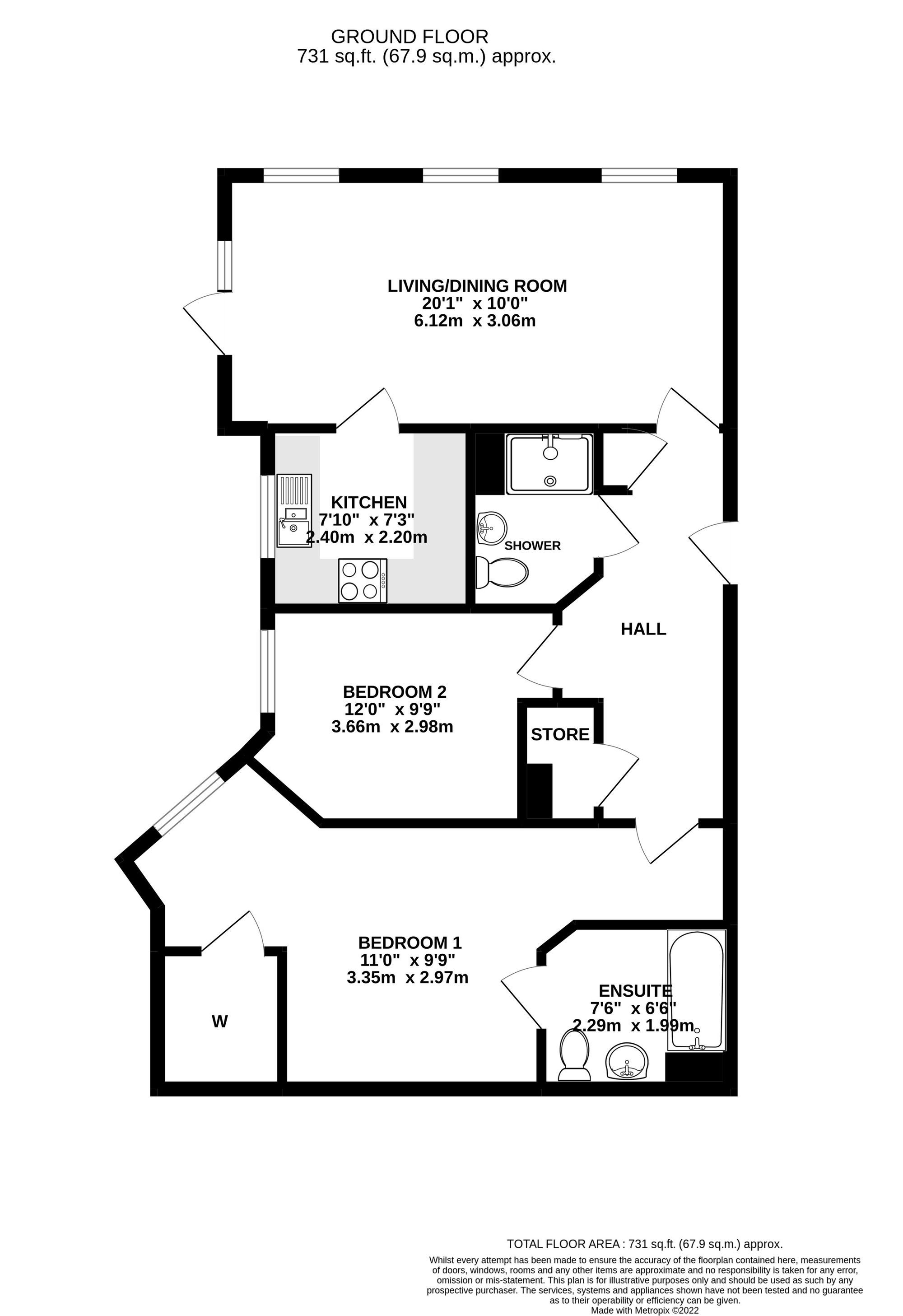
  • Modern Ground Floor Apartment - Exclusive To The Over 60's
  • Two Bedrooms - Two Bathrooms
  • Lounge/Dining Room - Modern Kitchen
  • Utility Cupboard - Private Patio
  • Communal Garden - Security Entry System

An immaculate ground floor apartment, centrally located in Hazlemere, close to all amenities, restaurants and shops. This complex, which is only seven years old, is exclusive to the over 60's and is modern throughout with a communal lounge and garden, plus house manager. The apartment itself is in excellent condition and comprises of; hallway with a utility cupboard (plumbed for washing machine) and large lounge/dining room that has access to a private patio area. There is a kitchen, which is fully fitted with integrated dishwasher, electric oven and hob and overlooks the rear of the building. There is also a modern bathroom comprising of a three piece shower suite, as well as two bedrooms, with the main bedroom benefiting from an en-suite and a walk-in-wardrobe. Other benefits include a 24 hour emergency call system, security camera system in the building, remainder of a 10 year NHBC warranty and a guest suite, which is available for family and friends.

Energy Efficiency Current: 83.0
Energy Efficiency Potential: 83.0

Important Information

  • This is a Leasehold property.
  • The annual cost for the ground rent on this property is £495
  • The annual service charges for this property is £4487
  • This Council Tax band for this property is: D

Property Ref: a052fd9f-2e11-49c8-96ba-2d473d7187c7

Share:

Similar Properties

Ramsay View, Hazlemere, HP15

2 Bedroom Terraced House | £350,000

A charming and deceptive, terrace house in good condition and situated in Hazlemere with no onward chain.

352 Amersham Road, Hazlemere, HP15

2 Bedroom Flat | £343,000

A modern and stylish apartment, which has been beautifully improved by the current owner and is located in the popular v...

Holmer Place, Holmer Green, HP15

2 Bedroom Retirement Property | £340,000

A charming, semi-detached bungalow situated towards the end of a quiet cul-de-sac in Holmer Green.

Ramsay View, Hazlemere, HP15

2 Bedroom End of Terrace House | £385,000

A two bedroom, end of terrace house situated on the ever popular Manor Farm Development with a garage and parking. No On...

Beechwood Mansions, 253 Amersham Road, HP15

2 Bedroom Flat | £400,000

A stylish, top floor, duplex apartment in the desirable Beechwood Mansions with its own private roof terrace, parking an...

Beechwood Mansions, 253 Amersham Road, HP15

3 Bedroom Flat | £425,000

Beechwood Mansions is a set of six apartments built in 2006 and is located within a prestigious and exclusive gated deve...

Wye Partnership (Hazlemere)

3 Market Parade, Hazlemere, Buckinghamshire, HP15 7LQ

01494 711284

How much is your home worth?

Use our short form to request a valuation of your property.

Request a Valuation

Mortgage Calculator

Amount Borrowed: £
Total Amount Repayable: £
Total Monthly Payment: £
©2025 The Guild of Property Professionals. All rights reserved. Terms and Conditions | Privacy Policy | Cookie Policy | Complaints Policy | Members Login
The Guild of Property Professionals Trading Address: 121 Park Lane, London W1K 7AG. GPEA Limited. Registered in England & Wales.  Company No: 02819824.  Registered Office Address: 2 St. Stephen's Court, St. Stephen's Road, Bournemouth, Dorset, England, BH2 6LA.  VAT Registration No: 576 8795 61
Book a Property Valuation Update Cookies Preferences