Broadoak, Horton, Ilminster, Somerset, TA19

£357,500
SSTC
This property listing is now SSTC

3 Bedroom Detached House for sale in Ilminster

2 3 1

Charming Three-Bedroom Detached Home in Heart of the Village � Garage, Gardens & Conservatory

Nestled in a quiet and well-established village setting, this delightful three-bedroom detached property offers comfortable and versatile living in a location that combines village life with everyday convenience.

Set back from the road, the property boasts ample driveway parking, a detached garage, and attractive front and rear gardens, making it ideal for families, downsizers, or anyone seeking a peaceful lifestyle in a well-connected community.
Inside, the home offers well-proportioned accommodation throughout.

A spacious entrance hall leads to a dual aspect lounge, flowing through to a generous conservatory that overlooks the rear garden�perfect for year-round enjoyment. The kitchen is well equipped with a range of integrated appliances, with a cloakroom completing the ground floor accommodation.

Upstairs, the property features three good-sized bedrooms and a family bathroom, offering plenty of space for growing families or visiting guests.

The beautifully maintained gardens provide a mix of lawn, mature planting, and patio space, ideal for outdoor dining and relaxation.

Located just a short walk from the village shop, popular pub/restaurant, and village hall, this home offers a genuine sense of community, with countryside walks and open green spaces nearby. The village benefits from good road links and access to nearby towns and amenities, making it both tranquil and practical.

Tenure: Freehold
Council Tax Band: D
EPC Rating: D

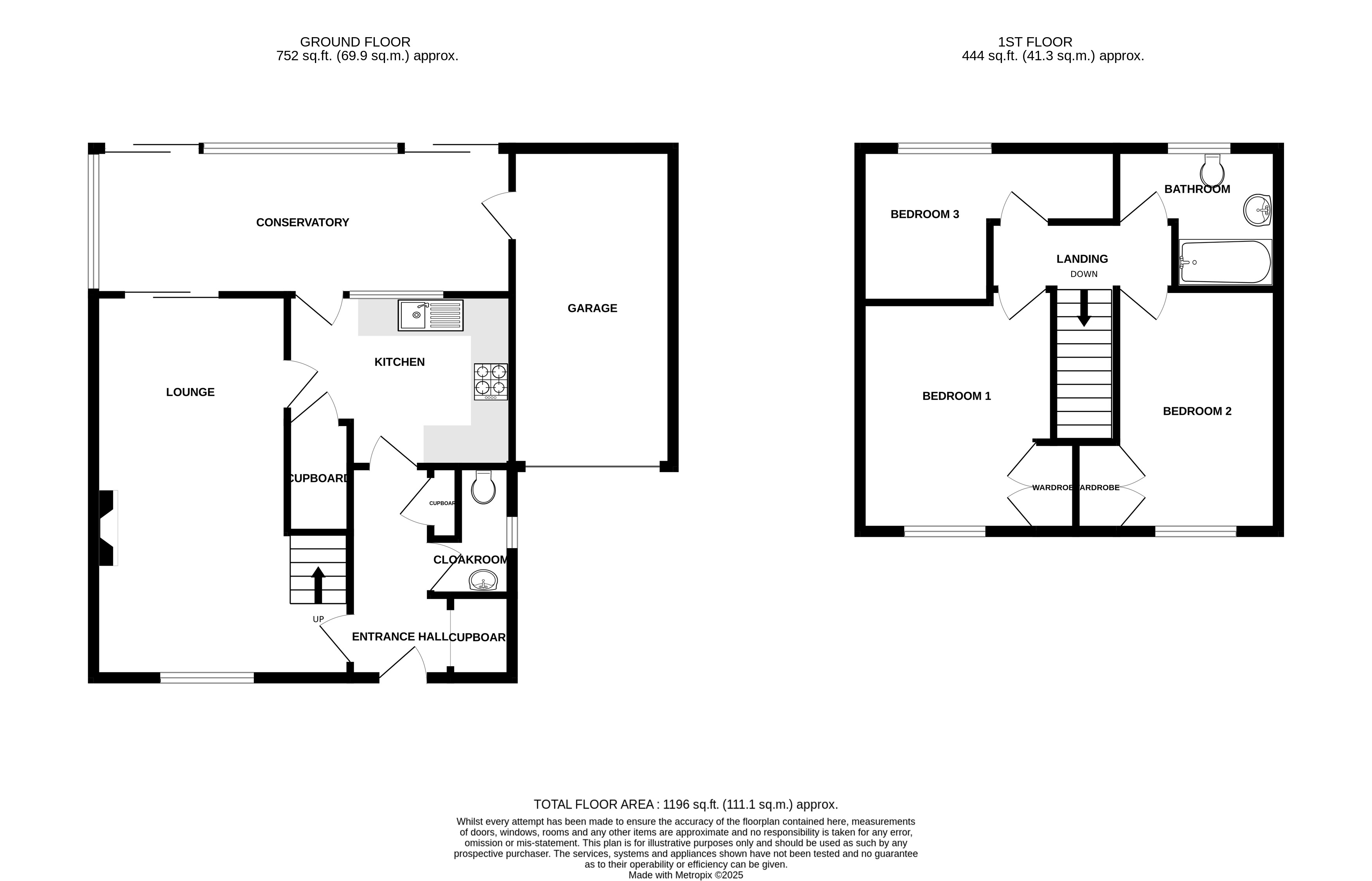
Accommodation comprises: Entrance hall, lounge, kitchen, cloakroom, conservatory, three bedrooms and bathroom.


Entrance Hall    Main entrance door into entrance hall. Large built-in storage cupboard with coat hanging space and additional storage. Further built-in storage cupboard. Doors to all principal rooms.

Lounge 20'2" (6.15m) x 13'5" (4.09m) narrowing to 10'2" (3.10m). Fireplace with inset electric fire, two radiators, television point, stairs rising to first floor. Doors to kitchen and entrance hall and double glazed sliding doors out to conservatory.

Kitchen 11'10" (3.60m) x 9' (2.75m) narrowing to 7'1" (2.16m). Fitted with modern matching wall and base units set beneath worktops with inset sink and drainer. Integrated fridge, integrated dishwasher, integrated washing machine, inset electric oven and hob with hood over. Under unit lighting, spotlights, radiator, understairs storage cupboard. Window and door out to conservatory. Doors to lounge and entrance hall.

Conservatory 21'4" x 7'8" (6.5m x 2.34m). Of wooden construction with two sliding doors out to rear garden. Radiator. Sliding doors into lounge, door to kitchen and personal door into the garage.

Cloakroom    Fitted with a two-piece suite comprising wall mounted wash hand basin and low-level W.C. Radiator, tiled splashbacks and opaque double glazed window to the side aspect.

First Floor Landing    Access to roof void and doors to all principal rooms.

Bedroom One 10'2" (3.09m) x 8'8" (2.63m) excluding door recess. Built-in double wardrobe, radiator and double glazed window to the front aspect.

Bedroom Two 12'11" x 8'9" (3.94m x 2.67m). Built-in double wardrobe, radiator and double glazed window to the front aspect.

Bedroom Three 13'7" (4.14m) narrowing to 6'9" (2.07m) x 8'2" (2.50m) (L Shaped). Radiator and double glazed window to the rear aspect.

Bathroom    Fitted with a three-piece suite comprising panelled bath with shower attachment and screen over, low-level W.C and pedestal wash hand basin. Tiled splashbacks, spotlights, radiator and opaque double glazed window to the rear aspect.

Garage 16'5" x 8'5" (5m x 2.57m). Up and over door, light, power and personal door out to conservatory.

Front    The front of the property is laid to low maintenance, comprising a good size tarmac driveway providing ample off street parking whilst giving access to the garage, with a further area laid to stone chippings enclosed by low-level walling. A wooden gate to the side leads through to the side garden.

Rear    The rear garden is mainly laid to lawn accompanied by a paved seating area to one side. A low level picket fence with wooden gate leads into a further area laid to bark. The lawn area continues along the side of the property giving access to a wooden storage shed, the side garden offers scope to potentially extend the property subject to the necessary consents.

Property Information    Services
Mains water, electric and drainage. Oil central heating.

Broadband and mobile coverage
Superfast Broadband is available in this area and mobile signal should be available from all four major providers outdoors and one major providers indoors. Information supplied by ofcom.org.uk



Important Information

  • This is a Freehold property.

Property Ref: 131978_PFE210341

Share:

Similar Properties

Monmouth Court, Chard, Somerset, TA20

3 Bedroom Detached Bungalow | £350,000

Tucked away within a small private cul-de-sac within one of Chard Towns' most desirable postcodes, we are delighted to b...

Axeford Meadows, Chard Junction, Chard, Somerset, TA20

4 Bedroom Detached House | £350,000

A Spacious and Extended Four-Bedroom Detached Family Home in a Delightful Rural SettingSituated in an idyllic rural loca...

Linkhay Orchard, South Chard, Chard, Somerset, TA20

4 Bedroom Semi-Detached House | Offers in excess of £340,000

NO ONWARD CHAIN. An extended four bedroom semi-detached property extensively modernised by the current owners, sold with...

Wambrook Place, Chard, Somerset, TA20

3 Bedroom Detached House | £365,000

A extremely well presented three bedroom detached modern home with garage, gardens and parking situated within the popul...

Cook Avenue, Chard, Somerset, TA20

4 Bedroom Detached House | £375,000

A beautifully presented four bedroom detached property with good size garden situated on the popular Lordleaze developme...

Church Street, Winsham, Somerset, TA20

3 Bedroom Terraced House | £380,000

Set in a peaceful village location, this delightful Grade II listed property offers a rare opportunity to own a home in...

Paul Fenton Estate Agents (Chard)

34 Fore Street, Chard, Somerset, TA20 1PT

01460 68222

How much is your home worth?

Use our short form to request a valuation of your property.

Request a Valuation

Mortgage Calculator

Amount Borrowed: £
Total Amount Repayable: £
Total Monthly Payment: £
©2026 The Guild of Property Professionals. All rights reserved. Terms and Conditions | Privacy Policy | Cookie Policy | Complaints Policy | Members Login
The Guild of Property Professionals Trading Address: 121 Park Lane, London W1K 7AG. GPEA Limited. Registered in England & Wales.  Company No: 02819824.  Registered Office Address: 2 St. Stephen's Court, St. Stephen's Road, Bournemouth, Dorset, England, BH2 6LA.  VAT Registration No: 576 8795 61
Book a Property Valuation Update Cookies Preferences