- POPULAR NORTH WEST
- WELL PROPORTIONED SEMI-DETACHED
- THREE FAMILY BEDROOMS
- SITTING ROOM
- DINING ROOM
- FIRST FLOOR BATHROOM
- ENTRANCE HALL
- WEST FACING GARDEN WITH COURTYARD
- DESIGNATED PARKING AREAS
- OFF ROAD PARKING (STPP)
SUMMARY  A well presented three bedroom semi-detached family home of good proportions, located to the popular North West of Ipswich off Defoe Road, nicely set back from the road by a communal green. The accommodation, which has undergone improvements over recent years, comprises; enclosed porch, entrance hall, sitting room, dining room and kitchen on the ground floor, with landing, three bedrooms and bathroom on the first floor. To the outside, the frontage is low maintenance with gated side access to a side courtyard with outbuildings, leading to an established West facing garden mainly laid to lawn and entertainment patio with pagoda over. The property benefits from predominant double glazing, gas fired central heating via a modern boiler, and a replacement roof installed approximately four years ago. There are various designated car parking areas, and in the valuer's opinion, it may be possible to install off-road parking subject to gaining the required permissions. 
DOUBLE GLAZED DOOR & SIDE CASEMENT TO   
ENCLOSED PORCH  Door to. 
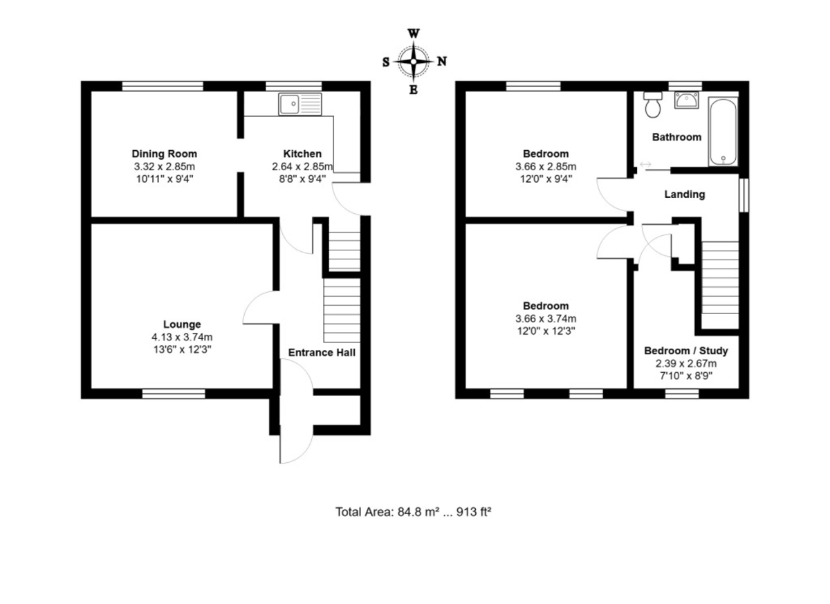
ENTRANCE HALL  Wood effect flooring, radiator, stairs with wood panelling feature rising to first floor, doors to. 
SITTING ROOM 13' 6" x 12' 3" approx. (4.11m x 3.73m) Double glazed window to front, radiator, feature open fireplace, television point, Virgin broadband point, shelved alcove. 
KITCHEN 8' 8" x 9' 4" approx. (2.64m x 2.84m) Double glazed window to rear, a range of base level fitted cupboard and drawer units, natural wood work surfaces, inset stainless steel sink drainer unit with flexi-mixer tap, tiled splash backs, pantry recess with window to side, spaces for cooker, fridge-freezer, washing machine and dish washer, wall mounted gas fired boiler (approximately four years old), stone effect flooring, opening through to dining room, double glazed door to side opening to side courtyard and garden. 
DINING ROOM 10' 11" x 9' 4" approx. (3.33m x 2.84m) Double glazed window to front, wood effect flooring. 
STAIRS RISING TO FIRST FLOOR   
LANDING  Obscure double glazed window to side, loft hatch access and loft ladder to partly boarded loft space with double glazed Velux roof window, built-in cupboard, doors to. 
BEDROOM ONE 12' max. into recess x 12' 3" approx. (3.66m x 3.73m) Twin double glazed windows to front, radiator, concealed fireplace. 
BEDROOM TWO 12' 9" x 4' approx. (3.89m x 1.22m) Double glazed window to rear, radiator. 
BEDROOM THREE 7' 10" narrowing to 3' 10" x 8' 9" narrowing to 5' 8" approx. (2.39m x 2.67m) Double glazed window to front, wood effect flooring. 
BATHROOM  Obscure double glazed window to rear, radiator, shaped shower bath with central mixer and electric shower over, pedestal hand-wash basin, low level WC, tiled splash backs, vinyl flooring, extractor fan. 
OUTSIDE  Set back from the road by a communal green, the property frontage is predominantly paved and low maintenance with a selection of shrubs, there is gated side pedestrian access to the rear which leads through a courtyard style area with brick outbuildings/stores, to a West facing established garden mainly laid to mature lawn and paved entertainment patio with pagoda over which benefits from a retractable material roof. A pathway leads to the end of the garden which is enclosed by fencing, stocked with a variety of trees, and enjoys a pleasant outlook. 
IPSWICH BOROUGH COUNCIL  Tax band B - Approximately £1,834.42 PA (2025-2026). 
NEAREST SCHOOLS (.GOV ONLINE)  Castle Hill primary and Ormiston Endeavour secondary. 
DIRECTIONS  Leaving Ipswich town centre and heading west on Crown St/A1156 towards Fonnereau Rd, turn right onto Fonnereau Rd, turn right onto Henley Rd, turn left onto Defoe Rd, turn left onto Parnell Rd, the destination will be on the right. 
BROADBAND & MOBILE PHONE COVERAGE  Broadband- To check the broadband coverage available in the area go to
https://checker.ofcom.org.uk/en-gb/broadband-coverage
Mobile Phone- To check mobile phone coverage in the area go to
https://checker.ofcom.org.uk/en-gb/mobile-coverage 
CONSUMER PROTECTION REGULATIONS  Your Ipswich Ltd has not tested any electrical items, appliances, plumbing or heating systems and therefore cannot testify that they are operational. These particulars are set out as a general outline only for the guidance of potential purchasers or tenants and do not constitute an offer or contract. Photographs are not necessarily comprehensive or current and all descriptions, dimensions, references to condition necessary permissions for use and occupation and other details are given in good faith and believed to be correct but should not be relied upon as statements of, or representations of, fact. Intending purchasers or tenants must satisfy themselves by inspection or otherwise as to the correctness of each of them. We have taken steps to comply with Consumer Protection Regulations 2008, which require both the seller and their agent to disclose anything, within their knowledge, that would affect the buying decision of the average consumer. If there are any aspects of this property that you wish to clarify before arranging an appointment to view or considering an offer to purchase, please contact us and we will make every effort to be of assistance.
Your Ipswich Ltd, as part of their service to both vendor and purchaser, offer assistance to arrange mortgage and insurance policies, legal services, energy performance certificates, and the valuation and sale of any property relating to any purchaser connected to this transaction. Your Ipswich Ltd confirms they will not prefer one purchaser above another solely because he/she has agreed to accept the offer of any other service from Your Ipswich Ltd. Referral commission (where received) is in the range of £60 to £200. 
Property Ref: 58007_100138004921
3 Bedroom End of Terrace House | £215,000
NO ONWARD CHAIN - An ideal opportunity to purchase this 3 bedroom end terraced property located to the South-West of Ips...
2 Bedroom End of Terrace House | Guide Price £215,000
CHAIN FREE - A well presented two double bedroom end of terrace house located in the favourite North East of Ipswich, wh...
2 Bedroom End of Terrace House | £210,000
CHAIN FREE - Ideal for either first time buyers or as an investment, this end terraced property is located to the North...
3 Bedroom Semi-Detached House | £220,000
NO ONWARD CHAIN - We are delighted to be offering for sale this 3 bedroom semi-detached property located to the South-We...
3 Bedroom End of Terrace House | £220,000
NO ONWARD CHAIN - An ideal opportunity to purchase this 3 bedroom end terraced property located to the South-West of Ips...
2 Bedroom Semi-Detached House | Guide Price £225,000
CHAIN FREE - A two/three bedroom semi-detached house in favourite East of Ipswich, convenient to the town centre and wat...
 
                            Your Ipswich (Ipswich)
125 Dale Hall Lane, Ipswich, Suffolk, IP1 4LS
Use our short form to request a valuation of your property.
Request a Valuation