Tudor Way, Knaphill, GU21

£235,000

2 Bedroom Apartment for sale in Knaphill

1 2 2
  • No Onward Chain
  • Two Double Bedrooms
  • Ensuite to Master
  • Second Floor
  • Building Accessed via Security System
  • Allocated Parking
  • Walking Distance to Knaphill Village
  • Within Easy Reach of Brookwood Mainline Station

PUBLIC NOTICE
ADDRESS: 45 Howard Court, Tudor Way, Knaphill, Surrey GU21 2UE
We are acting in the sale of the above property and have received an offer of £240,000
Any interested parties must submit any higher offers in writing to the selling agent before an exchange of contracts takes place
EPC Rating: C

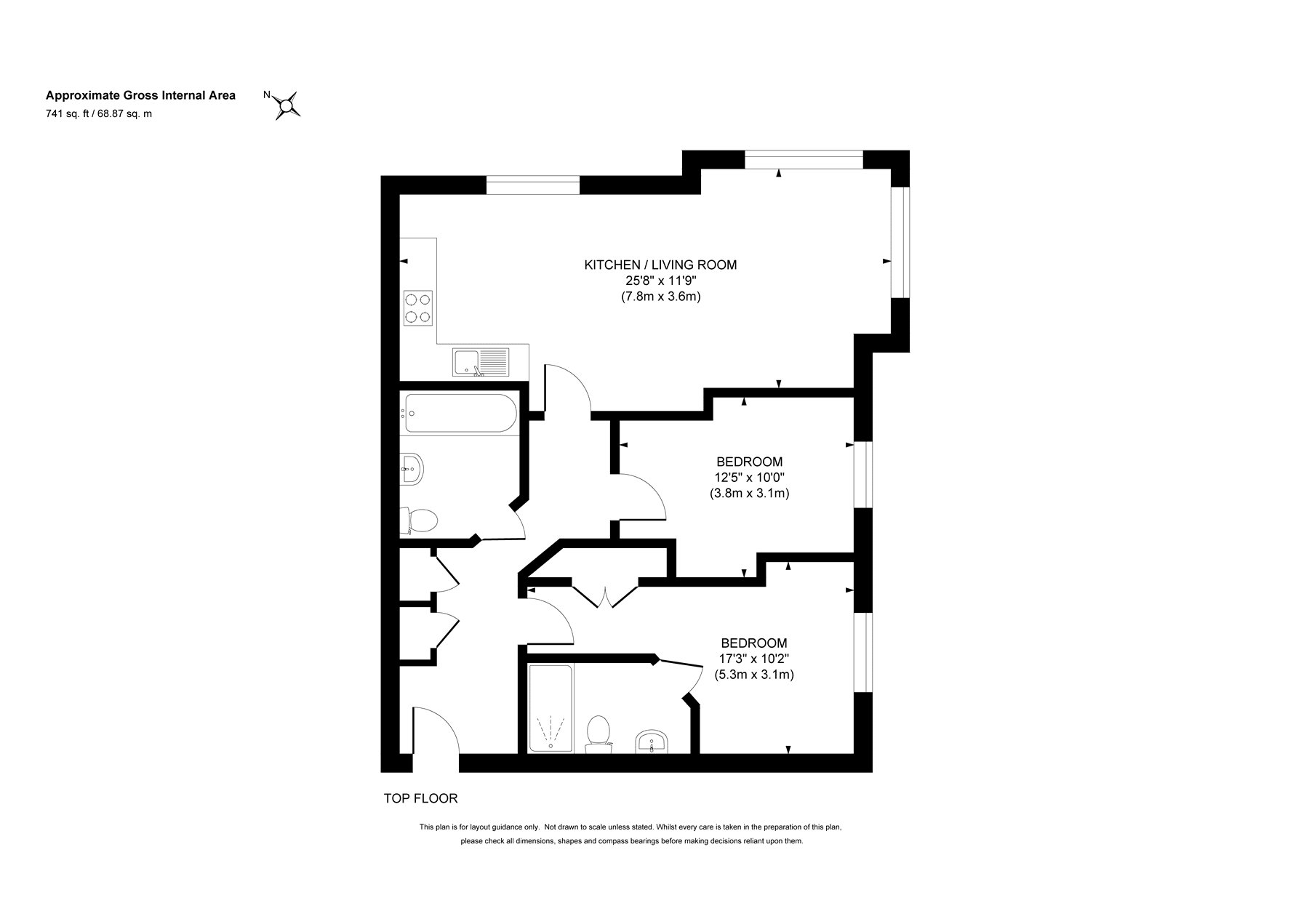
Positioned on the second floor, this well-proportioned apartment offers an excellent opportunity for buyers looking to add their own style, as the property is in need of some modernisation.
The accommodation comprises two generous double bedrooms, with the master benefiting from an en-suite shower room, alongside a separate family bathroom. At the heart of the home is a bright open-plan lounge/dining/kitchen, providing a versatile living space ideal for both everyday living and entertaining.
Further advantages include allocated parking, a lease of approximately 104 years, and the added benefit of no onward chain, ensuring a smoother purchase process.
Conveniently located within easy reach of Knaphill village and Brookwood mainline station, the property is well placed for local amenities and commuter links, making it an ideal first-time purchase or investment opportunity.

Property Information
Lease Length: Approx 104 years
Service Charge: £2226.70
Ground Rent: £TBC
Location
Knaphill village has a vibrant range of shops, pubs, restaurants and a Post Office. For more comprehensive shopping Sainsbury's superstore is approximately quarter of a mile away. For commuting, nearby Brookwood station provides a regular service direct to Waterloo, Woking and Guildford. For those who enjoy the outdoors there is Stafford Lake which is ideal for dog walking and nearby Brookwood Country Park ideal for a family stroll on a Sunday.

Important Information

  • This is a Leasehold property.

Property Ref: KNA120419

Share:

Similar Properties

Knaphill, Woking, GU21

1 Bedroom Terraced House | £235,000

This one bedroom terraced freehold starter home presents a fantastic opportunity for first time buyers, investors or tho...

Knaphill, Woking, Surrey, GU21

2 Bedroom Apartment | Offers in excess of £230,000

This ground floor apartment is offered to the market with no onward chain and is ideally located within easy reach of Br...

St Johns, Woking, Surrey, GU21

1 Bedroom Apartment | Offers in excess of £225,000

Located in a peaceful cul-de-sac adjacent to the picturesque Basingstoke Canal, this beautifully maintained ground floor...

Bisley, Woking, Surrey, GU24

2 Bedroom Maisonette | £249,950

Situated on the popular Flowers Development in Bisley, this spacious ground floor apartment is presented in excellent co...

Knaphill, Woking, Surrey, GU21

2 Bedroom Apartment | £265,000

A beautifully presented top floor apartment, ideally situated just moments from Knaphill village, offered to the market...

Knaphill, Woking, Surrey, GU21

2 Bedroom Apartment | Offers in excess of £275,000

This modern first floor apartment is within easy reach of Brookwood Mainline Station and is offered to the market with n...

Seymours (Knaphill)

Knaphill, Surrey, GU21 2PP

01483 798969

How much is your home worth?

Use our short form to request a valuation of your property.

Request a Valuation

Mortgage Calculator

Amount Borrowed: £
Total Amount Repayable: £
Total Monthly Payment: £
©2026 The Guild of Property Professionals. All rights reserved. Terms and Conditions | Privacy Policy | Cookie Policy | Complaints Policy | Members Login
The Guild of Property Professionals Trading Address: 121 Park Lane, London W1K 7AG. GPEA Limited. Registered in England & Wales.  Company No: 02819824.  Registered Office Address: 2 St. Stephen's Court, St. Stephen's Road, Bournemouth, Dorset, England, BH2 6LA.  VAT Registration No: 576 8795 61
Book a Property Valuation Update Cookies Preferences