Knaphill, Woking, Surrey, GU21

Offers in excess of
£275,000
SSTC
This property listing is now SSTC

2 Bedroom Apartment for sale in Woking

1 2 2
  • No Onward Chain
  • Walking Distance to Brookwood Mainline Station
  • Two Double Bedrooms
  • Allocated Parking
  • Ensuite to Master
  • Lease in Excess of 100 years
  • Close to Knaphill Village

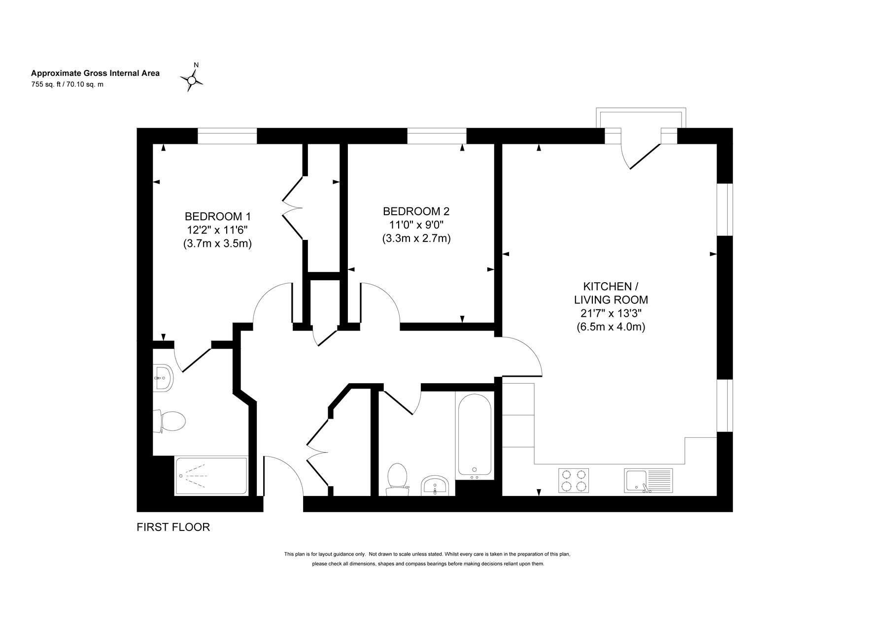
This modern first floor apartment is within easy reach of Brookwood Mainline Station and is offered to the market with no onward chain complications.
The property is offered to the market in excellent condition and offers accommodation to include two well-proportioned double bedrooms, the master enjoying the use of built in wardrobes and ensuite shower room.
The family bathroom has been fitted with white sanitary ware and includes a wash hand basin, w/c and bath with a shower over.
The main living space is open plan and incorporates the living room complete with Juliet balcony, dining area and kitchen that has been fitted with a range of base and eye level, high gloss units and integrated appliances.
Further benefits include allocated parking and a lease in excess of 100 years.
Property Information
Lease Length: 115 years
Service Charge: £1262.00pa
Ground Rent: £375.00pa
Location
Knaphill village has a vibrant range of shops, pubs, restaurants and a Post Office. For more comprehensive shopping Sainsbury's superstore is approximately quarter of a mile away. For commuting, nearby Brookwood station provides a regular service direct to Waterloo, Woking and Guildford. For those who enjoy the outdoors there is Stafford Lake which is ideal for dog walking and nearby Brookwood Country Park ideal for a family stroll on a Sunday.

Important Information

  • This is a Leasehold property.

Property Ref: 58085_KNA230352

Share:

Similar Properties

Knaphill, Woking, Surrey, GU21

2 Bedroom Apartment | £250,000

A ground floor apartment located a short stroll from the vibrant High Street of Knaphill, offering an array of shops and...

West End, Woking, Surrey, GU24

4 Bedroom Semi-Detached House | £244,000

** 40% SHARED OWNERSHIP OPPORTUNITY AVAILABLE ** A generously proportioned family home located in a highly desirable cul...

Brookwood, Woking, Surrey, GU24

1 Bedroom Apartment | £240,000

1-bed flat in Brookwood, Surrey. £240,000. Modern open-plan kitchen, bright living space, parking & easy London Waterloo...

Brookwood, Woking, Surrey, GU24

2 Bedroom Apartment | Offers in excess of £285,000

Offered to the market with no onward chain.This first-floor apartment is a stone's throw from Brookwood Mainline Station...

Knaphill, Woking, Surrey, GU21

2 Bedroom Apartment | £285,000

Tucked away in a quiet cul de sac on the sought after Brookwood Manor development, this spacious first floor apartment i...

Knaphill, Woking, Surrey, GU21

2 Bedroom Apartment | Offers in excess of £299,500

Presented in excellent condition, this modern first-floor apartment offers a comfortable and inviting living space with...

Seymours (Knaphill)

Knaphill, Surrey, GU21 2PP

01483 798969

How much is your home worth?

Use our short form to request a valuation of your property.

Request a Valuation

Mortgage Calculator

Amount Borrowed: £
Total Amount Repayable: £
Total Monthly Payment: £
©2025 The Guild of Property Professionals. All rights reserved. Terms and Conditions | Privacy Policy | Cookie Policy | Complaints Policy | Members Login
The Guild of Property Professionals Trading Address: 121 Park Lane, London W1K 7AG. GPEA Limited. Registered in England & Wales.  Company No: 02819824.  Registered Office Address: 2 St. Stephen's Court, St. Stephen's Road, Bournemouth, Dorset, England, BH2 6LA.  VAT Registration No: 576 8795 61
Book a Property Valuation Update Cookies Preferences