Knaphill, Woking, Surrey, GU21

£265,000

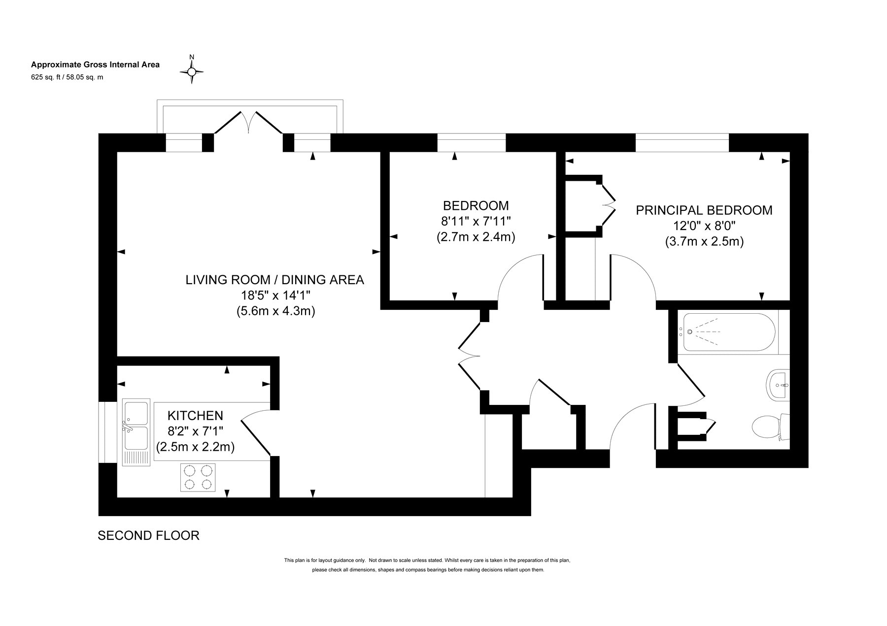
2 Bedroom Apartment for sale in Woking

2 2 1
  • Top Floor Apartment
  • Close to Local Amenities
  • No Onward Chain
  • Secure Entry System
  • Two Double Bedrooms
  • Lounge/Dining Room
  • Juliette Balcony

A beautifully presented top floor apartment, ideally situated just moments from Knaphill village, offered to the market in excellent condition and with no onward chain.
Accessed via a secure entry system, the building features well maintained communal areas that set the tone for this impressive home.
The accommodation comprises two generous double bedrooms and a modern family bathroom, fitted with a wash hand basin, WC and bath with wall mounted shower, all complemented by stylish floor to ceiling tiling.
A bright lounge/dining room provides an inviting living space and enjoys a Juliette balcony that brings in plenty of natural light. The adjoining kitchen has been fitted with a contemporary range of high gloss base and eye level units, along with a selection of integrated appliances.
This superb apartment would make an ideal first time purchase, downsize, or investment opportunity. Early viewing is highly recommended.
Property Information:
Lease Length: 94 years
Service Charge: £1400.00pa
Ground Rent: £410.00pa

Location
Knaphill village has a vibrant range of shops, pubs, restaurants and Post Office. For more comprehensive shopping Sainsbury's superstore is approximately quarter of a mile away. For commuting, nearby Brookwood station provides a regular service direct to Waterloo. Woking and Guildford. For those who enjoy the outdoors there is Stafford Lake which is ideal for dog walking and nearby Brookwood Country Park ideal for a family stroll on a Sunday.

Important Information

  • This is a Leasehold property.

Property Ref: KNA250492

Share:

Similar Properties

Bisley, Woking, Surrey, GU24

2 Bedroom Maisonette | £249,950

Situated on the popular Flowers Development in Bisley, this spacious ground floor apartment is presented in excellent co...

Knaphill, Woking, GU21

1 Bedroom Terraced House | £235,000

This one bedroom terraced freehold starter home presents a fantastic opportunity for first time buyers, investors or tho...

Tudor Way, Knaphill, GU21

2 Bedroom Apartment | £235,000

PUBLIC NOTICE ADDRESS: 45 Howard Court, Tudor Way, Knaphill, Surrey GU21 2UEWe are acting in the sale of the above prope...

Knaphill, Woking, Surrey, GU21

2 Bedroom Apartment | Offers in excess of £275,000

This modern first floor apartment is within easy reach of Brookwood Mainline Station and is offered to the market with n...

Knaphill, Woking, Surrey, GU21

1 Bedroom Terraced House | £275,000

Offered to the market in excellent condition, this attractive one bedroom terraced home has been thoughtfully updated by...

Woking, GU21

2 Bedroom Maisonette | Offers in excess of £275,000

**Chain Free** Welcome to this charming period maisonette located in a picturesque village setting. Situated on the mode...

Seymours (Knaphill)

Knaphill, Surrey, GU21 2PP

01483 798969

How much is your home worth?

Use our short form to request a valuation of your property.

Request a Valuation

Mortgage Calculator

Amount Borrowed: £
Total Amount Repayable: £
Total Monthly Payment: £
©2026 The Guild of Property Professionals. All rights reserved. Terms and Conditions | Privacy Policy | Cookie Policy | Complaints Policy | Members Login
The Guild of Property Professionals Trading Address: 121 Park Lane, London W1K 7AG. GPEA Limited. Registered in England & Wales.  Company No: 02819824.  Registered Office Address: 2 St. Stephen's Court, St. Stephen's Road, Bournemouth, Dorset, England, BH2 6LA.  VAT Registration No: 576 8795 61
Book a Property Valuation Update Cookies Preferences