Detached House with Building Plot, LS17

£1,050,000

4 Bedroom Not Specified for sale in Leeds

3 4 1
  • 4-BED DETACHED HOUSE
  • DEVELOPMENT PLOT ON SEPARATE TITLE
  • OUTLINE PLANNING SUBMITTED FOR 160 SQM HOUSE (ADVISORIES GIVEN)
  • HIGHLY SOUGHT AFTER LOCATION
  • SOLD CHAIN FREE
  • EPC - D
  • COUNCIL TAX BAND - G

*** VERY RARE OPPORTUNITY TO PURCHASE A 4-BED DETACHED HOME WITH DEVELOPMENT PLOT ON ITS OWN TITLE *** Stoneacre Properties are pleased to offer this unique plot which consists of a 4-bed detached house which offers great potential to modernise as well as a development plot on separate title.

Nestled in the desirable area of Primley Park Crescent, Leeds, this spacious four-bedroom detached family home offers a wonderful opportunity for those seeking a property with great potential. Positioned on the turn of the crescent, the house benefits from a delightful open aspect to the front, creating a welcoming and light-filled environment.

Upon entering, you will find a large hallway, which leads to two generously sized reception rooms, perfect for family gatherings or entertaining guests and a spacious, eat-in kitchen. There is a further large reception room currently used as a home office. The layout provides ample space for both relaxation and socialising, making it an ideal setting for family life. The property boasts four well-proportioned bedrooms, ensuring that there is plenty of room for everyone.

While the house is already spacious, it presents a fantastic opportunity for modernisation and extension, allowing you to tailor the space to your personal taste and requirements.

The current owners have submitted outline planning for the plot with LCC. The proposal was given commentary and amendments that would need to be made prior to a full application being submitted. The purchaser of the plot will be responsible for submitting a full planning application.

Development Plot - The outline planning submitted was for a 160 sqm detached 4-bed house.

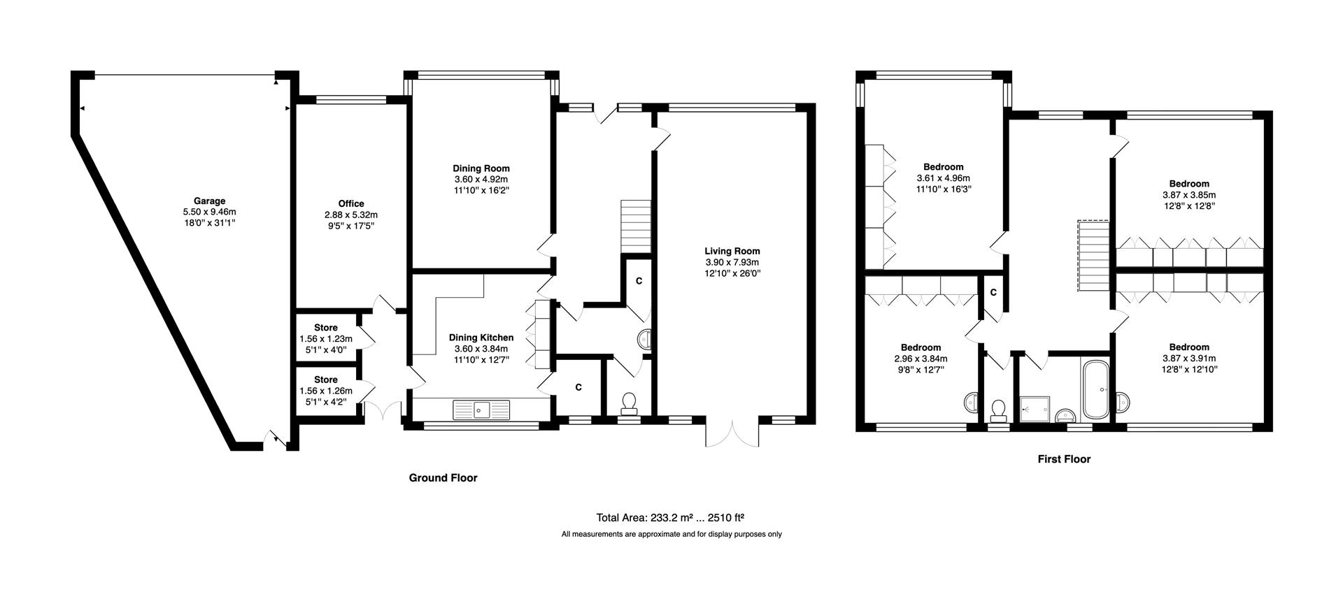
*** Detached House Details *** -

Entrance - Entering the property you are welcomed into the spacious entrance hallway which offers access to the living room, dining room, kitchen and to the cloakroom.

Lounge - Large formal lounge spans 26 feet in length and offers an abundance of space for seating making it ideal for gatherings. French doors lead out to the rear patio and garden.

Dining Room - Second spacious reception room is well positioned to offer easy access to the kitchen. Large window floods the room with natural light.

Kitchen - Generous sized kitchen overlooks the rear garden and offers space for a more informal dining table. Large pantry cupboard provides extra storage space. The kitchen leads through to a lobby area with two storage rooms, one housing the boiler and through to the third reception room currently used as an office.

Office - A large reception room currently used as a home office that could be used alternatively as a music room, games room or home cinema.

Cloakroom - Accessed off the hallway providing storage for coats and shoes, and leading to the w/c.

Landing - Open landing is bright and airy thanks to the large window to the front elevation of the property. The landing offers access to all four bedrooms and the bathroom.

Bedroom 1 - This large primary bedroom boasts a large bay window to the front elevation of the property flooding the room with natural light. Fitted storage runs the length of the room and space is offered for additional bedroom furniture such as drawers and dressing table.

Bedroom 2 - Second double bedroom again with fitted storage and built in dressing table, overlooks the rear garden of the property. The bedroom also has its own sink.

Bedroom 3 - Third double bedroom, with fitted wardrobes. This bedroom overlooks the rear garden and is complete with its own sink. This rooms provides access to the loft via hatch and ladder.

Bedroom 4 - Fourth double bedroom complete with fitted storage.

Bathroom - Comprising bath and sink with separate toilet.

Garage - Large garage with electric up and over door.

External - The front of the property is very open with a large driveway and well presented front garden. To the rear is a patio area and lawned garden.

Property Ref: 478966_34438754

Share:

Similar Properties

Harefield, Stair Foot Lane, Leeds

4 Bedroom Detached House | £800,000

*** ONE OF THE MOST UNIQUE HOUSES IN NORTH LEEDS *** 30 SECONDS FROM KING LANE WITH SOLELY RURAL OUTLOOKS *** IMMACULATE...

Wike Ridge Avenue, Leeds

5 Bedroom Detached House | £775,000

*** STUNNING 5-BED DETACHED HOME IN THE HEART OF ALWOODLEY *** SHOW STOPPING OPEN PLAN KITCHEN/LIVING/DINER *** PRIMARY...

Primley Park Crescent, Leeds

4 Bedroom Detached House | £750,000

Nestled in the desirable area of Primley Park Crescent, Leeds, this spacious four-bedroom detached family home offers a...

Fern Chase, Leeds

5 Bedroom Detached House | Offers Over £1,250,000

Nestled at the head of a queit cul-de-sac on the desirable Fern Chase in Scarcroft, this exceptionally presented stone b...

Spring Vale, Stainbeck Lane, Chapel Allerton, Leeds

Land | £1,850,000

Unique and rare opportunity to acquire a 0.7 acres prime site including period property that offers substantial resident...

Stoneacre Properties (Leeds)

Chapel Allerton, Leeds, West Yorkshire, LS7 4NZ

0113 2370999

How much is your home worth?

Use our short form to request a valuation of your property.

Request a Valuation

Mortgage Calculator

Amount Borrowed: £
Total Amount Repayable: £
Total Monthly Payment: £
©2026 The Guild of Property Professionals. All rights reserved. Terms and Conditions | Privacy Policy | Cookie Policy | Complaints Policy | Members Login
The Guild of Property Professionals Trading Address: 121 Park Lane, London W1K 7AG. GPEA Limited. Registered in England & Wales.  Company No: 02819824.  Registered Office Address: 2 St. Stephen's Court, St. Stephen's Road, Bournemouth, Dorset, England, BH2 6LA.  VAT Registration No: 576 8795 61
Book a Property Valuation Update Cookies Preferences