Swanholme Close, Lincoln

£475,000

4 Bedroom Detached House for sale in Lincoln

4 2
  • Executive 4 Bedroom Detached House
  • Lounge, Dining Room & Study
  • Refitted Kitchen, Breakfast Room & Utility
  • 4 Bedrooms, En-suite & Family Bathroom
  • Generous Corner Plot Gardens
  • Driveway & Double Garage
  • EPC Energy Rating - E
  • Council Tax Band - E (Lincoln City Centre)

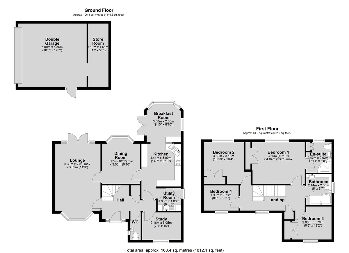
An impressive executive bay fronted detached family home, superbly positioned on a generous corner plot in the highly sought after Swanholme area, just south of the historic City of Lincoln. This beautifully maintained home offers spacious and thoughtfully extended accommodation. The ground floor features an inviting Entrance Hall, Cloakroom/WC, a generous Lounge, formal Dining Room, Study and a recently fitted Kitchen opening into a stylish Breakfast Room extension, complemented by a separate Utility Room. To the first floor, a light and airy galleried landing leads to four well proportioned Bedrooms, including a principal bedroom with En-suite Shower Room and a modern family Bathroom. Occupying an enviable corner plot, the property enjoys meticulously landscaped gardens to the front, side and rear, together with a block paved driveway providing ample off-street parking and access to a double garage with additional store room. Viewing is highly recommended to fully appreciate the space, setting and quality this exceptional home has to offer. 

LOCATION The historic Cathedral and University City of Lincoln has the usual High Street shops and department stores, plus banking and allied facilities, multiplex cinema, Marina and Art Gallery. The famous Steep Hill leads to the Uphill area of Lincoln and the Bailgate, with its quaint boutiques and bistros, the Castle, Cathedral and renowned Lincoln Bishop University. 

HALL With staircase to the first floor, under stairs storage cupboard, laminate flooring and radiator.  

CLOAKROOM/WC With close coupled WC, wash hand basin, tiled splashbacks, laminate flooring, chrome towel radiator and double glazed window to the side aspect.  

LOUNGE 17' 4" x 11' 9" (5.30m x 3.59m) With double glazed window to the front aspect, double glazed French doors to the rear garden, gas fire set within a decorative fireplace and two radiators. 

DINING ROOM 10' 4" x 9' 10" (3.17m x 3.00m) With double glazed bay window to the rear aspect and radiator. 

STUDY 10' 0" x 7' 1" (3.05m x 2.16m) With double glazed window to the front aspect and radiator. 

KITCHEN 14' 6" x 9' 10" (4.44m x 3.00m) Newly fitted with a stylish range of wall and base units with work surfaces over, stainless steel 1 1/2 bowl sink with side drainer and mixer tap over, integrated fridge, freezer, dishwasher and microwave, twin eye level electric ovens with warming drawer, gas hob and spotlights. 

BREAKFAST ROOM 9' 10" x 8' 9" (3.00m x 2.68m) A delightful addition with double glazed French doors to the rear garden, double glazed windows to the rear aspect, vaulted ceiling with two Velux windows and spotlights. 

UTILITY ROOM 6' 0" x 6' 0" (1.83m x 1.83m) Fitted with wall and base units with work surfaces over, stainless steel sink with side drainer and mixer tap over, space for washing machine, wall mounted gas fired central heating boiler, radiator and door to the side to the garden. 

FIRST FLOOR LANDING With double glazed window to the front aspect, airing cupboard and radiator. 

BEDROOM 1 13' 3" x 10' 9" (4.04m x 3.30m) With double glazed window to the rear aspect, fitted double wardrobe and radiator. 

EN SUITE SHOWER ROOM 7' 11" x 6' 7" (2.42m x 2.02m) Fitted with a three piece suite comprising of shower cubicle, close coupled WC and wash hand basin in a vanity unit, fitted storage cupboards, chrome towel radiator, tiled splashbacks, spotlights and double glazed window to the rear aspect.  

BEDROOM 2 10' 9" x 10' 4" (3.30m x 3.16m) With double glazed window to the rear aspect, fitted double wardrobe and radiator. 

BEDROOM 3 12' 1" x 8' 6" (3.70m x 2.60m) With double glazed window to the front aspect, fitted double wardrobe and radiator. 

BEDROOM 4 8' 11" x 6' 6" (2.73m x 1.99m) With double glazed window to the front aspect and radiator. 

BATHROOM 8' 0" x 6' 6" (2.44m x 2.00m) Fitted with a three piece suite comprising of p-shaped panelled bath with rainfall shower over and glass shower screen, close coupled WC and wash hand basin in a vanity unit, fitted storage cupboards, chrome towel radiator, spotlights and double glazed window to the side aspect.  

OUTSIDE The property sits on a pleasant corner plot. To the front there is a lawned garden with mature shrubs inset and a further lawned area to the side. There is a block paved driveway providing off street parking for multiple vehicles and giving access to the double garage. To the rear there is an established enclosed garden laid mainly to lawn with block paved seating area, flowerbeds and mature shrubs inset.  

DETACHED DOUBLE GARAGE 17' 7" x 16' 4" (5.36m x 5.00m) With an electric up and over door to the front, side personnel door, light and power. To the rear of the garage there is an additional store room. 

Property Ref: 102125028376

Share:

Similar Properties

Church Road, Saxilby

4 Bedroom Semi-Detached House | £475,000

A rare opportunity to acquire a beautifully presented Period Family Home, ideally positioned close to the heart of the p...

Doncaster Gardens, Navenby, Lincoln

4 Bedroom Detached Bungalow | £475,000

Situated in the ever desirable Cliff Village of Navenby, this superb four bedroom detached bungalow has been thoughtfull...

Rutland Avenue, Waddington

4 Bedroom Detached House | £475,000

A truly impressive Four Bedroom Executive Detached Home, occupying a generous corner plot within the highly sought after...

Pottergate Road, Wellingore, Lincoln

3 Bedroom Detached House | £480,000

A fantastic opportunity to acquire an executive detached family home on a generous plot of approximately 0.54 acres (STS...

Kings Way, Welton

5 Bedroom Detached House | Offers in region of £480,000

A spacious and executive five bedroom detached family home ideally situated in the ever popular village of Welton. The w...

Honey Pot Close, Lincoln

5 Bedroom Detached House | £490,000

Tucked away at the end of an exclusive cul-de-sac in the highly sought-after Uphill area of Lincoln, this impressive Fiv...

Mundys (Lincoln)

29 Silver Street, Lincoln, Lincolnshire, LN2 1AS

01522 510044

How much is your home worth?

Use our short form to request a valuation of your property.

Request a Valuation

Mortgage Calculator

Amount Borrowed: £
Total Amount Repayable: £
Total Monthly Payment: £
©2026 The Guild of Property Professionals. All rights reserved. Terms and Conditions | Privacy Policy | Cookie Policy | Complaints Policy | Members Login
The Guild of Property Professionals Trading Address: 121 Park Lane, London W1K 7AG. GPEA Limited. Registered in England & Wales.  Company No: 02819824.  Registered Office Address: 2 St. Stephen's Court, St. Stephen's Road, Bournemouth, Dorset, England, BH2 6LA.  VAT Registration No: 576 8795 61
Book a Property Valuation Update Cookies Preferences