Godnow Road, Crowle

Asking Price
£675,000

5 Bedroom Detached House for sale in Lincolnshire

2 5 5
  • AN OUTSTANDING NEWLY BUILT DETACHED HOUSE
  • GROUNDS TOTALLING 3 ACRES WITH A INDEPENDANT ENTRANCE
  • PEACEFUL EDGE OF TOWN LOCATION
  • IMPRESSIVE OPEN PLAN LIVING/DINING KITCHEN
  • 5 EXCELLENT DOUBLE BEDROOMS WITH 3 EN-SUITES
  • LUXURY MASTER BEDROOM WITH STUNNING VIEWS
  • LARGE PRINCIPAL DRIVEWAY LEADING TO A DOUBLE GARAGE
  • EXCELLENT BUSINESS OPPORTUNITIES
  • VIEWING IS ESSENTIAL TO FULLY APPRECIATE

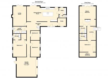
** CARAVAN & MOTORHOME CLUB CL SITE ** 3 ACRES ** SUBSTANTIAL ACCOMMODATION APPROACHING 2900 SQ FT ** A most impressive newly built, chalet style detached house offering well appointed accommodation that presents immaculately with an internal inspection essential to fully appreciate. The accommodation comes well arranged and extremely versatile over 2 floors comprises, central reception hallway, study, feature open plan living/dining kitchen with quality furniture and integral appliances, useful utility room that leads to a cloakroom, spacious living room with a central stove and bi-folding doors to the garden, luxury main family bathroom with 3 ground floor double bedrooms with one providing an en-suite shower room. The first floor has a central landing leading to 2 further double bedrooms with both providing en-suite shower rooms and built-in wardrobes. The master bedroom enjoys a freestanding bath an stunning views across the paddock. A principal driveway allows extensive parking for numerous vehicles allowing direct access to the attached double garage. Formal gardens surrounding the property are principally lawned with a flagged seating area that adjoins the kitchen and living room. A second front driveway leads behind the property to the paddock area that extends to 2.5 acres and has two hardstanding areas and two lawned sections. https://www.caravanclub.co.uk/certificated-locations/england/lincolnshire/epworth/longacres/ Viewing comes with the agents highest of recommendations. For all further information and to arrange a viewing please contact our Epworth office.

Important Information

  • This Council Tax band for this property is: F
  • EPC Rating is B

Property Ref: PFE250143

Share:

Similar Properties

Godnow Road, Crowle, Lincolnshire, DN17

5 Bedroom Detached House | £675,000

** CARAVAN & MOTORHOME CLUB CL SITE ** 3 ACRES ** SUBSTANTIAL ACCOMMODATION APPROACHING 2900 SQ FT ** A most impressive...

Cove Road, Westwoodside, Lincolnshire, DN9

4 Bedroom Detached House | £595,000

** CIRCA 2.35 ACRES ** EXCELLENT RANGE OF OUTBUILDINGS ** PEACEFUL EDGE OF VILLAGE LOCATION ** 'Sandyacres' offers a rar...

North Street, West Butterwick

5 Bedroom Detached House | Asking Price £595,000

** 7 RECPETION ROOMS ** CIRCA 0.7 ACRE PLOT ** 'The White House' is an outstanding double bay fronted detached period ho...

Godnow Bridge, Crowle

6 Bedroom Detached House | Asking Price £795,000

** 3850 SQ FT ** CIRCA 1.2 ACRE PLOT (sts) ** STUNNING OPEN VIEWS ** EXCELLENT RANGE OF OUTBUILDINGS ** 'Willow Brook Fa...

Godnow Bridge, Crowle, Lincolnshire, DN17

6 Bedroom Detached House | £795,000

** 3850 SQ FT ** CIRCA 1.

Crowle, Lincolnshire

9 Bedroom Detached House | Offers in region of £1,400,000

** CIRCA 9 ACRES ** HOUSE WITH ACCOMMODATION OVER 7000 SQ FT ** DETACHED ANNEX & GAMES ROOM ** VAST RANGE OF OUTBUILDING...

Paul Fox (Epworth)

Epworth, Lincolnshire, DN9 1EP

01427 339100

How much is your home worth?

Use our short form to request a valuation of your property.

Request a Valuation

Mortgage Calculator

Amount Borrowed: £
Total Amount Repayable: £
Total Monthly Payment: £
©2026 The Guild of Property Professionals. All rights reserved. Terms and Conditions | Privacy Policy | Cookie Policy | Complaints Policy | Members Login
The Guild of Property Professionals Trading Address: 121 Park Lane, London W1K 7AG. GPEA Limited. Registered in England & Wales.  Company No: 02819824.  Registered Office Address: 2 St. Stephen's Court, St. Stephen's Road, Bournemouth, Dorset, England, BH2 6LA.  VAT Registration No: 576 8795 61
Book a Property Valuation Update Cookies Preferences