St Ive, Liskeard - Cornwall

£1,650,000

9 Bedroom Farm House for sale in Liskeard

9 6
  • Bespoke 5 bedroom Barn conversion
  • Well-presented 4 bedroom Farmhouse
  • 47 Acre Farm
  • Arable, Grass and Woodland
  • Livestock / General Purpose Buildings
  • Amenity woodland
  • Easily Accessible location

Well located 47 acre residential farm with a spacious, bespoke 5 bedroom barn conversion and a well-presented 4 bedroom farmhouse. Livestock and general purpose buildings. Attractive arable/grassland and areas of amenity woodland.

Upham Farm - Upham Farm is quietly located a short distance from the rural village of St Ive and Callington is 3 miles east and Liskeard 6 miles west both offer day to day facilities with individual shops, supermarket, health, educational and recreational facilities. Launceston (A30) is 14 miles to the north and Plymouth (A38) is 17 miles to the south east.

Upham is a well located 47 acre livestock/arable and residential farm boasting a spacious, bespoke 5 bedroom barn conversion providing comfortable and flexible family living and well-presented 4 bedroom farmhouse together with a group of useful Livestock and general purpose buildings and workshop. Attractive arable, grassland and areas of amenity woodland.

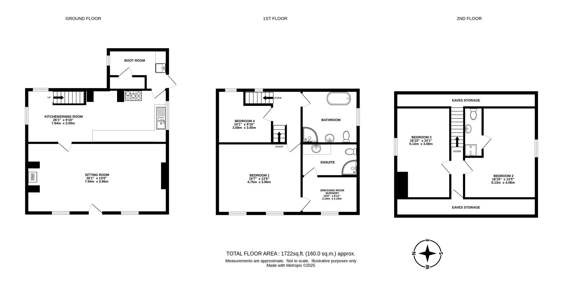
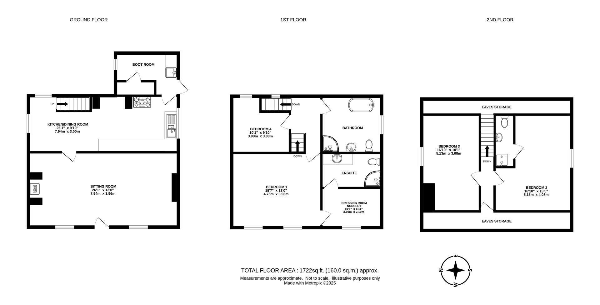
Damson Barn - Damson Barn is a 5 bedroom bespoke design barn conversion, internally finished to a high standard, benefiting from oil fired central heating, underfloor heating to the ground floor, radiators to the first, double glazed windows and doors. The accommodation briefly comprises: Entrance Hall; chestnut laminate flooring, steps to the lower ground floor and stairs to the first floor. Utility / Boot Room; tiled floor, base units under beech block effect worksurface, inset stainless steel sink and drainer, space and plumbing for a washing machine and tumble dryer. Cloakroom; tiled floor, wash basin and w/c. Study; chestnut laminate flooring, window to the side. Kitchen / Dining room; fitted wall and base units under quartz worksurfaces, Smeg electric range cooker with induction hob, extractor hood above, built in dishwasher, central island with cupboard and drawers under a quartz worksurface. Bi-fold powder coated double glazed doors open to the rear garden. Panty; fitted shelves Sitting Room; a dual aspect room, windows to the side and rear, enjoying views over the land and surrounding countryside, chestnut laminate flooring, woodburning stove on a polished black granite hearth.

On the lower ground floor; 2 double bedrooms; Family bathroom, wash basin, w/c, and 'p' shaped bath with shower enclosure. On the first floor; two double bedrooms. Bathroom; wash basin, w/c and 'p' shaped bath with shower enclosure. Master suite; a large dual aspect bedroom, windows and door to the rear opening onto a large balcony (to be completed) enjoying far reaching views over the land and surrounding countryside. Dressing Room; fitted wardrobes, further hanging space and drawers. En suite; vanity unit, with twin sinks, double ended bath, shower enclosure, heated towel rails and separate cloakroom with w/c and corner vanity unit and wash basin.

Upham House - The well-presented and spacious accommodation benefits from uPVC double glazed windows and doors with LPG fired central heating and retains many of its character features with natural stone inglenook fireplaces, oak doors and beamed ceilings. The accommodation briefly comprises; Sitting room; inglenook fireplace, woodburning stove. Kitchen / Breakfast Room; wood effect tiled floor, fitted wall and base units under beech blocked effect roll top worksurfaces, 1? bowl stainless steel sink and drainer, space for washing machine, Kenwood electric range cooker, with extractor hood above, inglenook fireplace with bread oven, beamed ceiling. Utility / Boot Room; Butler's sink, space and plumbing for washing machine, door to the rear. Cupboard housing the hot water cylinder, boiler and general storage.

On the First Floor; Landing with staircase to the second floor. Family Bathroom; double ended bath, shower enclosure, vanity unit with wash handbasin, w/c, heated towel rail. Bedroom with window to the rear and Master suit, with a generous double bedroom, dressing room / nursery window to front. En suite; shower, w/c, vanity unit, with wash hand basin.
On the second floor; A double bedroom, window to the side overlooking the garden and surrounding countryside. En suite; wash basin, w/c, heated towel rail, shower enclosure with full body jets.

Outside - At the front of the house is a parking area, a path leads around to the rear of the garden and the lawned terrace and flowerbed borders interspersed with fruit trees and enclosed within wooden fencing and treelined Cornish bank hedging.

The Land - The farm extends to approximately 47 acres in a ring fence. The interesting and attractive land is divided into 12 easily manageable enclosure being mainly down to grass with small areas of arable and amenity woodland.

Workshop - 15.24m x 13.72m (49'11" x 45'0" ) -

General Purpose / Livestock Building: - 7.35m x 6.20m (24'1" x 20'4") -

Adjoining Workshop - 11.50m x 7.45m (37'8" x 24'5" ) -

Adjoining General Purpose Store - 22.55m x 3.62m (73'11" x 11'10" ) -

Opening To General Purpose Store / Workshop - 12m x 14m (39'4" x 45'11" ) -

Adjoining Lean To - 4.78m x 3.98m (15'8" x 13'0" ) -

Adjoining Workshop / Store - 11.85m x 6.90m (38'10" x 22'7" ) -

Livestock Building - 14.75m x 18.15m (48'4" x 59'6" ) - Of steel frame portal construction.

Adjoining Fodder / Livestock Building - 14.75m x 6m (48'4" x 19'8" ) -

General Purpose / Livestock Building - 18.25m x 7m (59'10" x 22'11" ) -

Nissen Hut Storage Building - 8.45m x 3.01m (27'8" x 9'10" ) -

Services & Information - Water - mains
Drainage - Septic Tank
Electricity - Mains
Heating - Damson Barn - Oil fired central heating and woodburning stove
Upham House - LPG fired central heating and woodburning stove
Broadband - 4G receiver
Mobile Availability - checker.ofcom.org.uk
Council Tax Currently Band - C / TBA
EPC - Upham Farmhouse E42 Damson Barn C75
Renewable - Photovoltaic solar panels on the roof of Damson
Construction - Upham House Stone / Damson Barn Stone and Block

Local Authority - Cornwall Council
Country Hall, Treyew Road, Truro, Cornwall, TR1 3AY. 0300 1234 100

Tenure - The property is offered for sale freehold with vacant possession on completion.

Viewing Arrangements - Strictly by appointment with D. R. Kivell Country Property 01822 810810. All viewings are to be accompanied without exception. Walking the land unaccompanied is strictly forbidden as livestock are present.

Property Ref: 9200_34180287

Share:

Similar Properties

Stratton, Bude - Cornwall

7 Bedroom Country House | £1,650,000

The Owners Said - " I wouldn't hesitate to recommend D. R. Kivell Country Property to anyone wishing to selI. Thank-you...

Lanreath, Looe - Cornwall

13 Bedroom Detached House | £1,650,000

Extensive lifestyle property - holiday business - multi-generational living, close to the South Cornwall Coast. Well pre...

Bridestowe, Devon

7 Bedroom Country House | £1,560,000

The Owners said - "Cannot recommend the team highly enough. Particular credit should go to Geoff and Peter who communica...

Crackington Haven, Bude - Cornwall

7 Bedroom Country House | £1,750,000

The Owner Said - "Failure to sell my home in a seller's market resulted in me moving onto D. R. Kivell Country Property....

St Mellion, Saltash - Cornwall

8 Bedroom Country House | £1,760,000

The Owners said "We were extremely pleased with the service we received from D.R. Kivell Country Property. Not only did...

Camelford, Cornwall

9 Bedroom Farm | £1,800,000

The Owners Said "We would like to thank David and his team for advising us on the sale of our property. They kept us inf...

D. R. Kivell Country Property (Tavistock)

Tavistock, Devon, PL19 0NW

01822 810810

How much is your home worth?

Use our short form to request a valuation of your property.

Request a Valuation

Mortgage Calculator

Amount Borrowed: £
Total Amount Repayable: £
Total Monthly Payment: £
©2025 The Guild of Property Professionals. All rights reserved. Terms and Conditions | Privacy Policy | Cookie Policy | Complaints Policy | Members Login
The Guild of Property Professionals Trading Address: 121 Park Lane, London W1K 7AG. GPEA Limited. Registered in England & Wales.  Company No: 02819824.  Registered Office Address: 2 St. Stephen's Court, St. Stephen's Road, Bournemouth, Dorset, England, BH2 6LA.  VAT Registration No: 576 8795 61
Book a Property Valuation Update Cookies Preferences