High Street, Lower Stoke, Rochester, ME3

Guide Price
£360,000

3 Bedroom Semi-Detached House for sale in Lower Stoke, Rochester

2 3 1
  • Three Bedrooms
  • Semi-Detached House
  • Village Location, South of Rochester
  • Local Amenities & Schools
  • Downstairs Cloakroom & Utility Room
  • Driveway & Garage
  • Good Sized Garden
  • Easy Access to A228/M2 Links

Guide Price £360,000 - £375,000

Lower Stoke is a village South of Rochester, surrounded by beautiful countryside, a great location for walkers & cyclists. Local amenities cater for village life and yet provides easy access to motorway links and the historic town of Rochester. The property itself is in walking distance of these amenities and has been a family home for many years.

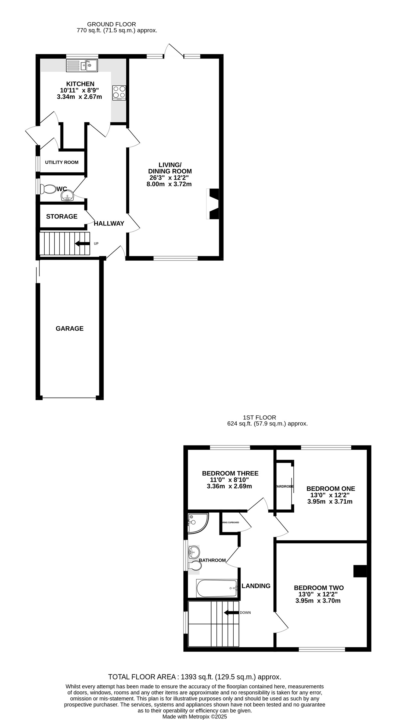
Accommodation comprises: entrance hall and a downstairs cloakroom. The lounge/dining room is of generous proportions with a fireplace as a focal point. The kitchen has a range of cupboards and worksurfaces with hob and oven. The utility room is a useful addition to the downstairs rooms and there is access from here to the rear garden. Upstairs are three good sized bedrooms and a family bathroom.

There is a well kept rear garden, ideal for family and pets. Lawned area with shrub borders and side gate access. To the front garden is a driveway and a garage with power and light.

Lovely property, not far from the Hoo peninsula. Must be viewed.

Ground Floor


Hallway


Living/Dining Room
26' 3" x 12' 2" (8.00m x 3.71m)

Kitchen
10' 11" x 8' 9" (3.33m x 2.67m)

Utility Room


WC


First Floor


Bedroom 1
13' 0" x 12' 2" (3.96m x 3.71m)

Bedroom 2
13' 0" x 12' 2" (3.96m x 3.71m)

Bedroom 3
11' 0" x 8' 10" (3.35m x 2.69m)

Bathroom
10' 4" x 7' 2" (3.15m x 2.18m)

External


Garage


Important Information

  • This is a Freehold property.

Property Ref: 5093134_29740344

Share:

Similar Properties

West Drive, Davis Estate, Chatham, ME5

3 Bedroom Semi-Detached House | Offers in excess of £355,000

Being offered with no forward chain is this three bedroom semi-detached home situated on the popular Davis Estate Develo...

Emily Road, Princes Park, Chatham, ME5

3 Bedroom End of Terrace House | £350,000

This Georgian style bay fronted house is offered in excellent order throughout and would suit first time buyers or famil...

Berkeley Close, Rochester, ME1

3 Bedroom Semi-Detached House | £350,000

Being offered with no forward chain. If you are looking for a home to make your own then this would be ideal. It is situ...

Bronington Close, Princes Park, Chatham, ME5

3 Bedroom Detached House | Guide Price £400,000

Guide Price £400,000 - £425,000Exceptional detached house in the ever popular Princes Park, suburb of Chatham. Local sch...

Forestdale Road, Walderslade Woods, Chatham, ME5

3 Bedroom Link Detached House | Offers Over £400,000

Situated in the sought after area of Walderslade Woods with its proximity to local schools, motorway links and walks. Th...

Wallace Road, Rochester, ME1

5 Bedroom Semi-Detached House | £400,000

Being offered with no onward chain is this 5 bedroom extended semi-detached. Rarely do properties become available in th...

Greyfox Sales & Lettings (Walderslade)

Walderslade Village Centre, Walderslade, Walderslade, Kent, ME5 9LR

01634 672227

How much is your home worth?

Use our short form to request a valuation of your property.

Request a Valuation

Mortgage Calculator

Amount Borrowed: £
Total Amount Repayable: £
Total Monthly Payment: £
©2025 The Guild of Property Professionals. All rights reserved. Terms and Conditions | Privacy Policy | Cookie Policy | Complaints Policy | Members Login
The Guild of Property Professionals Trading Address: 121 Park Lane, London W1K 7AG. GPEA Limited. Registered in England & Wales.  Company No: 02819824.  Registered Office Address: 2 St. Stephen's Court, St. Stephen's Road, Bournemouth, Dorset, England, BH2 6LA.  VAT Registration No: 576 8795 61
Book a Property Valuation Update Cookies Preferences