Walnut House, 70A Middlecave Road, Malton, YO17 7NE

Guide Price
£1,350,000

5 Bedroom Detached House for sale in Malton

3 5 4
  • UNIQUE ARCHITECT DESIGNED PROPERTY
  • AMAZING ENTERTAINING SPACE WTH WRAP AROUND BALCONIES
  • OVER 5000 SQ FT
  • 5 DOUBLE BEDROOMS
  • MASTERSUITE WITH DRESSING ROOM
  • GROUND FLOOR SUITE WITH GYM & DRESSING ROOM
  • SWIMSPA WITH HOT TUB
  • GARDEN ROOM WITH BAR & KITCHEN AREA
  • GERMAN KITCHEN
  • UNDERFLOOR HEATING THROUGHOUT

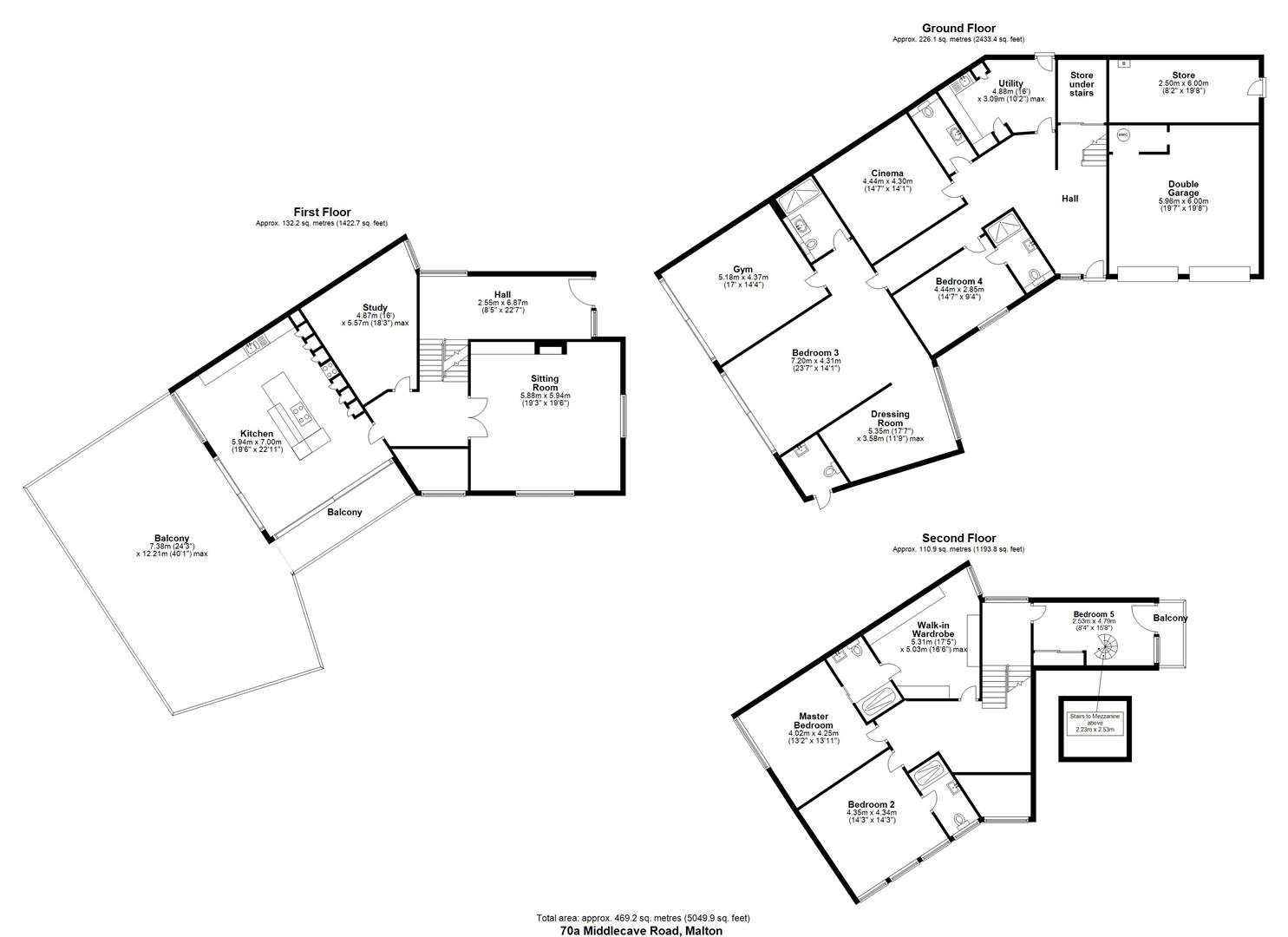
GROUND FLOOR
Underfloor heating throughout.

RECEPTION HALL
Floor to ceiling, underfloor heating.

CINEMA ROOM
4.44 x 4.3 (14'6" x 14'1") - 8 seats, projector screen, sound system.

GROUND FLOOR BEDROOM SUITE
7.2 x 4.31 (23'7" x 14'1") - Sliding doors onto the garden, freestanding bath on tiled floor.

GROUND FLOOR BEDROOM EN SUITE
Wall hung vanity with ceramic gold sink, electric mirror, towel rail, underfloor heating, shower.

GROUND FLOOR DRESSING ROOM
5.35 x 3.58 (17'6" x 11'8")

GYM OFF GROUND FLOOR SUITE
5.18 x 4.37 (16'11" x 14'4")

UTILITY ROOM
4.88 x 3.09 (16'0" x 10'1") - Plumbed for washing machine, dryer, sink.

GUEST CLOAKROOM
Wall hung vanity unit with gold sink, wall hung WC.

GROUND FLOOR BEDROOM FOUR
4.44 x 2.85 (14'6" x 9'4")

EN-SUITE FOUR
Wall hung vanity sink, towel rail, shower, wc.

FIRST FLOOR HALL
2.55 x 6.87 (8'4" x 22'6") - Side entrance hall with large glazed door. Stairs up to;

SITTING ROOM
5.88 x 5.94 (19'3" x 19'5") - Floor to ceiling glazing onto front and side aspects, media wall with gas fire inset, double doors onto landing, glazed window onto top landing.

STUDY
4.87 x 5.57 (15'11" x 18'3")

KITCHEN
5.94 x 7 (19'5" x 22'11") - German kitchen, liebherr fridge, freezer, full size wine cooler, quooker hot water tap, counters lit, induction hob,

WRAP ROUND BALCONY
7.38 x 12.21 (24'2" x 40'0")

SECOND FLOOR

MASTER BEDROOM
4.02 x 4.25 (13'2" x 13'11") - Floor to ceiling windows, sliding door through to ensuite.

MASTER EN-SUITE
Fully tiled, towel rail, wall hung vanity unit, mirrored vanity cupboard, shower, underfloor heating. Leads to dressing room.

WALK IN WARDROBE/DRESSING ROOM
5.3 x 5.03 (17'4" x 16'6") - Bespoke handmade open wardrobes, sensor lights, cabinets lit.

BEDROOM FIVE
2.53 x 4.7 (8'3" x 15'5") - With spiral staircase to mezzanine.

MEZZANINE
2.29 x 2.53 (7'6" x 8'3") - TV power points.

DOUBLE GARAGE
5.96 x 6.00 (19'6" x 19'8") - Double garage doors, electric, water cylinder, water tap.

OUTSIDE
Driveway parking to the front, double garaging, two entrances, landscaped gardens, terraces, swim spa, outside garden toilet, boiler room, garden lighting, security lighting, outside taps, electric points.

SWIM SPA WITH HOT TUB
Installed in 2021, hot tub seats 8. Swim spa with jets.

GARDEN ROOM WITH BAR
Located at the bottom of garden, fridges, wine fridge, kitchen sink with hot & cold water, electric, bi folding doors.

SERVICES
Mains gas, water and electricity.

TENURE
Freehold.

COUNCIL TAX BAND G

Property Ref: 29709_33726044

Share:

Similar Properties

Walnut House, 70A Middlecave Road, Malton, YO17 7NE

5 Bedroom Detached House | Guide Price £1,350,000

*A Visionary Family Home of Architectural Brilliance*Walnut House is an exceptional contemporary house designed by award...

Bridgefoot House, Chestnut Avenue Thornton-Le-Dale, Pickering, YO18 7RR

8 Bedroom Detached House | Guide Price £1,300,000

Bridgefoot House is an immaculate period detached family home set alongside Thornton Beck. Built by Lady Lumley in 1657...

Bridgefoot House, Chestnut Avenue Thornton-Le-Dale, Pickering, YO18 7RR

8 Bedroom Detached House | Guide Price £1,300,000

Bridgefoot House is an immaculate period detached family home set alongside Thornton Beck. Built by Lady Lumley in 1657...

Willowgreen Estate Agents (Malton)

Malton, North Yorkshire, YO17 7LY

01653 916600

How much is your home worth?

Use our short form to request a valuation of your property.

Request a Valuation

Mortgage Calculator

Amount Borrowed: £
Total Amount Repayable: £
Total Monthly Payment: £
©2026 The Guild of Property Professionals. All rights reserved. Terms and Conditions | Privacy Policy | Cookie Policy | Complaints Policy | Members Login
The Guild of Property Professionals Trading Address: 121 Park Lane, London W1K 7AG. GPEA Limited. Registered in England & Wales.  Company No: 02819824.  Registered Office Address: 2 St. Stephen's Court, St. Stephen's Road, Bournemouth, Dorset, England, BH2 6LA.  VAT Registration No: 576 8795 61
Book a Property Valuation Update Cookies Preferences