Northdown Park Road, Margate

£365,000
SSTC
This property listing is now SSTC

4 Bedroom Terraced House for sale in Margate

2 4 2
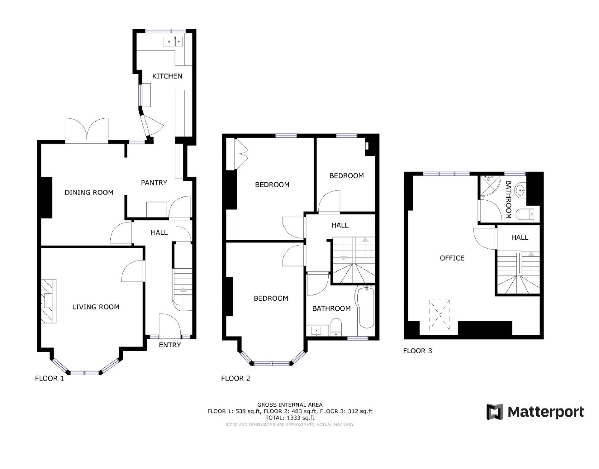
  • Four bedrooms
  • Lounge & dining room
  • Council tax band: b
  • No chain
  • Period features
  • Fitted kitchen
  • Bathroom & en-suite
  • Gfch
  • Rear garden
  • Epc rating: d

Cooke and Co are delighted to bring to the market this four bedroom Period property which offers so much potential for anyone wanting to put their own stamp on a home. This terrace property is, in our opinion spacious and offers a separate lounge and dining room which opens out into a breakfast area leading into the main body of the kitchen. The first floor offers three bedrooms and a family bathroom whilst the second floor boasts the primary suite with its own en-suite shower room. The garden to the rear offers an ideal space for entertaining and is currently mainly laid to lawn. Inside you will find gas-fired central heating, double-glazing and also a cellar for storage. The location of this home makes it ideal for anyone wanting to enjoy all the benefits of Dane Park and Margates beaches as both are within easy reach of this house and with no onward chain we do not expect this to be available for long. Call us today to arrange your accompanied viewing or see more at www.cookeandco.com

Important Information

  • This is a Freehold property.

Property Ref: 202202_COOKEANDCO_5707

Share:

Similar Properties

St. Lukes Avenue, Ramsgate

4 Bedroom Semi-Detached House | £350,000

Cooke & Co are pleased to offer this beautifully presented four-bedroom semi-detached home, set in the sought-after St....

Vicarage Street, Broadstairs

2 Bedroom Detached Bungalow | £350,000

Charming Detached Bungalow in the Heart of St. Peter's Village, Broadstairs . Situated on the ever-popular Vicarage Stre...

Northdown Road, Margate

3 Bedroom Semi-Detached House | £350,000

Situated on this ever popular residential location, this three bedroom semi detached home offers a fantastic opportunity...

Nightingale Place, Margate

3 Bedroom Semi-Detached House | £370,000

A Hidden Gem in Margate Full of Character, Charm, and Community Vibes. Cooke & Co are delighted to bring to market this...

Wilkes Road, Broadstairs

2 Bedroom Detached Bungalow | £375,000

Cooke & Co are delighted to bring to the market this two-bedroom detached bungalow, set on a desirable corner plot with...

Palm Bay Avenue, Margate

3 Bedroom Flat | £375,000

Stunning Coastal Retreat! Three-Bedroom Apartment with Panoramic Sea Views ! Share of Freehold! Step into this exception...

Cooke & Co Estate and Letting Agents (Cliftonville)

Cliftonville, Kent, CT9 2QY

01843 231833

How much is your home worth?

Use our short form to request a valuation of your property.

Request a Valuation

Mortgage Calculator

Amount Borrowed: £
Total Amount Repayable: £
Total Monthly Payment: £
©2025 The Guild of Property Professionals. All rights reserved. Terms and Conditions | Privacy Policy | Cookie Policy | Complaints Policy | Members Login
The Guild of Property Professionals Trading Address: 121 Park Lane, London W1K 7AG. GPEA Limited. Registered in England & Wales.  Company No: 02819824.  Registered Office Address: 2 St. Stephen's Court, St. Stephen's Road, Bournemouth, Dorset, England, BH2 6LA.  VAT Registration No: 576 8795 61
Book a Property Valuation Update Cookies Preferences