Northdown Road, Margate

£350,000
SSTC
This property listing is now SSTC

3 Bedroom Semi-Detached House for sale in Margate

2 3 1
  • Three bedrooms
  • Two receptions
  • Council tax band: d
  • Vacant possession
  • Conservatory
  • Attractive gardens
  • Off street parking and garage
  • Gfch
  • Epc rating: d
  • Freehold

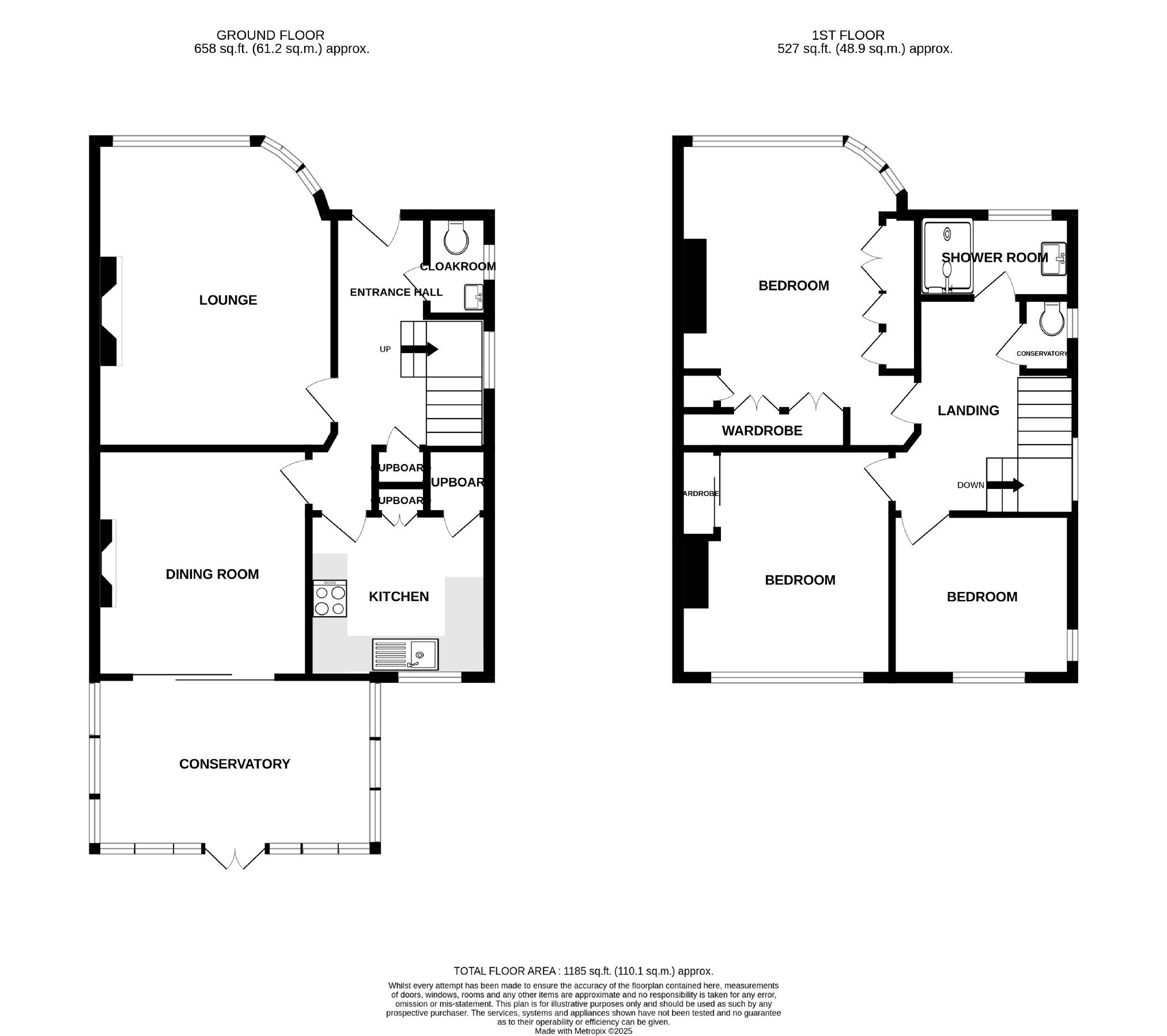
Situated on this ever popular residential location, this three bedroom semi detached home offers a fantastic opportunity for buyers looking to put their own stamp on a property. This property would benefit from some modernisation making it ideal for those seeking a project or a home they can truly make their own. Inside, you'll find a spacious lounge and separate dining room with original floorboards and a decorative fireplace, along with a conservatory overlooking a private rear garden. The kitchen provides potential to improve or open up into the dining room. Upstairs are two double bedrooms with fitted wardrobes, a single bedroom, and a shower room and separate cloakroom. Outside, the home boasts off street parking on a block-paved driveway, a detached garage with an electric door and an attractive enclosed garden to the rear. Perfectly located close to local shops, schools, and just a short distance from a selection of beaches and the vibrant town centre. This property is offered with no onward chain call us today to arrange your viewing or see more at www.cookeandco.com

Important Information

  • This is a Freehold property.

Property Ref: 202202_COOKEANDCO_6509

Share:

Similar Properties

St. Lukes Avenue, Ramsgate

4 Bedroom Semi-Detached House | £350,000

Cooke & Co are pleased to offer this beautifully presented four-bedroom semi-detached home, set in the sought-after St....

Vicarage Street, Broadstairs

2 Bedroom Detached Bungalow | £350,000

Charming Detached Bungalow in the Heart of St. Peter's Village, Broadstairs . Situated on the ever-popular Vicarage Stre...

Yardhurst Gardens, Margate

1 Bedroom Detached Bungalow | £350,000

Cooke & Co are delighted to bring to the market this beautifully presented detached bungalow, tucked away in a peaceful...

Northdown Park Road, Margate

4 Bedroom Terraced House | £365,000

Cooke and Co are delighted to bring to the market this four bedroom Period property which offers so much potential for a...

Nightingale Place, Margate

3 Bedroom Semi-Detached House | £370,000

A Hidden Gem in Margate Full of Character, Charm, and Community Vibes. Cooke & Co are delighted to bring to market this...

Cedar Crescent, North Baddesley

2 Bedroom Detached Bungalow | Guide Price £375,000

CHAIN FREE - DETEACHED - BUNGALOW This charming 2 bedroom detached bungalow offers comfortable and practical living in a...

Cooke & Co Estate and Letting Agents (Cliftonville)

Cliftonville, Kent, CT9 2QY

01843 231833

How much is your home worth?

Use our short form to request a valuation of your property.

Request a Valuation

Mortgage Calculator

Amount Borrowed: £
Total Amount Repayable: £
Total Monthly Payment: £
©2025 The Guild of Property Professionals. All rights reserved. Terms and Conditions | Privacy Policy | Cookie Policy | Complaints Policy | Members Login
The Guild of Property Professionals Trading Address: 121 Park Lane, London W1K 7AG. GPEA Limited. Registered in England & Wales.  Company No: 02819824.  Registered Office Address: 2 St. Stephen's Court, St. Stephen's Road, Bournemouth, Dorset, England, BH2 6LA.  VAT Registration No: 576 8795 61
Book a Property Valuation Update Cookies Preferences