Goldstone, Market Drayton, TF9

Offers Over
£1,100,000

4 Bedroom Barn Conversion for sale in Market Drayton

2 4 3
  • A beautifully reimagined agricultural barn, sat on a just over 4 acre plot, blending rustic character with a relaxed, holiday-home feel.
  • Inside the main home find four double bedrooms, three bathrooms and a generous living area.
  • Outside, enjoy expansive grounds offering space, privacy and your own slice of countryside escape with uninterrupted countryside views.
  • A detached annexe allows for versatile living, ideal for guests or multigenerational living.
  • Extensive parking with EV charging, triple garage, double carport and a statement driveway with upcoming cobbled and golden flint finish.

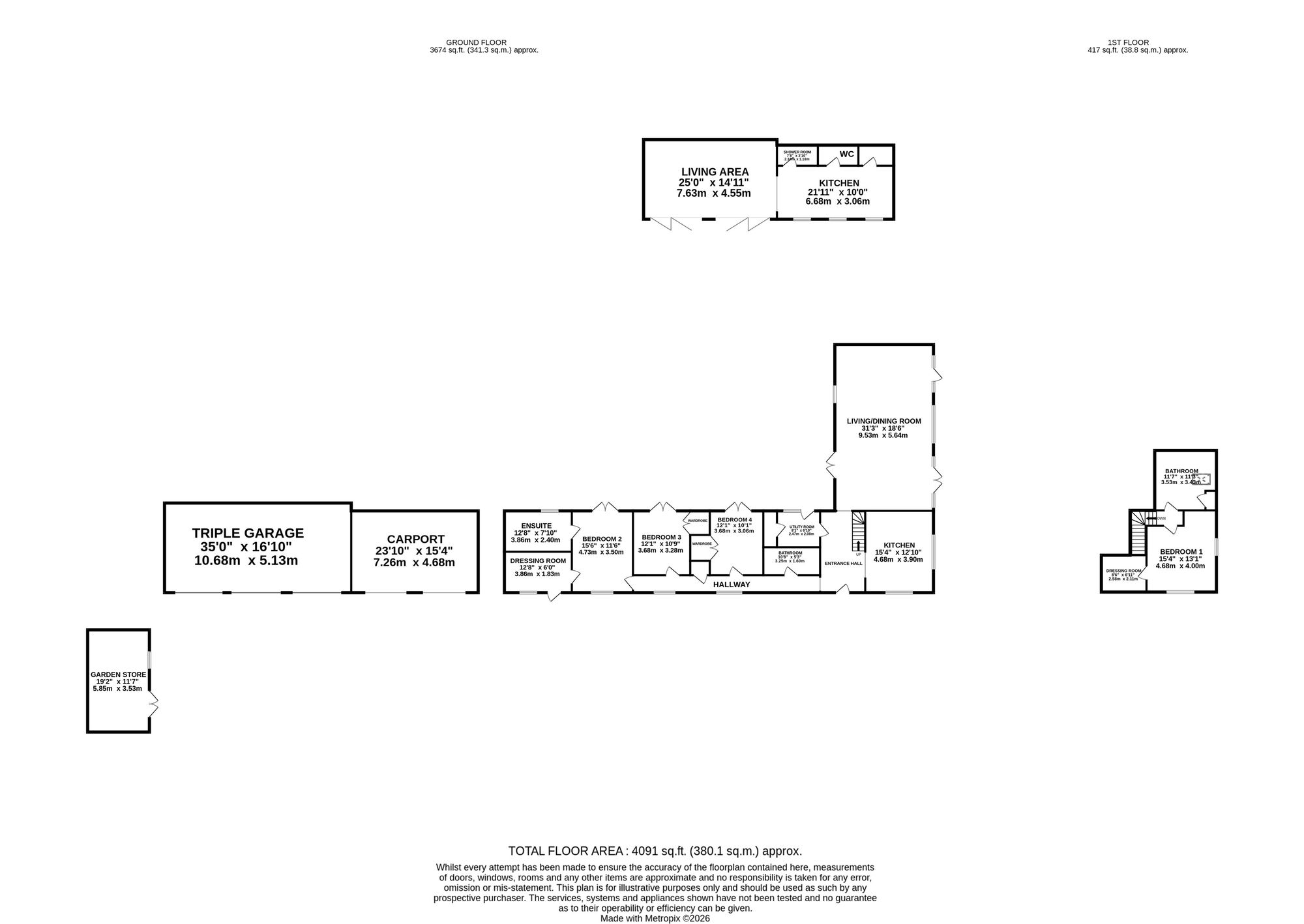
Masefield, your very own countryside retreat, where every day feels like a getaway and the only thing missing is the sound of waves. Once a working agricultural barn, sat on a just over a four acre plot, this exceptional home has been transformed into a characterful escape that blends rustic charm with a breezy, holiday-inspired lifestyle. Set within a peaceful rural location close to Goldstone Hall, it offers the perfect balance of seclusion and connection, like your favourite hidden holiday spot you never want to leave.

From the moment you step into the entrance hall, the tone is set for relaxed, “kick-off-your-sandals” living. The space introduces the home’s rich textures and natural finishes. The kitchen continues this theme beautifully, with low-profile cabinetry and Iroko hardwood worktops that mirror the organic tones found throughout, like driftwood shaped by time. A large window frames the rolling countryside like your own private horizon, making even morning coffee feel like a holiday ritual. A separate utility room keeps everything tucked away, so the main spaces remain calm, uncluttered, and ready for laid-back living. The living room is the heart of this retreat, a wonderfully spacious reception area where exposed wooden beams add depth and character overhead, reminiscent of what once was. A striking picture window captures uninterrupted views across the fields, creating a constantly changing natural backdrop. With multiple doors opening to the outside, the space flows effortlessly into the garden, perfect for long summer evenings, entertaining, or simply letting the fresh air drift through like a gentle sea breeze.

The bedroom layout offers flexibility and comfort, ideal for both everyday living and hosting guests. Upstairs, the principal suite feels like your own private captain’s quarters. A charming porthole window adds a playful nautical nod while perfectly framing the surrounding landscape. The adjoining dressing room enhances the sense of luxury, while the contemporary bathroom, with its walk-in shower, his-and-hers sinks and sleek grey accents, offers a spa-like space to unwind, as though you’re on a boutique retreat. Downstairs, three further double bedrooms provide generous accommodation. Bedroom two enjoys its own dressing room and ensuite, complete with a corner bathtub for long, indulgent soaks, a separate shower and stylish fittings. An additional bathroom serves the remaining rooms. Solid oak doors throughout ground the property with quality and timeless appeal.

The detached annexe is a true gem, your very own “guest beach hut” in the countryside. Converted from another barn, it offers a self-contained space that’s perfect for visitors or extended family. Inside, a large open-plan living area features exposed beams and tiled flooring that flows out onto a connecting patio, creating that effortless indoor-outdoor feel synonymous with holiday living. The stylish kitchen, with grey cabinetry and oak worktops, is both practical and elegant, while a WC and shower room complete the space. Large feature windows invite in natural light and showcase the surrounding views, and two sets of bifold doors open wide to the garden, blurring the line between inside and out, perfect for soaking up those long, sunlit days.

Set within just over four acres, the grounds are your own private stretch of “countryside coastline.” The main house sits within approximately an acre of garden, predominantly laid to lawn and ideal for relaxing, entertaining or simply enjoying the peaceful surroundings. Beyond this lies a 2.95-acre field, accessible via gated entrances from both the garden and the lane, offering fantastic versatility. A charming ha-ha wall subtly separates the formal garden from the wider landscape, preserving those uninterrupted views while adding a touch of classic character. Whether it’s garden gatherings, quiet morning walks, or simply lying back and taking in the open skies, the outdoor space delivers a constant sense of escape. With thoughtful updates including a newly installed septic tank/treatment plant in November 2025, you can enjoy the setting with complete peace of mind.

Parking has never been easier. A triple garage and double carport provide ample space for vehicles, whether you’re hosting guests or simply enjoying the freedom of extra room. With EV charging already in place, it’s perfectly equipped for modern living while keeping that effortless, “arrive and unwind” holiday feel. The sizeable driveway, soon to be finished with golden flint and a charming cobbled entrance, creates a warm and inviting first impression, like pulling up to your very own boutique countryside escape. Completing the picture, a practical brick-built garden store offers additional storage, keeping everything neatly tucked away so you can focus on enjoying the laid-back lifestyle. You will also find 16 Solar Panels and 9.5kW Battery storage integrated into the garage roof for added eco advantages.

Situated in the idyllic and highly sought-after rural hamlet of Goldstone, this property offers the perfect blend of country living with unparalled access to top-tier education. The home is located within easy reach of the renowned Newport Schools, including the prestigious Haberdashers’ Adams Grammar School and Newport Girls’ High School (both consistently ranked among the best state schools in the country), as well as the esteemed Castle House private school for younger children. This location offers families an incredible opportunity to provide their children with an outstanding consistent education in a truly beautiful setting.

In essence, this is more than just a home, it’s your all-year-round holiday destination, where the pace slows and the views soothe. Give us a call today on 01785 851886 and experience the magic of Masefield for yourself!

Important Information

  • This is a Freehold property.
  • This Council Tax band for this property is: F

Property Ref: c461680e-43f2-4ec7-afc4-b0003664ae50

Share:

Similar Properties

Snape Hall Road, Whitmore, ST5

5 Bedroom Detached House | £1,100,000

Budding with high-quality finishes and luxuriant details throughout, Rose Cottage invites you to plant your roots and wa...

Offley Marsh, Bishops Offley, ST21

4 Bedroom Barn Conversion | £1,000,000

"Stunning 4-bed barn conversion on 7 acres of land. Equestrian facilities incl. barn, stables, menage. Open living area,...

Moss Lane, Yarnfield, ST15

6 Bedroom Detached House | Offers in excess of £900,000

Originally a hospital office, this historical detached property in Yarnfield seamlessly blends past with present. Featur...

Heath Road, Whitmore, ST5

4 Bedroom Detached House | £1,150,000

Impressive and secluded estate, 'The Warren', boasts over an acre of gardens, tennis court, double garage and bespoke in...

James Du Pavey Estate Agents (Eccleshall)

Eccleshall, Staffordshire, ST21 6BH

01785 851886

How much is your home worth?

Use our short form to request a valuation of your property.

Request a Valuation

Mortgage Calculator

Amount Borrowed: £
Total Amount Repayable: £
Total Monthly Payment: £
©2026 The Guild of Property Professionals. All rights reserved. Terms and Conditions | Privacy Policy | Cookie Policy | Complaints Policy | Members Login
The Guild of Property Professionals Trading Address: 121 Park Lane, London W1K 7AG. GPEA Limited. Registered in England & Wales.  Company No: 02819824.  Registered Office Address: 2 St. Stephen's Court, St. Stephen's Road, Bournemouth, Dorset, England, BH2 6LA.  VAT Registration No: 576 8795 61
Book a Property Valuation Update Cookies Preferences