Offley Marsh, Bishops Offley, ST21

£1,000,000

4 Bedroom Barn Conversion for sale in Stafford

2 4 3
  • Equestrian living has never been easier at this barn conversion haven sat on just over 7 acres of grounds.
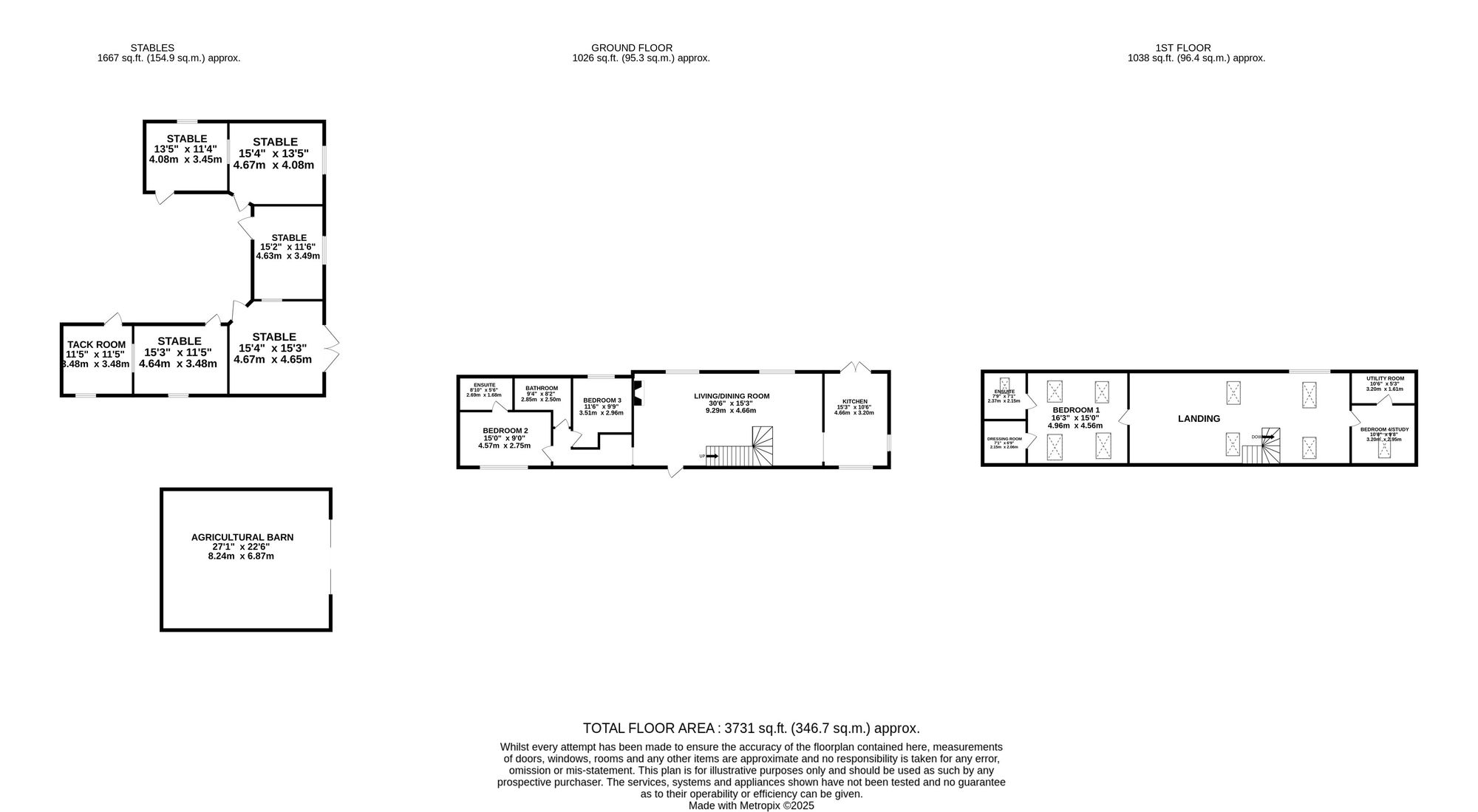
  • An agricultural barn, stable block, Combi Ride menage and multiple turn out areas on top of the large amount of land at offer is an equestrian dream.
  • Find four bedrooms and three bathrooms in the main house, allowing plenty of room for everyone to relax and unwind.
  • A generous open living/dining area with a connecting kitchen space is the true heart of the home with a feature log burner to curl up by.
  • Located in Bishops Offley enjoy rural living while still being close by to the excellent local amenities and schools in Eccleshall.

Welcome to Perry Croft – A Rare Equestrian Gem in the Heart of the Staffordshire Countryside

Set within just over seven acres of beautifully maintained grounds, Perry Croft is a striking barn conversion that offers the perfect blend of rural charm and modern living. Designed with equestrian enthusiasts in mind, the property boasts an impressive stable block, a professional-grade manège, an agricultural barn, and multiple turnout paddocks – an exceptional opportunity for those seeking a peaceful lifestyle with equine facilities on their doorstep.

Approached via a long, private driveway shared with just two neighbouring homes, Perry Croft immediately offers a sense of seclusion and tranquillity. The gravel drive leads to the welcoming entrance, where the interior reveals a thoughtfully designed open-plan living and dining space. A standout feature is the Danish Morso log burner, adding warmth and character, while large windows frame picturesque views across the surrounding land.

The modern kitchen is both stylish and practical, featuring sleek white gloss cabinetry, marble-effect worktops, and French doors that open onto the south-facing garden – ideal for al fresco dining and entertaining.

On the ground floor, you’ll find two spacious double bedrooms, including one with a private ensuite, along with a contemporary family bathroom. Upstairs, a striking mezzanine-style landing provides a stunning vantage point over the living area below. The principal bedroom suite offers a peaceful retreat, complete with skylights, a walk-in dressing room, and a modern ensuite bathroom. A fourth bedroom, perfect as a home office or guest room, and a separate utility room complete the accommodation.

Step outside, and the property truly comes into its own. The agricultural barn has been upgraded with a new roof and cladding, offering substantial storage for equipment, tack, or machinery. The stable block includes six secure, well-sized bays with new electrics and an isolation switch – providing a safe, functional environment for your horses. A recently constructed 45m x 25m Combi Ride manège with rubber fibre mix and excellent drainage ensures year-round training, while the winter turnout paddock and several additional paddocks are all well-maintained and thoughtfully laid out. One of the paddocks also features a field shelter and all are serviced by mains-fed water drinkers.

The home’s immediate rear garden is south-facing and acts as a sun trap throughout the day, with a patio area perfect for relaxing or entertaining while enjoying panoramic countryside views. The surrounding farmland, a mix of arable and cattle, enhances the peaceful, rural setting and ensures privacy in every direction.

Located in the sought-after village of Bishops Offley, Perry Croft is just a short drive from the vibrant market town of Eccleshall, which was recently featured in The Sunday Times Best Places to Live 2025. Here, you'll find excellent local amenities, schools, and transport links while still enjoying the slower pace and charm of rural life.

Perry Croft offers a rare opportunity to secure a lifestyle property that caters to both comfort and passion – a true haven for countryside living.

To truly appreciate the beauty, scale, and setting of this exceptional home, we warmly invite you to arrange a private viewing. Contact us today – we’d be delighted to show you around.

Energy Efficiency Current: 60.0
Energy Efficiency Potential: 77.0

Important Information

  • This is a Freehold property.
  • This Council Tax band for this property is: E

Property Ref: 7efa2cec-8fda-4121-bc56-1dc7c1b1043a

Share:

Similar Properties

Ranton, Stafford, ST18

8 Bedroom Detached House | £950,000

Like a wise old oak, this charming home has stood strong through the years, quietly gathering memories, stories and now…...

Green Lane, Whitgreave, ST18

5 Bedroom Detached House | £925,000

Luxury equestrian estate with barn conversion, stables, outbuildings, and 2 acres of picturesque land. 5 beds, 4 baths,...

Hill Chorlton, Newcastle, ST5

6 Bedroom Detached House | Offers in region of £899,999

Fantastic family home built around Grade II listed mill from 1850s on 6 acres with streams and ponds. 3 reception rooms,...

Snape Hall Road, Whitmore, ST5

5 Bedroom Detached House | £1,100,000

Budding with high-quality finishes and luxuriant details throughout, Rose Cottage invites you to plant your roots and wa...

Heath Road, Whitmore, ST5

4 Bedroom Detached House | £1,150,000

Impressive and secluded estate, 'The Warren', boasts over an acre of gardens, tennis court, double garage and bespoke in...

Lower Road, Hookgate, TF9

6 Bedroom Detached House | £1,250,000

Incredible spacious property on 4 acres with bespoke stables, converted garage, outdoor bar and luxurious living spaces....

James Du Pavey Estate Agents (Eccleshall)

Eccleshall, Staffordshire, ST21 6BH

01785 851886

How much is your home worth?

Use our short form to request a valuation of your property.

Request a Valuation

Mortgage Calculator

Amount Borrowed: £
Total Amount Repayable: £
Total Monthly Payment: £
©2026 The Guild of Property Professionals. All rights reserved. Terms and Conditions | Privacy Policy | Cookie Policy | Complaints Policy | Members Login
The Guild of Property Professionals Trading Address: 121 Park Lane, London W1K 7AG. GPEA Limited. Registered in England & Wales.  Company No: 02819824.  Registered Office Address: 2 St. Stephen's Court, St. Stephen's Road, Bournemouth, Dorset, England, BH2 6LA.  VAT Registration No: 576 8795 61
Book a Property Valuation Update Cookies Preferences