Superb Investment Opportunity In Upton

Offers Over
£500,000

Land for sale in Newark

  • Prime Residential Investment Opportunity
  • Derelict Detached House, 0.4 Acre site
  • Lapsed Planning For Three Detached Dwellings
  • Quiet Village Location, Popular Village Setting
  • Option To Modernise and Extend Existing Property
  • Elevated Position From The Road
  • Minster School Catchment Area
  • Call Us Today on 01636 813 971 To View
  • Council Tax Band - TBC (Newark & Sherwood District Council)

DESCRIPTION Offering the ideal opportunity to purchase this prime Residential Investment, planning has previously been passed for Three Detached Properties on the site but has now lapsed or you may wish to modernise and extend the derelict house and retain this large private plot.

Situated off Hockerton Road in a quiet location, elevated from the road the site currently offers a derelict detached property extending to approx 0.4 acres with outbuildings.

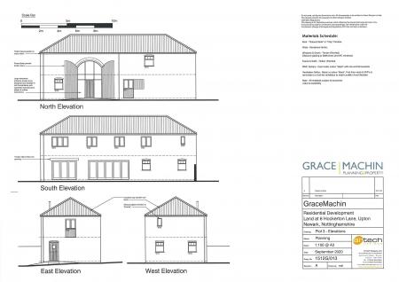
Plans show the elevations and floorplans of the former approved properties which are Two 2 Storey Detached Houses -1772sqft and 2152sqft and a Detached Bungalow- 576sqft. Previous Planning Reference – 20/01879/FUL, with Conditional Discharge – 22/00908/DISCON

In addition, the site offers the potential to modernise and extend subject to planning the current Derelict Detached House and to retain the plot as a large private garden with driveway and garage (subject to planning).

If you wish to discuss this superb Investment Opportunity please call us on 01636 813971. 

LOCATION Upton is an attractive village set three miles to the East of Southwell, a location which offers relatively direct access into the regional centres of Newark and Nottingham. Upton has a vibrant village community with numerous social events centred around the cricket club, church and village hall. There is a village pub and The Horological Museum with popular Clock House Café. The village also lies within the catchment area of the Minster School in Southwell. Southwell is a thriving minster town having a useful range of town amenities and professional services grouped principally along a period street scene of Queen Street and King Street. Southwell schooling is of renowned standard across the age ranges and the town offers an excellent range of sporting and cultural activities. 

Property Ref: 102125036381

Share:

Similar Properties

Church Lane, Upton

4 Bedroom Link Detached House | Guide Price £500,000

NO ONWARD CHAIN - Tucked away in a delightful and private position in the heart of this popular village and being in the...

Longmead Drive, Fiskerton, Southwell

4 Bedroom Detached House | £495,000

No Onward Chain - Tucked away in a quiet cul de sac location in the popular Trent Valley Village of Fiskerton, this spac...

Bleasby Road, Thurgarton

4 Bedroom Detached House | £465,000

Detached Home with Countryside Views in Thurgarton Village.Set on a generous plot in the picturesque Trent Valley villag...

Marlock Close, Fiskerton, Southwell

4 Bedroom Detached House | Guide Price £525,000

Situated in this popular Trent Valley Village and positioned in a quiet cul-de-sac location, this well-appointed Detache...

Burgage Lane, Southwell

2 Bedroom Apartment | £550,000

Prime First Floor Apartment in a Striking Grade II Listed Georgian Residence. This exceptional first floor apartment is...

Fiskerton Road, Rolleston

6 Bedroom Chalet | £550,000

Deceptively spacious and offering flexible living this well appointed Detached Dormer Bungalow has to be viewed to fully...

Alasdair Morrison & Mundys (Southwell)

Southwell, Nottinghamshire, NG25 0EN

01636 813971

How much is your home worth?

Use our short form to request a valuation of your property.

Request a Valuation

Mortgage Calculator

Amount Borrowed: £
Total Amount Repayable: £
Total Monthly Payment: £
©2026 The Guild of Property Professionals. All rights reserved. Terms and Conditions | Privacy Policy | Cookie Policy | Complaints Policy | Members Login
The Guild of Property Professionals Trading Address: 121 Park Lane, London W1K 7AG. GPEA Limited. Registered in England & Wales.  Company No: 02819824.  Registered Office Address: 2 St. Stephen's Court, St. Stephen's Road, Bournemouth, Dorset, England, BH2 6LA.  VAT Registration No: 576 8795 61
Book a Property Valuation Update Cookies Preferences