Butterton, Newcastle, ST5

£655,000

4 Bedroom Detached House for sale in Newcastle

2 4 4
  • Presenting a stunning detached four bedroom Coach House having been beautifully renovated blending period charm with stylish modern features and brand new boiler.
  • Located in a tranquil countryside setting privately situated behind electric gates on a generous plot with landscaped gardens, a reflecting pool and Oriental style bridge.
  • Elegant living spaces with triple aspect living room with brick fireplace and log burner, French doors to the garden and study space.
  • Four generous bedrooms with four luxurious bathrooms with spa-inspired fittings.
  • Versatile outdoor amenities with a double garage, log cabin and courtyard creating a relaxed setting in the countryside with amenities and commuter links still close by.

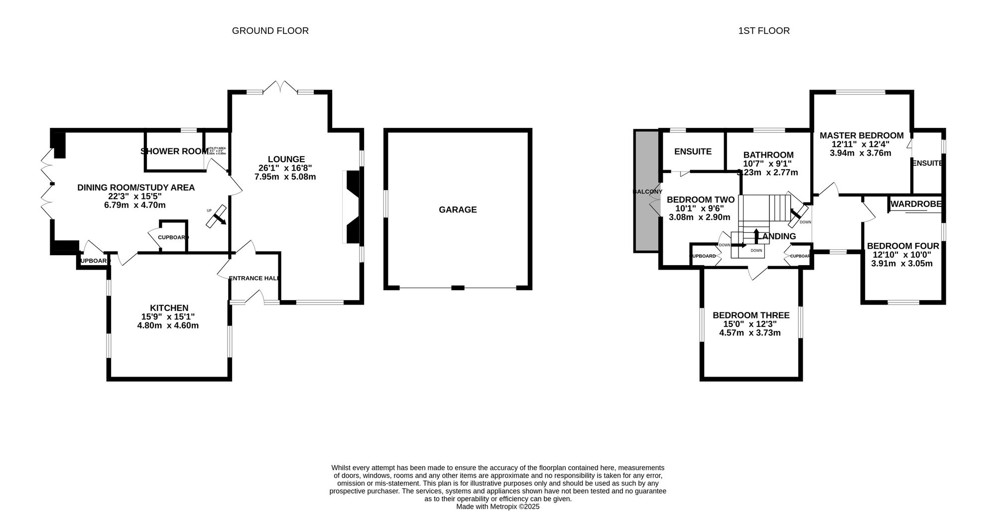
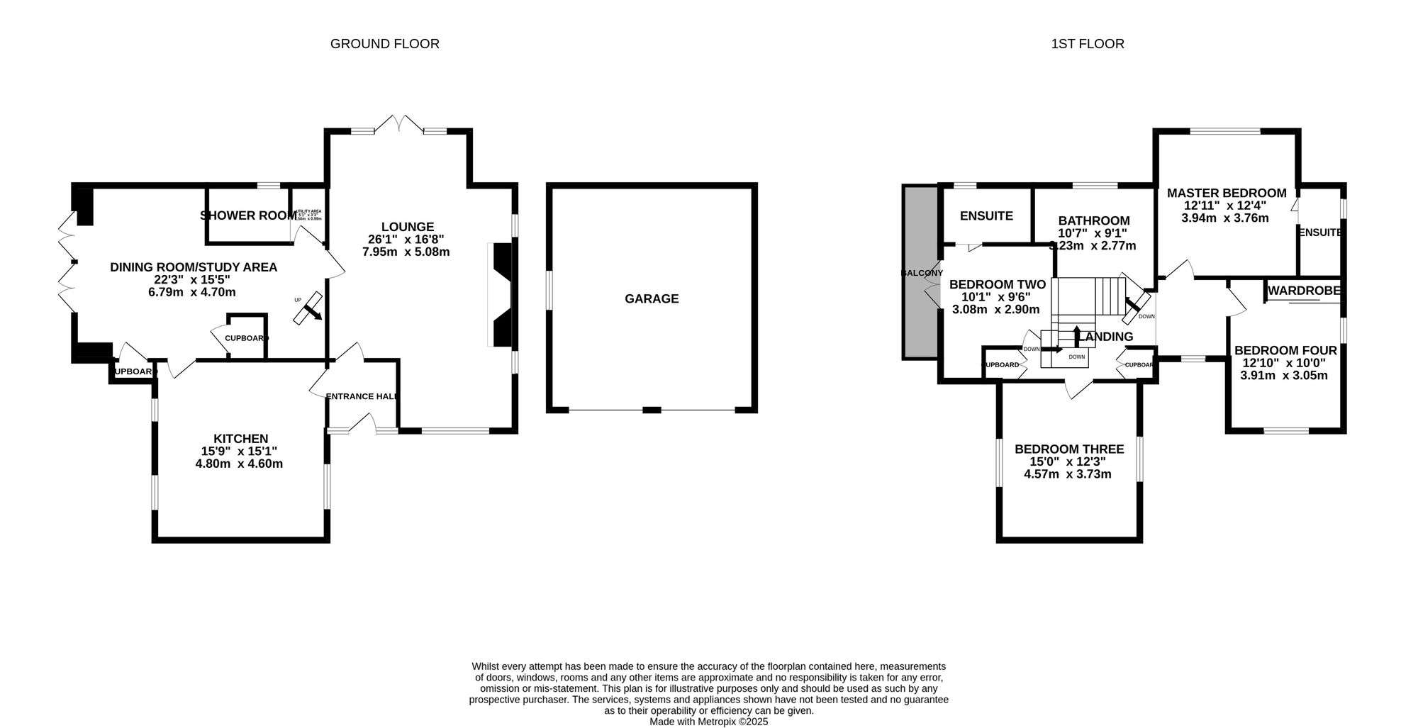
If you’re yearning for a peaceful rural lifestyle without compromising on modern comforts, this exquisite former Coach House may be just the haven you’re looking for! Tucked away behind electric gates on a generous, yet private plot, this beautifully restored four bedroom detached home seamlessly blends contemporary living with timeless character and charm. As you approach, a landscaped garden greets you with manicured lawns, mature borders, a spacious patio and even a tranquil reflecting pool with a charming Oriental-style bridge, making the perfect setting to enjoy your evenings with the gentle sound of water and soft ambient lighting. Step inside, and you’re welcomed into a warm and inviting home filled with natural light and tasteful finishes. The tripe-aspect lounge features a traditional brick fireplace with a log burner, ideal for curling up on colder days. With French doors leading out to the garden. The heart of the home is sure to be the kitchen, fitted with stylish black granite worktops and space for a Range cooker, American style fridge freezer and wine cooler, all the essentials for modern country living! A separate dining room offers ample space for entertaining with garden views. With useful ground floor shower room offering walk in shower, WC and vanity sink. A staircase rises upstairs from the dining room, tucked behind is a useful nook currently used as study space. Upstairs the split-level landing leads to four generously sized bedrooms, two of which benefit from en-suite shower rooms. Each of the four bathrooms in this home feature luxurious touches such as underfloor heating and travertine tiling. The family bathroom is particularly special, boasting a circular bath, twin wash basins and a real spa-like feel. While the home retains a deep sense of history and rural charm, it also offers discreet modern enhancements including high-speed broadband, smart heating controls and a full security system for peace of mind. Outside, we have ample parking, a double garage, delightful log cabin, a walled courtyard, lined with mature trees all perfect for enjoying the countryside lifestyle to the fullest. Situated in the delightful village of Butterton, where countryside is on your doorstep yet the neighbouring town of Newcastle is just a short drive away where you will find fantastic amenities alongside great commuting links. Whether you dream of long country walks, hosting friends in the garden, or simply relaxing in peaceful surroundings this stunning Coach House is a rare find!

Energy Efficiency Current: 75.0
Energy Efficiency Potential: 85.0

Important Information

  • This is a Freehold property.
  • This Council Tax band for this property is: F

Property Ref: f451bae0-40f0-49c7-a902-d8bf7346b5b3

Share:

Similar Properties

High Street, Cheswardine, TF9

6 Bedroom Detached House | Offers in excess of £650,000

Step into history at this Georgian gem in Cheswardine. 6 beds, 3 baths, charming interiors, spacious kitchen, cellar, an...

Aspley Lane, Chatcull, ST21

4 Bedroom Barn Conversion | £650,000

Stunning barn conversion: 4 beds, 3 baths, 3 garden areas. Spacious open kitchen/diner, cosy living room, and generous b...

Highlows Lane, Yarnfield, ST15

5 Bedroom Detached House | £650,000

Not all houses are created equally, and Orchard House wears its character like a crown of blossom!

Sovereign Lane, Ashley, TF9

4 Bedroom Detached House | £665,000

"Charming 4-bed detached home on 2/3 acre landscaped garden with a sun room, AGA kitchen, living & dining rooms. Located...

High Street, Cheswardine, TF9

4 Bedroom Detached House | £675,000

Elegant four bedroom Victorian home with original features, spacious living areas, flexible annexe, garden, gated drivew...

Langton Park, Eccleshall, ST21

5 Bedroom Detached House | £675,000

This exceptional five-bedroom, three-bathroom detached home doesn’t just offer space, it offers togetherness, comfort an...

James Du Pavey Estate Agents (Eccleshall)

Eccleshall, Staffordshire, ST21 6BH

01785 851886

How much is your home worth?

Use our short form to request a valuation of your property.

Request a Valuation

Mortgage Calculator

Amount Borrowed: £
Total Amount Repayable: £
Total Monthly Payment: £
©2026 The Guild of Property Professionals. All rights reserved. Terms and Conditions | Privacy Policy | Cookie Policy | Complaints Policy | Members Login
The Guild of Property Professionals Trading Address: 121 Park Lane, London W1K 7AG. GPEA Limited. Registered in England & Wales.  Company No: 02819824.  Registered Office Address: 2 St. Stephen's Court, St. Stephen's Road, Bournemouth, Dorset, England, BH2 6LA.  VAT Registration No: 576 8795 61
Book a Property Valuation Update Cookies Preferences