Site Regent Park

£262,500

3 Bedroom Semi-Detached House for sale in Newtownards

2 3 2

Sitting proudly on the northernmost tip of the rolling Strangford Lough landscape, Regent Park is another prestigious member of the growing family of outstanding move-in-ready houses from Hilmark Homes.

A mere 10 miles from the heart of Belfast on the Ards Peninsula, we?ve created a unique development that allows you to seamlessly balance career, family and recreation for the very best of Northern Ireland living.

It?s the exceptional mix of quality build and traditional living in a highly desirable location that lifts Regent Park far above the rest.

Surrounding Area - BT23

Overlooked by the iconic Scrabo Tower and only minutes from unforgettable settings such as the UNESCO world heritage site Mount Stewart and Grey Abbey, home to world class antique shops, Newtownards is large town with a little bit of everything.

Enjoy the peaceful solitude as you walk along the shores of Strangford Lough, join the crowd and cheer on the local rugby, cricket and football teams or meet family and friends at one of the many restaurants, bars and pubs.

And with a wealth of shopping, excellent schools and historic churches, there?s something to make everyone feel right at home.

Hilmark Homes

Every Regent Park home is designed to blend naturally with its environment and complement the surrounding architecture.

Featuring truly unique designs, your future detached home is constructed by skilled local craftsmen using carefully selected materials. And though we meticulously consider every element, we?re unique in that we encourage you to add your personal touch to the finished design.

With Hilmark Homes we promise your new home will always be unique, always considered and always built for you.

Location

Regent Park offers a world of high-class traditional living with nearby historic landmarks, churches and schools, as well as sports clubs, modern amenities and easy access to Belfast and Bangor.

Upgrades
-Upgraded Kitchen layout with island, tall oven housing and addition

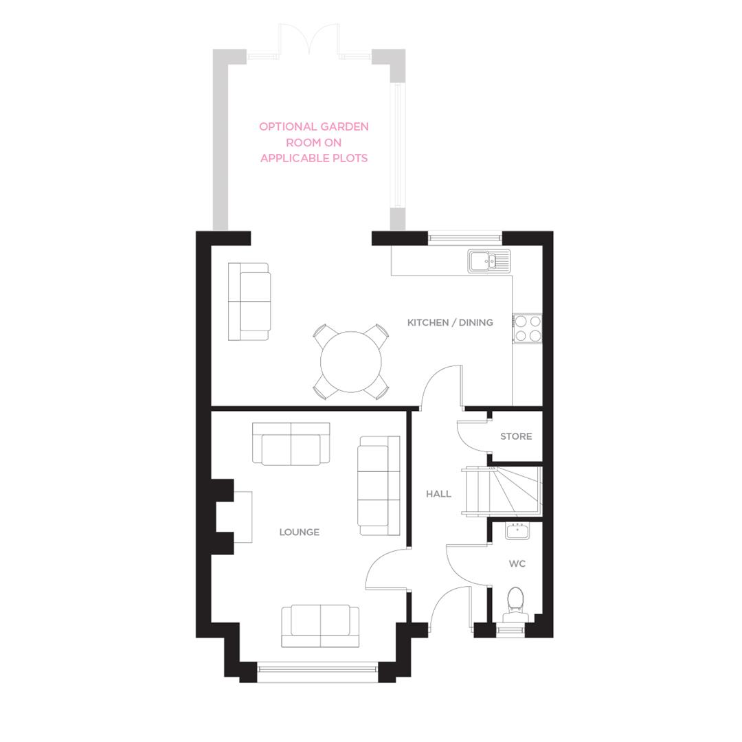
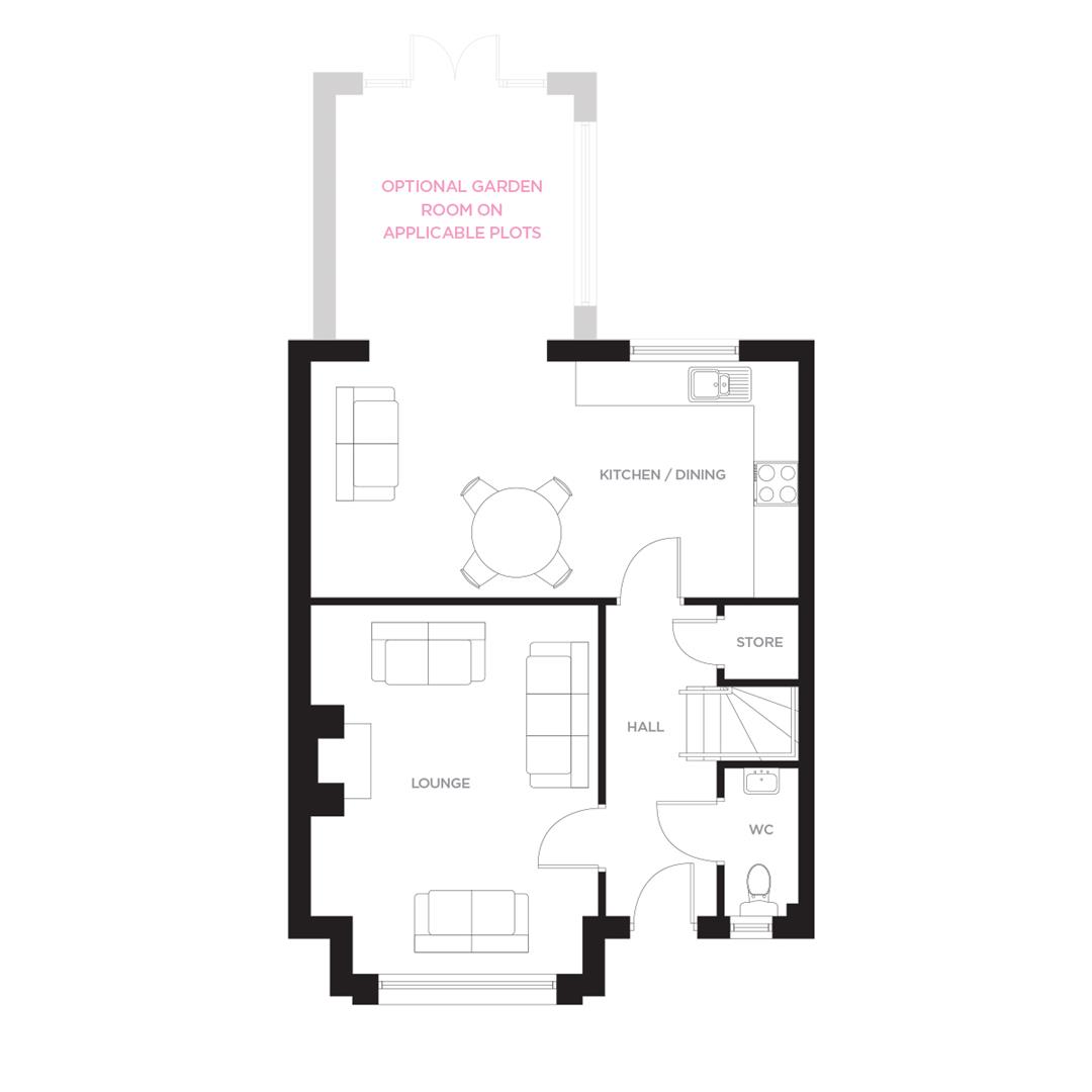
Ground Floor -

Lounge - 4.98 x 3.88 (16'4" x 12'8") -

Kitchen With Casual Dining Area - 6.58 x 3.19 (21'7" x 10'5") -

Optional Garden Room - 3.3 x 3.22 (10'9" x 10'6") -

Store -

Downstairs Wc - () -

First Floor -

Bedroom One - 3.68 x 3.67 (12'0" x 12'0") -

Ensuite Shower Room - () -

Bedroom Two - 3.58 x 3.19 (11'8" x 10'5") -

Bedroom Three - 3.19 x 3 (10'5" x 9'10") -

Bathroom - () -

Store -

Aml - As part of our obligations under the Money Laundering, Terrorist Financing and Transfer of Funds (Information on the Payer) Regulations 2017, all Estate Agents are required to verify the identity of purchasers involved in a property transaction.
To comply with these obligations, all purchasers will be required to complete Customer Due Diligence (AML) identity checks. These checks are carried out on our behalf by our trusted third-party provider, Thirdfort.
A charge will apply of ?20 + VAT per purchaser.

Property Ref: 34344809

Share:

Similar Properties

Site Regent Park

3 Bedroom Semi-Detached House | £262,500

Sitting proudly on the northernmost tip of the rolling Strangford Lough landscape, Regent Park is another prestigious me...

Site Regent Park

3 Bedroom Semi-Detached House | £262,500

Sitting proudly on the northernmost tip of the rolling Strangford Lough landscape, Regent Park is another prestigious me...

Site Regent Park

3 Bedroom Semi-Detached House | £262,500

Sitting proudly on the northernmost tip of the rolling Strangford Lough landscape, Regent Park is another prestigious me...

39 Millisle Road

4 Bedroom End of Terrace House | Offers in region of £269,950

Located in the extremely popular and picturesque coastal town of Donaghadee here is an ideal opportunity to purchase a f...

St. Andrews Drive, Ballyhalbert, Newtownards

4 Bedroom Detached House | Offers in region of £269,950

Located in a cul-de-sac within this popular coastal development here is an ideal opportunity to purchase an attractive r...

133 Main Street

4 Bedroom Detached House | Offers in region of £269,950

Located in the popular town of Carrowdore here is an ideal opportunity to purchase an outstanding detached family home w...

John Minnis Estate Agents (Donaghadee)

Donaghadee, County Down, BT21 0AG

028 9188 8881

How much is your home worth?

Use our short form to request a valuation of your property.

Request a Valuation

Mortgage Calculator

Amount Borrowed: £
Total Amount Repayable: £
Total Monthly Payment: £
©2026 The Guild of Property Professionals. All rights reserved. Terms and Conditions | Privacy Policy | Cookie Policy | Complaints Policy | Members Login
The Guild of Property Professionals Trading Address: 121 Park Lane, London W1K 7AG. GPEA Limited. Registered in England & Wales.  Company No: 02819824.  Registered Office Address: 2 St. Stephen's Court, St. Stephen's Road, Bournemouth, Dorset, England, BH2 6LA.  VAT Registration No: 576 8795 61
Book a Property Valuation Update Cookies Preferences