Goshawk Rise, Wymondham, NR18

£325,000
SSTC
This property listing is now SSTC

3 Bedroom Link Detached House for sale in Norfolk

2 3 2
  • Spacious three bedroom link-detached family home
  • Three well-proportioned bedrooms
  • Built in wardrobes and ensuite to bedroom one
  • Generous living room & kitchen/diner
  • Well-presented with modern interior throughout
  • Occupying a generous corner plot
  • Good sized garden with carport off-road parking
  • Close proximity to the town centre and local amenities
  • Purchased from new in 2020 with solar panels to the roof
  • See our full online listing for further details including flood risk, broadband speed and other material information

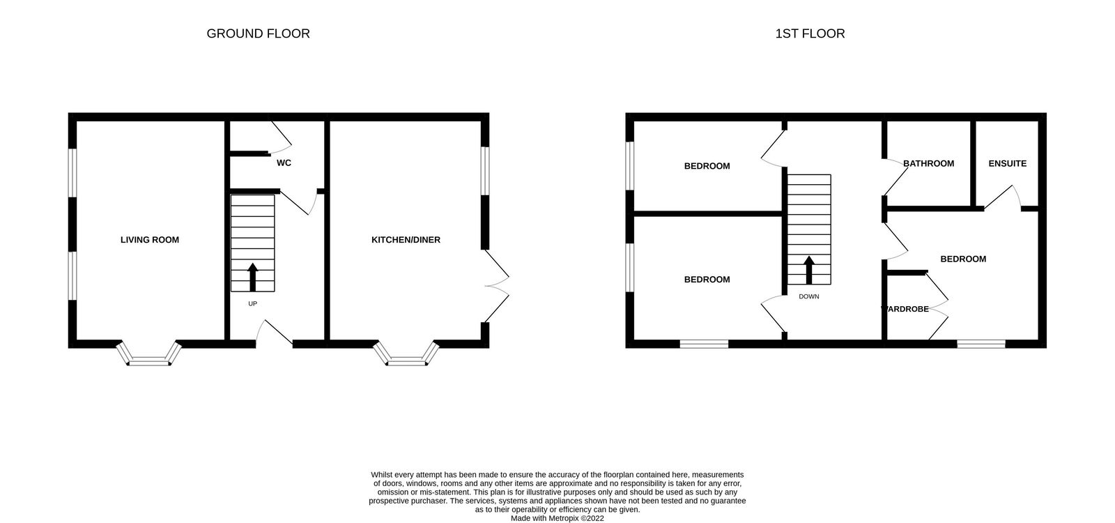
Moneyproperties are delighted to bring to market this well-presented three-bedroom link-detached family home occupying a large corner plot on a popular housing development in Wymondham. This fantastic property provides bright and spacious living throughout and comprises of a 16ft living room, 16ft kitchen/diner with French doors leading to the garden and a good-sized downstairs wc/utility. To the upstairs comes three well-proportioned bedrooms with built in wardrobes and an ensuite to bedroom one along with a family bathroom off the landing. Further benefits include a generous rear garden and carport providing parking for 2/3 cars.

Entrance Hall - 3.1m x 2.18m (10'2" x 7'1")


Living Room - 5.46m x 3.23m (17'10" x 10'7")


Kitchen/Diner - 5.49m x 3.3m (18'0" x 10'9")


Cloakroom/Utility - 2.24m x 1.7m (7'4" x 5'6")


Bedroom One - 3.66m x 2.77m (12'0" x 9'1")


Ensuite - 1.5m x 1.32m (4'11" x 4'3")


Bedroom Two - 3.23m x 2.57m (10'7" x 8'5")


Bedroom Three - 3.28m x 2.08m (10'9" x 6'9")


Bathroom - 2.08m x 1.88m (6'9" x 6'2")


AGENT’S NOTES -


Planning :  Details, if any, can be found on the South Norfolk Council Planning website.


Covenants, Rights and Restrictions:  Please enquire with the selling agents for any information.


Broadband :  Ultrafast FTTP.  See Ofcom checker and Openreach website for more details.


Mobile phone :  See Ofcom checker for coverage details.


Flood risk :  Very Low risk of surface, risk rivers and seas according to Gov.uk website


Services :  Mains Electicity, Gas, Water and Sewage


Local authority :  Norfolk County Council and South Norfolk Council


Council Tax Band :  D


Tenure :  Freehold


EPC : B

Important Information

  • This is a Freehold property.
  • This Council Tax band for this property is: D

Property Ref: 680_1341231

Share:

Similar Properties

Vicarage Road, Deopham, NR18

3 Bedroom Semi-Detached House | £325,000

Moneyproperties bring to market this spacious three/four-bedroom semi-detached house occupying a generous plot with a la...

Sheppard Drove, Wymondham, NR18

3 Bedroom Detached House | Offers in region of £325,000

Moneyproperties are delighted to be marketing this immaculately presented three-bedroom detached house located on a soug...

Orchard Way, Wymondham, Norfolk. NR18 0NX

3 Bedroom Bungalow | Guide Price £325,000

This charming detached three-bedroom bungalow nestled in the sought-after Orchard Way, boasting approximately 1200 sq ft...

Clifton Road, Wymondham, NR18

3 Bedroom Bungalow | Offers in region of £340,000

Moneyproperties bring to market this spacious three-bedroom detached bungalow conveniently located within ease of access...

Clifton Road, Wymondham, Norfolk. NR18 0JB

3 Bedroom Bungalow | £349,000

Motivated Sellers – Quick Sale Possible. Spacious Detached 3-Bedroom Bungalow with Annexe Potential. This well-maintaine...

Goshawk Rise, Wymondham, NR18

3 Bedroom Detached House | £350,000

Designed as a four-bedroom detached house but amended at build stage by the current vendors to create a generous three-b...

Money Properties (Wymondham)

17/18 Market Place, Wymondham, Norfolk, NR18 0AX

01953 423 006

How much is your home worth?

Use our short form to request a valuation of your property.

Request a Valuation

Mortgage Calculator

Amount Borrowed: £
Total Amount Repayable: £
Total Monthly Payment: £
©2026 The Guild of Property Professionals. All rights reserved. Terms and Conditions | Privacy Policy | Cookie Policy | Complaints Policy | Members Login
The Guild of Property Professionals Trading Address: 121 Park Lane, London W1K 7AG. GPEA Limited. Registered in England & Wales.  Company No: 02819824.  Registered Office Address: 2 St. Stephen's Court, St. Stephen's Road, Bournemouth, Dorset, England, BH2 6LA.  VAT Registration No: 576 8795 61
Book a Property Valuation Update Cookies Preferences