Goshawk Rise, Wymondham, NR18

£350,000

3 Bedroom Detached House for sale in Wymondham

1 3 2
  • Three bedroom detached house having been built as a four bed
  • Upstairs reconfigured at build stage by current vendors
  • Bought from new in 2017 with remaining NHBC
  • Three well-proportioned bedrooms with an ensuite to bedroom one
  • 17ft living room with french doors leading to the rear garden
  • Stylish and modern kitchen/breakfast room
  • Enclosed rear garden complete with a patio area
  • Single garage with off-road parking
  • Must be viewed to fully appreciate.
  • See our full online listing for further details including flood risk, broadband speed and other material information


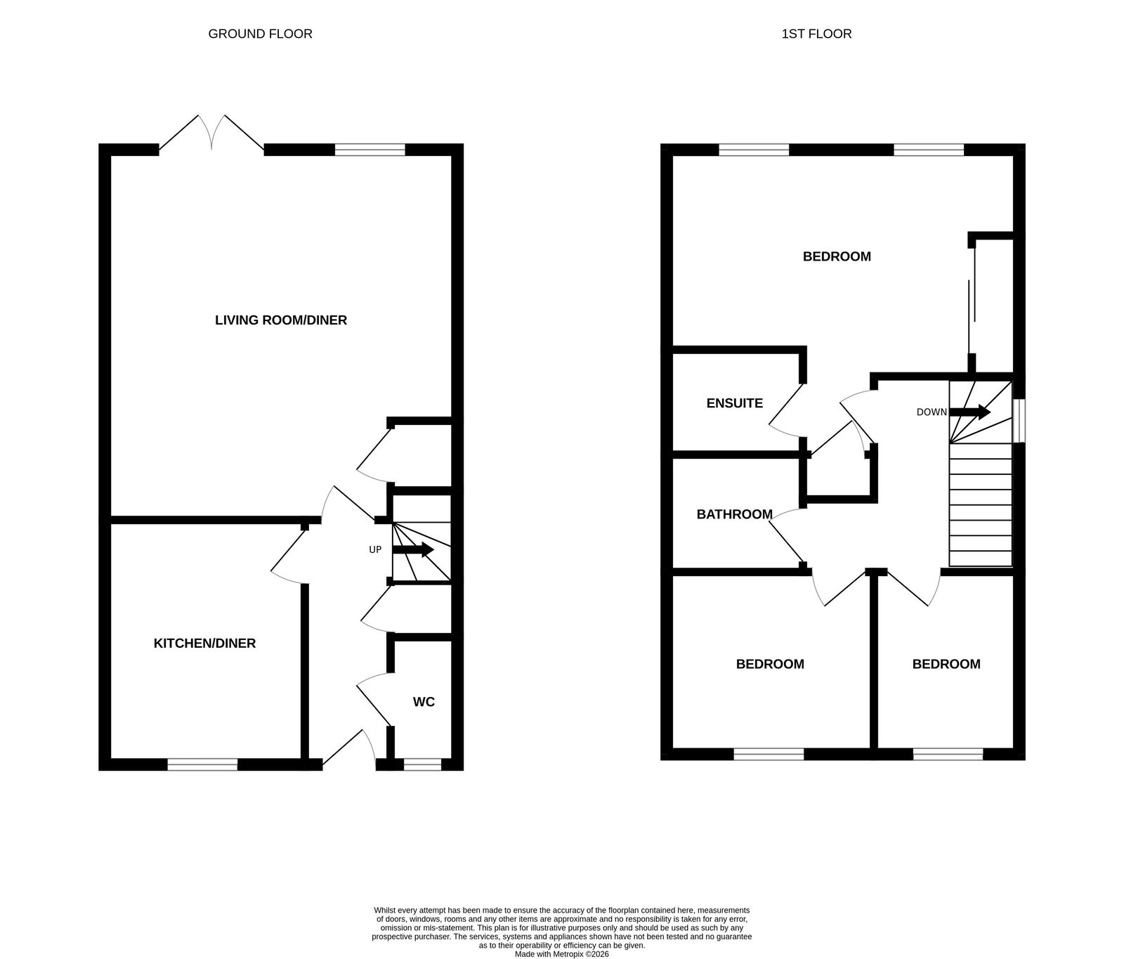
Designed as a four-bedroom detached house but amended at build stage by the current vendors to create a generous three-bedroom home with a spacious principal bedroom. This stylish and modern detached house is located on a popular residential development offering over 1000sq ft of living space. The property comprises of an entrance hall, 11ft kitchen/diner, 17ft living room and downstairs wc. To the upstairs comes three well-proportioned bedrooms with an ensuite to bedroom one along with a family bathroom. Outside the property enjoys a good-sized rear garden with a patio area, single garage and off-road parking. Must be viewed to fully appreciate.



Entrance Hall


Kitchen/Breakfast Room - 3.51m x 2.87m (11'6" x 9'5")


Living Room/Diner - 5.31m x 5.05m (17'5" x 16'7")


WC - 1.83m x 0.97m (6'0" x 3'2")


Bedroom One - 4.47m x 5.05m (14'8" x 16'7")


Maximum measurement

Ensuite - 1.96m x 1.6m (6'5" x 5'3")


Bedroom Two - 2.97m x 2.62m (9'9" x 8'7")


Bedroom Three - 2.62m x 1.96m (8'7" x 6'5")


Bathroom - 1.96m x 1.68m (6'5" x 5'6")


Single Garage with Off-road parking


AGENT’S NOTES -


Planning :  Details, if any, can be found on the South Norfolk Council Planning website.


Covenants, Rights and Restrictions:  Please enquire with the selling agents for any information.


Broadband :   FTTP - Ultrafast Full Fibre - See Ofcom checker and Openreach website for more details.


Mobile phone :  See Ofcom checker for coverage details.


Flood risk :  Very low risk of surface, rivers and seas according to Gov.uk website


Services :  Mains Gas, Electricity, Water and Sewage


Local authority :  Norfolk County Council and South Norfolk


Council Tax Band :  D


Tenure :  Freehold


EPC : B


 

Important Information

  • This is a Freehold property.
  • This Council Tax band for this property is: D

Property Ref: 680_1090733

Share:

Similar Properties

Chapel Road, Morley St Botolph, NR18

3 Bedroom Semi-Detached House | £350,000

Moneyproperties are thrilled to be marketing this three-bedroom semi-detached cottage boasting character and charm throu...

Primrose Close, Attleborough, NR17

4 Bedroom Detached House | Guide Price £350,000

*GUIDE PRICE £350,000 - £375,000* Moneyproperties bring to market this generous four-bedroom detached family home locate...

Energy Efficient Detached Bungalow Tuttles Lane West, Wymondham, Norfolk NR18 0DS

3 Bedroom Bungalow | Offers in region of £350,000

Moneyproperties are delighted to present this energy efficient detached three-bedroom bungalow, enjoying attractive fiel...

Rose Cottage, Norwich Common, Wymondham, Norfolk. NR18 0SP

2 Bedroom Cottage | Guide Price £390,000

Rose Cottage returns to the market with planning permission for an exciting self-build project! Sitting on just under on...

Illington Road, Larling, NR16

2 Bedroom Semi-Detached House | Offers Over £390,000

Moneyproperties are thrilled to bring market this idyllic two-bedroom cottage located in the heart of the countryside en...

Crownthorpe Road, Wicklewood, Wymondham, NR18

3 Bedroom Bungalow | Offers Over £400,000

Moneyproperties are delighted to bring to market this spacious three-bedroom detached bungalow occupying a generous plot...

Money Properties (Wymondham)

17/18 Market Place, Wymondham, Norfolk, NR18 0AX

01953 423 006

How much is your home worth?

Use our short form to request a valuation of your property.

Request a Valuation

Mortgage Calculator

Amount Borrowed: £
Total Amount Repayable: £
Total Monthly Payment: £
©2026 The Guild of Property Professionals. All rights reserved. Terms and Conditions | Privacy Policy | Cookie Policy | Complaints Policy | Members Login
The Guild of Property Professionals Trading Address: 121 Park Lane, London W1K 7AG. GPEA Limited. Registered in England & Wales.  Company No: 02819824.  Registered Office Address: 2 St. Stephen's Court, St. Stephen's Road, Bournemouth, Dorset, England, BH2 6LA.  VAT Registration No: 576 8795 61
Book a Property Valuation Update Cookies Preferences