Rose Cottage, Norwich Common, Wymondham, Norfolk. NR18 0SP

Offers Over
£400,000

2 Bedroom Cottage for sale in Wymondham

1 2 1
  • A Rare Opportunity to purchase a cottage on piece of land which is just under one acre
  • Plans have been passed to substantially extend the current two bedroom property
  • The whole site offers potential for re-development STPP, overage clause may apply.
  • Rose Cottage currently offers approximately 1,000 sq ft of accommodation
  • Close to sought after schools with GOOD & EXCELLENT ofsted
  • Perfectly placed for both Hethersett Village and Wymondham Town amenities
  • Regular bus and rail services to Norwich and Cambridge
  • No onward chain
  • Incredible potential for self-build, investment opportunity, or restoring a character home
  • See our full online listing for further details including flood risk, broadband speed and other material information

Rose Cottage - A Rare Opportunity in Wymondham


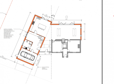
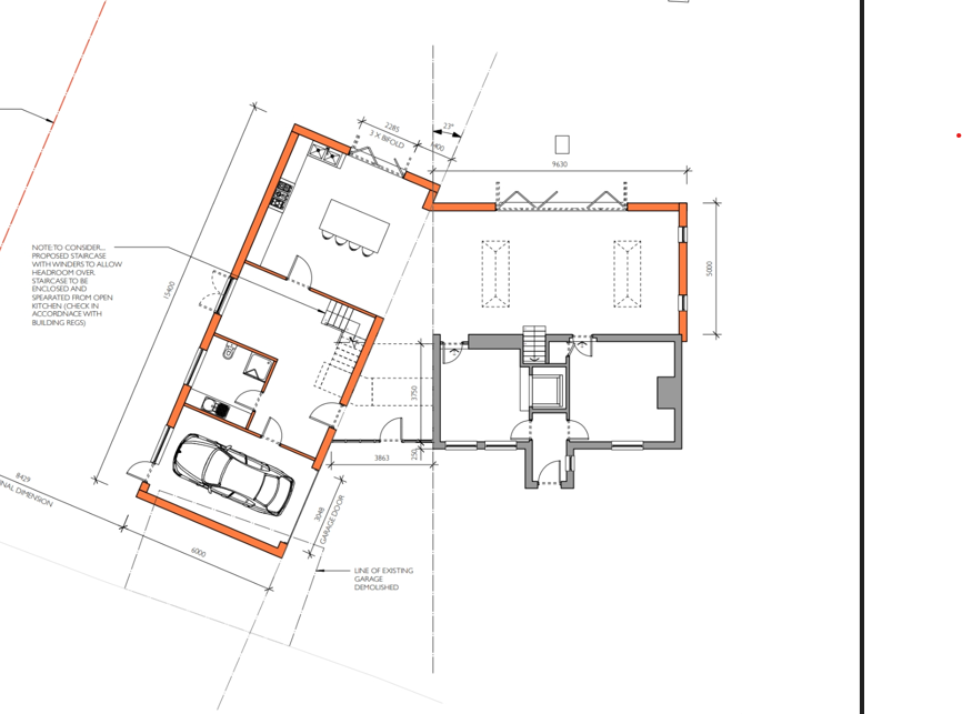
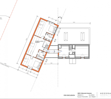
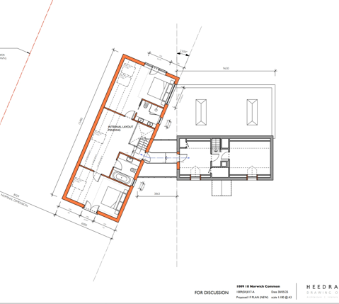
Rose Cottage returns to the market with planning permission for an exciting self-build project! Sitting on just under one acre, this charming property offers huge potential in a highly sought-after location.


Planning has been passed to substantially extend the current property but the whole site has potential for re-development SSTP.


About Rose Cottage


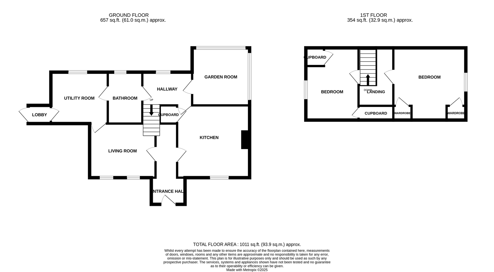
Approx. 1,000 sq ft of accommodation:


   •   2 Bedrooms (first floor)


   •   Porch & Entrance Hall


   •   Living Room


   •   Garden Room


   •   Kitchen & Utility Room


   •   Ground Floor Bathroom


With beautiful field views to the rear, this is countryside living with convenience on your doorstep.


Location Highlights


Perfectly placed for both Hethersett Village and Wymondham Town, offering:


   •  Perfectly placed for both Hethersett Village and Wymondham Town, offering:


   •  Regular bus and rail services to both Norwich and Cambridge 


   •   Highly regarded local schools (Ofsted GOOD & EXCELLENT)


   •   Amenities, countryside walks & community living


No onward chain, therefore, offering the chance for a smooth, speedy sale.


Whether you are dreaming of a self-build, investment opportunity, or restoring a character home, Rose Cottage is a rare find with incredible potential.


Contact Moneyproperties  to arrange a viewing or request more details.


 


AGENT’S NOTES -


Planning :  Details, if any, can be found on the South Norfolk Council Planning website.


Covenants, Rights and Restrictions:  Please enquire with the selling agents for any information.


Broadband :  FTTP - See Ofcom checker and Openreach website for more details.


Mobile phone :  See Ofcom checker for coverage details.


Flood risk :  Very Low risk of surface, risk rivers and seas according to Gov.uk website


Services :  Mains Gas, Electricity and Water. Septic tank.


Local Authority :  Norfolk County Council and South Norfolk Council


Council Tax Band :  C


Tenure :  Freehold


EPC : F


Vendors are considering placing an overage or covenant on this section of land, to apply should planning permission be granted in the future. This arrangement would, of course, be subject to the final price agreed with the buyer. 

Important Information

  • This is a Freehold property.
  • This Council Tax band for this property is: C

Property Ref: 680_1197555

Share:

Similar Properties

Illington Road, Larling, NR16

2 Bedroom Semi-Detached House | Offers Over £400,000

Moneyproperties are thrilled to bring market this idyllic two-bedroom cottage located in the heart of the countryside en...

Evora Road, Wymondham, NR18

4 Bedroom Detached House | £400,000

Moneyproperties bring to market this immaculately presented four-bedroom detached house ideally located within walking d...

The Chimes, Mill Road, Hethersett, Norwich, Norfolk. NR9 3DR

3 Bedroom Detached House | Offers in region of £400,000

Moneyproperties are delighted to present The Chimes, New Road, Hethersett — offered with no onward chain and vacant poss...

Cock Street, Wymondham, NR18

3 Bedroom End of Terrace House | Offers in region of £415,000

Moneyproperties are thrilled to bring to market this idyllic grade II listed family home within a short walk from Wymond...

Flint House Gardens, Hethersett, NR9

3 Bedroom Bungalow | £425,000

Moneyproperties are delighted to bring to market this immaculately presented three-bedroom detached bungalow located at...

Chapel Lane, Wymondham, Norfolk. NR18 0DL

3 Bedroom Bungalow | Offers Over £425,000

Moneyproperties proudly present this detached three / four bedroom bungalow being sold with no forward chain. The proper...

Money Properties (Wymondham)

17/18 Market Place, Wymondham, Norfolk, NR18 0AX

01953 423 006

How much is your home worth?

Use our short form to request a valuation of your property.

Request a Valuation

Mortgage Calculator

Amount Borrowed: £
Total Amount Repayable: £
Total Monthly Payment: £
©2025 The Guild of Property Professionals. All rights reserved. Terms and Conditions | Privacy Policy | Cookie Policy | Complaints Policy | Members Login
The Guild of Property Professionals Trading Address: 121 Park Lane, London W1K 7AG. GPEA Limited. Registered in England & Wales.  Company No: 02819824.  Registered Office Address: 2 St. Stephen's Court, St. Stephen's Road, Bournemouth, Dorset, England, BH2 6LA.  VAT Registration No: 576 8795 61
Book a Property Valuation Update Cookies Preferences