Primrose Close, Attleborough, NR17

Guide Price
£350,000

4 Bedroom Detached House for sale in Attleborough

2 4 2
  • Generous four bedroom detached family home *GUIDE PRICE £375,000 - £400,000*
  • Extended by the current vendors offering spacious accommodation throughout
  • 14ft living room with a large separate dining room
  • Modern kitchen with separate utility room
  • Four well-proportioned bedrooms with an ensuite to bedroom one
  • 54ft south facing rear garden backing on to open green space
  • 21ft garage with off-road parking
  • Within close proximity to the town centre, schools, bus routes and the A11 for commuting
  • Offered with no onward chain
  • See our full online listing for further details including flood risk, broadband speed and other material information.


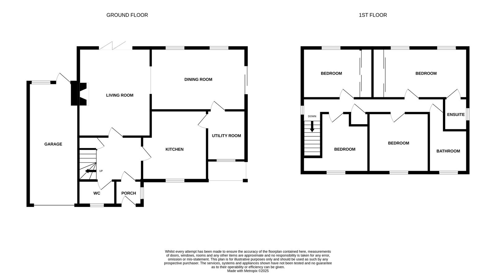
*GUIDE PRICE £350,000 - £375,000* Moneyproperties bring to market this generous four-bedroom detached family home located down a quiet cul de sac within ease of access to the town centre, local schools, bus routes and the A11 for commuting towards Cambridge and Norwich. This spacious property has been extended by the current vendors and comprises of an entrance porch, good-sized hallway with wc, 15ft living room with bifold doors to the rear garden, dual aspect dining room, modern kitchen, and separate utility room. To the upstairs comes four well-proportioned bedrooms with built in wardrobes and an ensuite to bedroom one along with built in wardrobes to bedroom two. The property also benefits from a family bathroom with a separate bath and shower. Outside this generous home enjoys a private south facing garden backing on to open green space, a 21ft garage and off-road parking. Offered with no-onward chain!!



Porch - 1.32m x 1.09m (4'4" x 3'7")


Entrance Hall - 2.26m x 3.15m (7'5" x 10'4")


Living Room - 4.5m x 3.86m (14'9" x 12'8")


Dining Room - 5.08m x 3.33m (16'8" x 10'11")


Kitchen - 3.76m x 3.45m (12'4" x 11'4")


Maximum measurement

Utility Room - 2.67m x 2.08m (8'9" x 6'10")


WC - 1.98m x 1.32m (6'6" x 4'4")


Bedroom One - 4.44m x 2.69m (14'7" x 8'10")


Ensuite - 1.7m x 1.27m (5'7" x 4'2")


Bedroom Two - 3.23m x 3.2m (10'7" x 10'6")


Bedroom Three - 3.1m x 2.69m (10'2" x 8'10")


Bedroom Four - 3.2m x 2.49m (10'6" x 8'2")


Bathroom - 3.2m x 2.06m (10'6" x 6'9")


Maximum measurement

Garage - 6.55m x 2.67m (21'6" x 8'9")


Rear Garden - 16.56m x 8.43m (54'4" x 27'8")


AGENT’S NOTES -


Planning :  Details, if any, can be found on the Breckland Planning website.


Covenants, Rights and Restrictions:  Please enquire with the selling agents for any information.


Broadband :  FTTC available. See Ofcom checker and Openreach website for more details.


Mobile phone :  See Ofcom checker for coverage details.


Flood risk :  Very low risk surface, rivers and seas according to Gov.uk website


Services :  Mains services connected


Local authority :  Norfolk County Council and Breckland Council


Council Tax Band :  D


Tenure :  Freehold


EPC : D

Important Information

  • This is a Freehold property.
  • This Council Tax band for this property is: D

Property Ref: 680_1045405

Share:

Similar Properties

Pople Street, Wymondham, NR18 0PS

3 Bedroom End of Terrace House | Offers in region of £350,000

A Rare Opportunity to Own a Piece of Wymondham’s History .Steeped in heritage, this delightful Georgian town centre cott...

Chapel Road, Morley St Botolph, NR18

3 Bedroom Semi-Detached House | £350,000

Moneyproperties are thrilled to be marketing this three-bedroom semi-detached cottage boasting character and charm throu...

Millway, Wymondham, NR18

3 Bedroom Bungalow | Offers in region of £350,000

Moneyproperties are delighted to bring to market this three-bedroom detached bungalow that has undergone an extension of...

Clifton Road, Wymondham, Norfolk. NR18 0JB

3 Bedroom Bungalow | Offers in region of £355,000

Motivated Sellers – Quick Sale Possible. Spacious Detached 3-Bedroom Bungalow with Annexe Potential. This well-maintaine...

Crownthorpe Road, Wicklewood, Wymondham, NR18

3 Bedroom Bungalow | Offers Over £400,000

Moneyproperties are delighted to bring to market this spacious three-bedroom detached bungalow occupying a generous plot...

Rose Cottage, Norwich Common, Wymondham, Norfolk. NR18 0SP

2 Bedroom Cottage | Offers Over £400,000

Rose Cottage returns to the market with planning permission for an exciting self-build project! Sitting on just under on...

Money Properties (Wymondham)

17/18 Market Place, Wymondham, Norfolk, NR18 0AX

01953 423 006

How much is your home worth?

Use our short form to request a valuation of your property.

Request a Valuation

Mortgage Calculator

Amount Borrowed: £
Total Amount Repayable: £
Total Monthly Payment: £
©2025 The Guild of Property Professionals. All rights reserved. Terms and Conditions | Privacy Policy | Cookie Policy | Complaints Policy | Members Login
The Guild of Property Professionals Trading Address: 121 Park Lane, London W1K 7AG. GPEA Limited. Registered in England & Wales.  Company No: 02819824.  Registered Office Address: 2 St. Stephen's Court, St. Stephen's Road, Bournemouth, Dorset, England, BH2 6LA.  VAT Registration No: 576 8795 61
Book a Property Valuation Update Cookies Preferences