Keepers Corner, Wretham

£450,000
SSTC
This property listing is now SSTC

4 Bedroom Semi-Detached House for sale in Norfolk

4 2
  • Charming semi detached cottage believed to date from the Victorian era
  • 'Modern day' living
  • Flint walled formal garden
  • 0.45 acre plot (subject to measured survey)
  • Beautiful garden room with Swedish woodburner
  • Exposed brick beamed inglenook fireplace with cast iron multi-fuel burning stove
  • 3 / 4 bedrooms, master with en suite
  • Garage, carport, stables, tack room & small paddock
  • Beautiful rural village location
  • Great A11 access

SITUATION LOCATION A great opportunity to acquire this charming semi detached period home has been tastefully extended to cater for 'modern day' living and occupies a 0.45 acre plot (subject to survey) in the rural setting of Wretham. Viewings are strongly advised!

The sought after village of Wretham is located within the heart of the Brecks on the fringe of Thetford Forest. Thetford town is approximately four miles from the property which benefits from a range of amenities, schools, doctors, dentists, bus interchange and mainline rail way with services to Cambridge connecting to London Kings Cross. Wretham boasts a fine church and an active village hall which hosts regular events throughout the year. There is also a basketball court and a small park for children to enjoy just next door.

When looking for a day out with the family, within approximately eight miles is the popular Snetterton Circuit, which hosts various track days, races, and driving experiences. There is also the south Norfolk village of Banham, which is renowned for its' Zoo with a private collection of animals and has been open to the public for more than 40 years. Less than 10 minutes away is Thetford Forest, a haven for wildlife where you can enjoy cycle trails, fantastic walks and High Lodge, which is home to Go Ape, various trails, and play areas for children.  

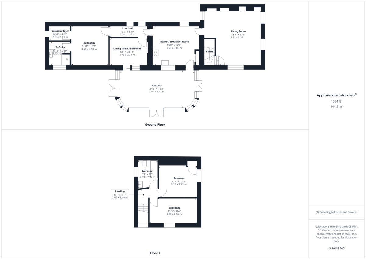
GARDEN ROOM Situated on a dwarf brick base with triple aspect sealed unit UPVC double glazed windows with self cleaning sun reflective/resistant film double glazed roof, Swedish cast iron wood burner, twin electric lamp and ceiling fans, sealed unit double glazed French style doors to front, rear and side aspects, ceramic tiled floor with under floor heating, radiator. 

KITCHEN/BREAKFAST ROOM Recently fitted cottage style white base and wall mounted kitchen units with square edge work surfaces and inset single drainer one and a half bowl ceramic sink unit with mixer tap over, integrated dishwasher, space for tall standing fridge freezer, fitted Range Master range oven incorporating double oven, grill, plate warmer and six ring hob with double width extractor canopy over. Plumbing for washing machine and space for tumble dryer, exposed wall and ceiling timbers, under stairs storage cupboard, work top lighting, ceramic tiled floor, UPVC double glazed windows to either side, radiator. Door to: 

LOUNGE Brick beamed feature inglenook fire place with inset wood burning stove set on a pamment tiled hearth with feature brick arch surround and storage cupboard, triple aspect room with UPVC double glazed windows to front, side and rear, exposed wall and ceiling timbers, stairs to first floor landing with under stairs storage cupboard, two radiators.  

INNER HALL Doors to bedroom 4/dining room and master bedroom suite, exposed ceiling timbers, two obscure UPVC double glazed windows to side, radiator. 

BEDROOM/DINING ROOM Exposed ceiling timbers, UPVC double glazed sliding doors to garden room, radiator. 

BEDROOM ONE Exposed ceiling timbers, TV point, air conditioning unit, sealed unit UPVC double glazed sliding patios doors to formal garden, UPVC double glazed window to side, radiator. 

WALK IN WARDROBE Access to loft space, shelf and hanging space, UPVC double glazed window to rear. 

EN SUITE Three piece suite comprising: WC, vanity sink unit, walk in shower cubicle with glass shower screen and waterfall shower head, extractor fan, tiled flooring, obscure UPVC double glazed window to side, heated towel rail. 

FIRST FLOOR LANDING Doors to first floor accommodation, radiator. 

BEDROOM UPVC double glazed window to side, radiator. 

BEDROOM Built in wardrobe cupboard, UPVC double glazed window to front, radiator. 

BATHROOM Fitted three piece suite comprising: low level WC, pedestal wash basin, panelled bath with shower over, access to loft space, ceramic tiled floor, UPVC double glazed window to rear, heated towel rail.  

OUTSIDE The property is approached via a sweeping gravel driveway and entered via wooden five bar gate leading to the extensive car parking turning and storage area. Immediately to the right hand side is a flint walled formal garden which is laid mainly to lawn with block paved brick weave patio seating area and Spanish barbecue, a mature collection of flowers, trees and shrubs to border with independent pedestrian access, pond, oil storage tank and floor standing oil fired central heating boiler. There is also a post and rail paddock with further garden area to rear with further timber garage. To the left hand of the driveway as you enter is a three vehicle car port with sheet plastic roofing and wood store. Adjacent to the garage work shop is a gravelled area with twin stables. Opening up into an area with post and rail finish and further timber garden shed. 

SUMMER HOUSE Timber construction with glazed French style doors to front and further windows to front and side. 

TACK ROOM Stable style entrance door, windows to front and side. Deep sink unit, power and light connected. 

GARAGE WORKSHOP Oversized garage work shop previously used to house and restore classic cars, power and light connected on a separate supply with RCD circuit breaker, up and over garage door. 

STABLE ONE Stable style entrance doors to front, timber construction with windows to front also. 

STABLE TWO Stable style entrance doors to front, timber construction with windows to front also. 

SERVICES Mains services including electricity, water and drainage are connected to the property.  

EPC Rating E.  

COUNCIL TAX Band C. 

Property Ref: 58290_100335013143

Share:

Similar Properties

St. Audreys, Thetford

4 Bedroom Detached House | £450,000

Ever dreamed of owning that beautiful home with the river on your doorstep? This well presented four bedroom family home...

The Gathering, Great Hockham

3 Bedroom Detached House | Guide Price £375,000

Within the picturesque village of Great Hockham lies this modern detached residence, offering a spacious accommodation i...

Goshawk Way, Thetford

4 Bedroom Detached House | £365,000

An exceptionally well presented detached house lying within a small cul-de-sac on the popular Nunnery Fields development...

All Saints Court, Croxton

4 Bedroom Detached House | Offers in excess of £500,000

Are you searching for a four bedroom detached property in the sought after and popular village of Croxton? This chalet s...

Wretham Hall Estate, Wretham

4 Bedroom Detached House | £675,000

Do you dream of living a picturesque rural life? This beautiful Victorian cottage sits within just under an acre of grou...

Chilterns (Thetford)

Bridge House, 14 Bridge Street, Thetford, Norfolk, IP24 3AA

01842 754161

How much is your home worth?

Use our short form to request a valuation of your property.

Request a Valuation

Mortgage Calculator

Amount Borrowed: £
Total Amount Repayable: £
Total Monthly Payment: £
©2025 The Guild of Property Professionals. All rights reserved. Terms and Conditions | Privacy Policy | Cookie Policy | Complaints Policy | Members Login
The Guild of Property Professionals Trading Address: 121 Park Lane, London W1K 7AG. GPEA Limited. Registered in England & Wales.  Company No: 02819824.  Registered Office Address: 2 St. Stephen's Court, St. Stephen's Road, Bournemouth, Dorset, England, BH2 6LA.  VAT Registration No: 576 8795 61
Book a Property Valuation Update Cookies Preferences