St. Audreys, Thetford

£450,000

4 Bedroom Detached House for sale in Thetford

4 2
  • River access via rear garden
  • Walking distance to Nunnery Lakes and BTO
  • All local amenities nearby
  • Pleasant cul-de-sac position
  • Detached famiy home
  • Four bedrooms
  • En suite to master bedroom
  • Double garage
  • Driveway parking
  • Viewings advised!

SITUATION & LOCATION Chilterns are delighted to launch to the market this well presented four bedroom detached family home situated within one of Thetford's most sought after locations with river views and the town on your doorstep. The property benefits from an kitchen/diner with integral appliances, established and fully enclosed rear garden with river access, ensuite to master, double garage and off road parking.

Thetford is situated in the south of Norfolk, in close proximity to the county border with Suffolk. By road it is 33.8 miles (54.4 km) northeast of Cambridge and 30.7 miles (49.4 km) southwest of Norwich. It lies on the River Little Ouse. On the western side of Thetford is Thetford Forest, which is heavily forested with pine trees. Brettenham Heath National Nature Reserve is to the northeast, near the hamlet of Roudham. To the southeast of Thetford is Nunnery Lakes Nature Reserve, covering about 200 acres, with Breckland heath, woodland, fen and open water habitats and 2 kilometres (1.2 mi) of paths.

The town is well served and includes a mainline railway station with easy access to London, The Midlands and The North. There are the usual town centre amenities and there is a sports centre complex with swimming pool. Located within the Brecks and with easy access to the surrounding beautiful pine forests Thetford is well located for a range of outdoor activities. There is also a range of primary schools within the town, private school (Thetford Grammar) and secondary/sixth form (Thetford Academy). 

PROPERTY DESCRIPTION This exceptional four-bedroom residence is located in the highly sought-after area of St. Audrey's, just outside Thetford Town Centre. Combining generous living space with picturesque river views and a superb position close to excellent transport links, this property is an outstanding opportunity for those seeking a home that offers both tranquillity and convenience.

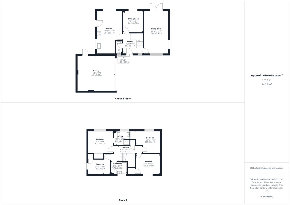
Upon entering, you are greeted by a bright and spacious hallway leading to the principal living areas. The property boasts four well-proportioned double bedrooms, including a luxurious master suite with its own en-suite shower room, ensuring comfort and privacy. A modern family bathroom serves the remaining bedrooms, while a convenient downstairs WC adds practicality for guests and everyday use.

The ground floor has been thoughtfully designed to provide both practicality and a wonderful sense of space. At its heart is a stylish kitchen and breakfast room, perfect for family living and entertaining, with large windows that frame views of the river and fill the room with natural light. The dual-aspect lounge is a particular highlight, offering a bright and welcoming space to relax, with double doors opening directly onto the rear garden – ideal for indoor-outdoor living during the warmer months. Completing the ground floor is a versatile second reception room, perfectly suited as a playroom, home office, or formal dining room, providing flexibility to suit a variety of lifestyles.

Externally, the home continues to impress. The rear garden is a particular highlight, offering direct access to the river frontage – a perfect space for relaxation, dining, or enjoying the tranquil surroundings. To the front, off-road parking and a double garage provide ample space for vehicles and storage.

St. Audrey's is widely regarded as one of Thetford's most desirable areas, offering a peaceful setting while remaining within easy reach of the town centre. Residents benefit from close proximity to mainline railway stations, excellent road connections via the Bury Road and A11, and a range of local amenities including shops, schools, and leisure facilities.

With its combination of generous proportions, sought-after location, and rare river frontage, this property represents a superb opportunity for those looking to secure a substantial family home in one of Thetford's finest settings. 

Property Ref: 58290_100335013397

Share:

Similar Properties

Keepers Corner, Wretham

4 Bedroom Semi-Detached House | £450,000

This fantastic period home has been tastefully extended to cater for 'modern day' living and occupies a 0.45 acre (STS)...

The Gathering, Great Hockham

3 Bedroom Detached House | Guide Price £375,000

Within the picturesque village of Great Hockham lies this modern detached residence, offering a spacious accommodation i...

Goshawk Way, Thetford

4 Bedroom Detached House | £365,000

An exceptionally well presented detached house lying within a small cul-de-sac on the popular Nunnery Fields development...

All Saints Court, Croxton

4 Bedroom Detached House | Offers in excess of £500,000

Are you searching for a four bedroom detached property in the sought after and popular village of Croxton? This chalet s...

Wretham Hall Estate, Wretham

4 Bedroom Detached House | £675,000

Do you dream of living a picturesque rural life? This beautiful Victorian cottage sits within just under an acre of grou...

Chilterns (Thetford)

Bridge House, 14 Bridge Street, Thetford, Norfolk, IP24 3AA

01842 754161

How much is your home worth?

Use our short form to request a valuation of your property.

Request a Valuation

Mortgage Calculator

Amount Borrowed: £
Total Amount Repayable: £
Total Monthly Payment: £
©2025 The Guild of Property Professionals. All rights reserved. Terms and Conditions | Privacy Policy | Cookie Policy | Complaints Policy | Members Login
The Guild of Property Professionals Trading Address: 121 Park Lane, London W1K 7AG. GPEA Limited. Registered in England & Wales.  Company No: 02819824.  Registered Office Address: 2 St. Stephen's Court, St. Stephen's Road, Bournemouth, Dorset, England, BH2 6LA.  VAT Registration No: 576 8795 61
Book a Property Valuation Update Cookies Preferences