Meadow Street, Weston-super-Mare

Asking Price
£240,000

Not Specified for sale in North Somerset

  • A brilliant mixed use commercial and residential freehold property
  • Hosting two studio apartments and one bedroom apartment fully let and income producing
  • Sold with the benefit of tenants in situ
  • Gross rental income of Circa £2725 PCM / £32,700 per annum
  • Excellent location in Weston’s town centre, close to rail links and amenities
  • An excellent investment opportunity
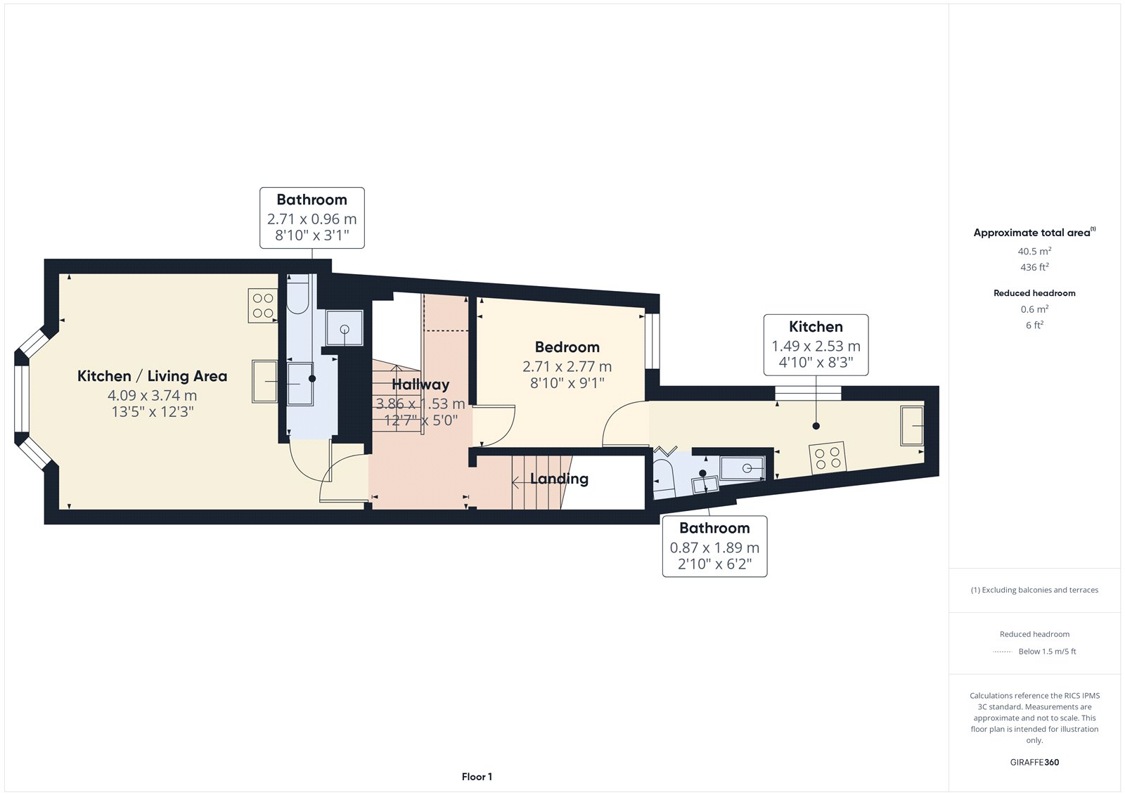
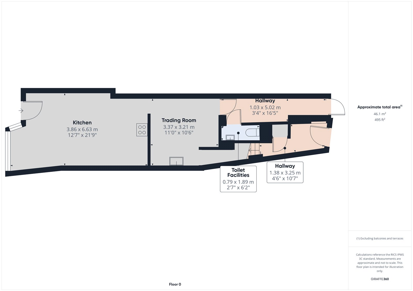
  • Approximately 1,271 sq. ft.
  • EPC Rating: C56 | Business Rates May Apply

Exceptional Mixed-Use Investment Opportunity – Weston-super-Mare Town Centre.



This is a mixed-use freehold property in a Weston-super-Mare town centre location. The property comprises a ground floor commercial unit, two studio apartments and one one-bedroom apartment, all of which are fully let and producing a steady rental income.



Sold with the benefit of tenants in situ, the property provides an immediate income stream with a gross rental income of approximately £2,725 per month, equating to £32,700 per annum. This makes it a great investment for those seeking a ready-made portfolio addition.



The property benefits from a central location, with close proximity to local amenities, shops, and rail links, enhancing both its tenant appeal and long-term rental potential.



Overall, this represents an exciting investment opportunity for landlords or property investors looking to expand in Weston-super-Mare with a tenanted, income-producing asset.



EPC Rating: C56 | Business Rates May Apply | Council Tax Bands: A

Important Information

  • This is a Freehold property.

Property Ref: DPO_DPO180733

Share:

Similar Properties

Meadow Street, Weston-super-Mare

Not Specified | Asking Price £240,000

Exceptional Mixed-Use Investment Opportunity – Weston-super-Mare Town Centre. This is a mixed-use freehold property in...

St Pierre Country Park, Caldicot

2 Bedroom Park Home | Asking Price £240,000

A brand-new two-bedroom lodge set within the sought-after and peaceful St. Pierre Country Park. Plot 2 The Green offers...

Sidmouth Road, Lyme Regis

2 Bedroom Park Home | Asking Price £238,995

Positioned on a premium countryside plot with far-reaching valley views, this beautifully finished lodge offers the perf...

Manor Gardens, Kewstoke, Weston-super-Mare

3 Bedroom Semi-Detached House | Asking Price £250,000

Welcome to this fantastic three-bedroom semi-detached freehold property, offering potential to make your own mark and pe...

Rectory Way, Lympsham, Somerset

3 Bedroom Semi-Detached Bungalow | Guide Price £250,000

For sale by Public Auction on Wednesday 18th February 2026 at Leigh Court, Pill Road, Abbots Leigh, BS8 3RA and online a...

Whitting Road, Weston-super-Mare, North Somerset

3 Bedroom Terraced House | Asking Price £250,000

A three-bedroom mid-terrace freehold property situated in Weston-super-Mare, offering well-proportioned accommodation an...

David Plaister Ltd (Weston-super-Mare)

Weston-super-Mare, North Somerset, BS23 1JN

01934 815 053

How much is your home worth?

Use our short form to request a valuation of your property.

Request a Valuation

Mortgage Calculator

Amount Borrowed: £
Total Amount Repayable: £
Total Monthly Payment: £
©2025 The Guild of Property Professionals. All rights reserved. Terms and Conditions | Privacy Policy | Cookie Policy | Complaints Policy | Members Login
The Guild of Property Professionals Trading Address: 121 Park Lane, London W1K 7AG. GPEA Limited. Registered in England & Wales.  Company No: 02819824.  Registered Office Address: 2 St. Stephen's Court, St. Stephen's Road, Bournemouth, Dorset, England, BH2 6LA.  VAT Registration No: 576 8795 61
Book a Property Valuation Update Cookies Preferences