Blofield Hall Unique Lifestyle Opportunity 15 Hall Road Blofield NR13 4DD

Offers in region of
£445,000

3 Bedroom Terraced House for sale in Norwich

3 3 3
  • A unique home offering an exceptional lifestyle opportunity
  • Set within approximately 12 acres of stunning countryside
  • This former hospital has been thoughtfully converted into 16 individual residences
  • Exclusive and characterful community for those seeking something beyond the ordinary.
  • Number 15 provides around 2,000 sq ft of versatile accommodation arranged over three floors
  • All rooms enjoy delightful views across the surrounding estate
  • The property further benefits from a garage and ample parking for both residents and visitors.
  • Minutes from the A47, making it ideal for commuters travelling to Norwich and Cambridge.
  • Blofield village centre offers a range of local amenities, while the historic city of Norwich has all you need
  • EPC rating D / Council Tax Banding E - Broadland District Council


Moneyproperties are proud to present Blofield Hall, a unique home offering an exceptional lifestyle opportunity. Set within approximately 12 acres of stunning countryside, this former hospital has been thoughtfully converted into 16 individual residences, creating an exclusive and characterful community for those seeking something beyond the ordinary.


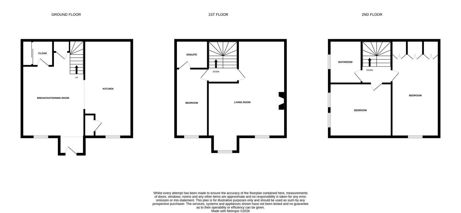
Number 15 provides around 2,000 sq ft of versatile accommodation arranged over three floors. The ground floor comprises an entrance hall, cloakroom with storage, and an impressive open-plan kitchen, breakfast and dining area ideal for modern living and entertaining.


The first floor features a spacious living room with dedicated music and study areas, along with a third bedroom benefiting from an en-suite bathroom. On the top floor are two further generous bedrooms and a family bathroom. All rooms enjoy delightful views across the surrounding estate.


The property further benefits from a garage and ample parking for both residents and visitors.


Blofield Hall is conveniently located just minutes from the A47, making it ideal for commuters travelling to Norwich and Cambridge. Blofield village centre offers a range of local amenities, while the historic city of Norwich, providing extensive shopping, leisure facilities and regular rail and bus services to Cambridge and London is only a 20-minute drive away.


This exceptional home is perfectly suited for those seeking a distinctive lifestyle while remaining close to everyday amenities, all set against the beautiful backdrop of the Norfolk countryside and Broads.



Entrance Hall - 1.73m x 1.14m (5'8" x 3'9")


Breakfast / Dining Area - 4.85m x 4.27m (15'11" x 14'0")


Fully Equipped Kitchen with granite worktops, integral Bosc appliances and Smeg Range Cooker - 7.01m x 3.25m (23'0" x 10'8")


Downstairs Cloakroom with storage - 1.75m x 2.13m (5'9" x 7'0")


Stairs with storage cupboard to level two


Landing - 3.25m x 1.96m (10'8" x 6'5")


Living Room with Music and Study Areas - 7.19m x 35.84m (23'7" x 117'7")


Music Area - 3.61m x 3.28m (11'10" x 10'9")


Study Area - 4.72m x 2.11m (15'6" x 6'11")


Bedroom Three with ensuite - 4.95m x 2.24m (16'3" x 7'4")


En Suite - 2.21m x 1.93m (7'3" x 6'4")


Stairs to Level Three


Landing - 2.95m x 1.96m (9'8" x 6'5")


Bedroom One with fitted wardrobes - 6.38m x 3.28m (20'11" x 10'9")


Family Bathroom with separate shower cubicle - 2.95m x 2.16m (9'8" x 7'1")


Bedroom Two - 34.72m x 3.89m (113'11" x 12'9")


Outside 


Garage and residents parking area


12 Acres of Communal Gardens


Private Drive with electric gates


 


AGENT’S NOTES -


Planning :  Details, if any, can be found on the South Norfolk Council Planning website.


Covenants, Rights and Restrictions:  Please enquire with the selling agents for any information.


Broadband :  Ultrafast Full Fibre FTTP.  See Ofcom checker and Openreach website for more details.


Mobile phone :  See Ofcom checker for coverage details.


Flood risk : Very Low risk of surface, risk rivers and seas according to Gov.uk website


Services :  Mains Electricity, Water, Sewerage and LPG Gas Heating 


Local authority :  Norfolk County Council and Broadland Council


Council Tax Band :  E


Tenure :  Freehold


EPC : D

Important Information

  • This is a Freehold property.
  • This Council Tax band for this property is: E

Property Ref: 680_1347429

Share:

Similar Properties

A bungalow on a small development at Downham Crescent, Wymondham, NR18 0SF

3 Bedroom Bungalow | Offers in region of £435,000

Moneyproperties proudly present this three bedroom detached bungalow for sale with no forward chain. The bungalow occupi...

Chapel Lane, Wymondham, Norfolk. NR18 0DL

3 Bedroom Bungalow | Offers Over £425,000

Moneyproperties proudly present this detached three / four bedroom bungalow being sold with no forward chain. The proper...

Mill Road, Hethersett, NR9

3 Bedroom Detached House | Offers in region of £425,000

Moneyproperties are delighted to bring to market this immaculately presented three-bedroom detached house that has been...

Baker Drive, Hethersett, NR9

4 Bedroom Detached House | £465,000

Moneyproperties are thrilled to be marketing this immaculately presented four-bedroom detached family home in the popula...

Green Lane, Rockland All Saints, Attleborough, NR17 1UA

4 Bedroom Detached House | Offers in region of £495,000

Moneyproperties are pleased to present The Hollies, offered to the market with no forward chain, and located in the high...

High Street Wicklewood With Outstanding Primary School

3 Bedroom Detached House | Offers in region of £495,000

Moneyproperties are delighted to present this impressive detached four bedroom home, located in the highly sought-after...

Money Properties (Wymondham)

17/18 Market Place, Wymondham, Norfolk, NR18 0AX

01953 423 006

How much is your home worth?

Use our short form to request a valuation of your property.

Request a Valuation

Mortgage Calculator

Amount Borrowed: £
Total Amount Repayable: £
Total Monthly Payment: £
©2026 The Guild of Property Professionals. All rights reserved. Terms and Conditions | Privacy Policy | Cookie Policy | Complaints Policy | Members Login
The Guild of Property Professionals Trading Address: 121 Park Lane, London W1K 7AG. GPEA Limited. Registered in England & Wales.  Company No: 02819824.  Registered Office Address: 2 St. Stephen's Court, St. Stephen's Road, Bournemouth, Dorset, England, BH2 6LA.  VAT Registration No: 576 8795 61
Book a Property Valuation Update Cookies Preferences