Baker Drive, Hethersett, NR9

£465,000

4 Bedroom Detached House for sale in Norwich

2 4 2
  • Immaculately presented four bedroom detached family home with EV charger
  • Bought from new in 2018 with remaining NHBC
  • Modern and stylish interior throughout
  • Four double bedrooms with an ensuite to bedroom one
  • 26ft open plan kitchen/diner
  • Spacious living room with bay-fronted window
  • Downstairs study/bedroom
  • Generous rear garden with decking area
  • Over-sized single garage with off-road parking
  • See our full online listing for further details including flood risk, broadband speed and other material information.


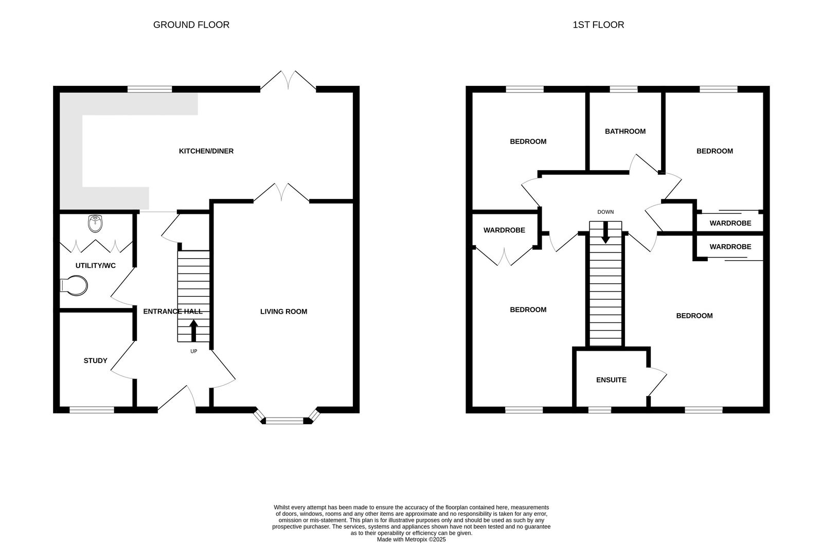
Moneyproperties are thrilled to be marketing this immaculately presented four-bedroom detached family home in the popular village of Hethersett. Bought from new in 2018 the property boasts stylish and modern living throughout comprising of an entrance hall, spacious living room, 26ft open plan kitchen/diner, downstairs study, and utility cloakroom. To the upstairs comes four double bedrooms three with built in wardrobes and an ensuite to bedroom one, along with a family bathroom. Outside the property enjoys a generous rear garden with a decking area, over-sized single garage, and off-road parking and EV charger. The property is ideally located for all local schools and amenities whilst being within ease of access to Norwich, Norfolk and Norwich Hospital and the University of East Anglia.  



Entrance Hall


Living Room - 4.7m x 3.81m (15'5" x 12'6")


Kitchen/Diner - 8.05m x 3.2m (26'5" x 10'6")


Utility Cloakroom - 2.06m x 1.63m (6'9" x 5'4")


Bedroom/Study - 2.06m x 1.73m (6'9" x 5'8")


Bedroom One - 3.84m x 3.73m (12'7" x 12'3")


Maximum measurement

Ensuite - 1.93m x 1.63m (6'4" x 5'4")


Bedroom Two - 4.19m x 2.79m (13'9" x 9'2")


Maximum measurement

Bedroom Three - 3.15m x 2.74m (10'4" x 9'0")


Bedroom Four - 3.4m x 3.07m (11'2" x 10'1")


Maximum measurement 

Bathroom - 2.08m x 2.01m (6'10" x 6'7")


Garage with off-road parking


AGENT’S NOTES -


Planning :  Details, if any, can be found on the South Norfolk Council Planning website.


Covenants, Rights and Restrictions:  Please enquire with the selling agents for any information.


Broadband :  FTTP, Ultrafast Fibre - See Ofcom checker and Openreach website for more details.


Mobile phone :  See Ofcom checker for coverage details.


Flood risk :  Very low risk of surface, risk rivers and seas according to Gov.uk website


Services :  Mains Electricity, Gas, Water and Sewage


Local authority :  Norfolk County Council and South Norfolk


Council Tax Band :  E


Tenure :  Freehold


EPC : B


Hethersett Residents Management Company - RMG in place
£112 yearly ground rent (stc)

Important Information

  • This Council Tax band for this property is: E

Property Ref: 680_1217392

Share:

Similar Properties

Blofield Hall Unique Lifestyle Opportunity 15 Hall Road Blofield NR13 4DD

3 Bedroom Terraced House | Offers in region of £445,000

Moneyproperties are proud to present Blofield Hall, a unique home offering an exceptional lifestyle opportunity. Set wit...

A bungalow on a small development at Downham Crescent, Wymondham, NR18 0SF

3 Bedroom Bungalow | Offers in region of £435,000

Moneyproperties proudly present this three bedroom detached bungalow for sale with no forward chain. The bungalow occupi...

Chapel Lane, Wymondham, Norfolk. NR18 0DL

3 Bedroom Bungalow | Offers Over £425,000

Moneyproperties proudly present this detached three / four bedroom bungalow being sold with no forward chain. The proper...

Green Lane, Rockland All Saints, Attleborough, NR17 1UA

4 Bedroom Detached House | Offers in region of £495,000

Moneyproperties are pleased to present The Hollies, offered to the market with no forward chain, and located in the high...

High Street Wicklewood With Outstanding Primary School

3 Bedroom Detached House | Offers in region of £495,000

Moneyproperties are delighted to present this impressive detached four bedroom home, located in the highly sought-after...

Bellrope Lane, Wymondham, Norfolk

4 Bedroom Bungalow | Offers in region of £525,000

Spacious 4/5 Bedroom Detached Bungalow on Generous 0.25 Acre Plot in Sought-After Historic Wymondham. Situated on the po...

Money Properties (Wymondham)

17/18 Market Place, Wymondham, Norfolk, NR18 0AX

01953 423 006

How much is your home worth?

Use our short form to request a valuation of your property.

Request a Valuation

Mortgage Calculator

Amount Borrowed: £
Total Amount Repayable: £
Total Monthly Payment: £
©2026 The Guild of Property Professionals. All rights reserved. Terms and Conditions | Privacy Policy | Cookie Policy | Complaints Policy | Members Login
The Guild of Property Professionals Trading Address: 121 Park Lane, London W1K 7AG. GPEA Limited. Registered in England & Wales.  Company No: 02819824.  Registered Office Address: 2 St. Stephen's Court, St. Stephen's Road, Bournemouth, Dorset, England, BH2 6LA.  VAT Registration No: 576 8795 61
Book a Property Valuation Update Cookies Preferences