Red Lion Yard, Odd Down, Bath

Guide Price
£500,000
SSTC
This property listing is now SSTC

Commercial Property for sale in Odd Down, Bath

  • A rare opportunity to purchase a freehold industrial unit
  • Situated on the southern side of Bath just off Frome Road
  • Available with vacant possession and ideal for owner occupation or investment
  • Overall 2777sqft - Capable of sub division subject to necessary consents
  • Warehouse/workshop with mezzanine
  • Further separate workshop
  • Reception and offices
  • kitchen and wcs
  • Generous private parking
  • All mains services - gas heating

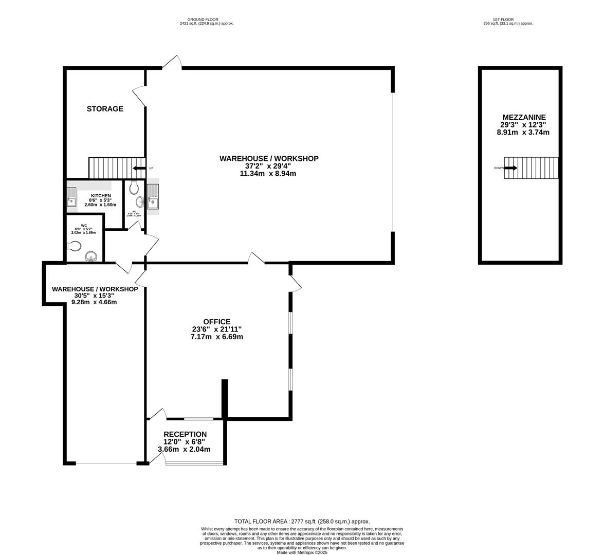
The property comprises a freehold industrial unit extending in total to 258sqm (2777 sqft). It has block and profile sheet elevations with a metal profile roof. There is a main workshop/warehouse space accessed via a roller shutter door with an internal store, kitchen and a mezzanine area above. There is a further separately accessed workshop area and office accommodation has been sub divided and could be converted back into workshop space if required. Externally there is a further plot of land immediately adjacent to the site which provides a good amount of parking.

Odd Down is situated on the southern side of the City and the property is situated just off the Frome Road close to the traffic light junction with Bloomfield Road, known as Noads Corner. The site is part of the former Red Lion Quarry which comprises this unit and a small collection of commercial buildings at the end of the lane which are in separate ownership.

In all a rare opportunity to buy a freehold unit ideal for owner occupation or as an investment and suitable for including a self invested pension fund (SIPP)

In fuller detail the accommodation comprises (all measurements are approximate):

Reception Area - 3.66m x 2.04m (12'0" x 6'8") - Double glazed entrance door and window with electric external shutter. Radiator.

Offices - 7.12m x 6.69m (23'4" x 21'11") - Double glazed window to side aspect and double glazed door to outside. Radiator.

Main Warehouse/Workshop Area - 11.34m x 8.94m (37'2" x 29'3" ) - Ridge Height 5.5m. Eaves Height 4.0m. Roller shutter door, ceiling mounted radiant heating> Sink unit, fire door to side aspect. Staircase to mezzanine.

Mezzanine - 8.90m x 3.74m (29'2" x 12'3") - Gas fired heating boiler.

Store Room (Internal) - 4.12m (5.16m to max) x 3.71m (13'6" (16'11" to max - Radiator.

Lobby -

Kitchen (Internal) - 2.60m x 1.60m (8'6" x 5'2") - Fitted wall and floor units. Sink. Radiator.

Male, Female & Disabled Wc's -

Workshop/Warehouse - 9.28m x 4.66m (30'5" x 15'3") - Roller shutter door. Ceiling mounted radiant heating. Ridge Height 4.6m. Eaves Height 4.0m.

Outside - A plan showing the extent of the external land is available for inspection. Notably there is an area to the south east of the building which is linear in nature and used to facilitate off street parking.

Tenure - Freehold. The property is held on two titles ST309922 and ST309923.

Services - All mains services are understood to be connected. The property has gas fired central heating with radiators in the offices and radiant heating in the warehouse/workshop areas.

Energy Performance Certificate - Energy rating 92D. Certificate number 0254-7270-1315-5927-1540. A copy of the full document is available on request.

Property Ref: 33936870

Share:

Similar Properties

Iford Close, Saltford, Bristol

3 Bedroom Detached Bungalow | £500,000

Located in the tranquil setting of Iford Close, Saltford, this charming detached bungalow offers a unique opportunity fo...

Witney Close, Saltford, Bristol

3 Bedroom Detached House | Offers Over £500,000

A well presented detached family home offered with no onward chain, quietly tucked away in a cul-de-sac position and set...

The Barton, Corston, Bath

2 Bedroom Terraced House | Offers in excess of £500,000

This charming character cottage is ideally situated in the heart of the village, just a short stroll from the local shop...

California Road, Oldland Common, Bristol

3 Bedroom Detached Bungalow | Guide Price £510,000

This individual detached bungalow with its attractive bay fronted fa?ade and Broseley tiled roof was originally construc...

Wells Road, Hallatrow, Bristol

3 Bedroom Detached Bungalow | £520,000

A wonderful opportunity to acquire this beautifully presented detached bungalow, set in an enviable position with outsta...

Hill View, Marksbury

4 Bedroom Detached House | Guide Price £530,000

The property comprises an individual detached house built in 1966 set in a short cul de sac of five properties, in the s...

Davies & Way (Saltford)

489 Bath Road, Saltford, Bristol, BS31 3BA

01225 400400

How much is your home worth?

Use our short form to request a valuation of your property.

Request a Valuation

Mortgage Calculator

Amount Borrowed: £
Total Amount Repayable: £
Total Monthly Payment: £
©2026 The Guild of Property Professionals. All rights reserved. Terms and Conditions | Privacy Policy | Cookie Policy | Complaints Policy | Members Login
The Guild of Property Professionals Trading Address: 121 Park Lane, London W1K 7AG. GPEA Limited. Registered in England & Wales.  Company No: 02819824.  Registered Office Address: 2 St. Stephen's Court, St. Stephen's Road, Bournemouth, Dorset, England, BH2 6LA.  VAT Registration No: 576 8795 61
Book a Property Valuation Update Cookies Preferences