Pennsylvania, Exeter

Guide Price
£1,000,000

4 Bedroom Detached House for sale in Pennsylvania

3 4 3

Directions

From the city centre proceed northwards via Longbrook Street, continue straight ahead at the roundabout into Pennsylvania Road. Continue over the traffic lights and the junction of Union Road, and then about 3/4 of the way up the hill turn left into Oriole Drive and then turn right after a quarter of a mile into Hillcrest Park. The property will be found on the right hand side.

Situation

Situated in one of Exeter's most sought-after residential areas, this property enjoys a peaceful, elevated position with far-reaching views across the city and towards the picturesque Haldon Hills. Nestled on a quiet private no-through road above the University campus, it offers a rare combination of tranquillity and convenience—just one mile from the vibrant city centre.

The location is exceptionally well placed for access to a range of highly regarded private and state schools, as well as the prestigious University of Exeter and its expanding college facilities. The University's state-of-the-art sports complex and swimming pool are open to the public.

Residents benefit from excellent transport connections, with both Exeter Central and St David's railway stations nearby, and Exeter Airport is just a short drive away. The property also lies on the scenic Green Circle walking route and is just moments from the edge of the Belvedere Estate and the Duryard Valley, offering a wealth of green space for walking and recreation.

All this, just a 20-minute walk from the centre of Exeter.

Description

This stunning, detached home, completely renovated and remodelled with style by the current owners in 2012, occupies a particularly desirable position within Hillcrest Park, Exeter; a quiet and private cul-de-sac just north of the University of Exeter on the fringes of the City. The location is very discreet, affording the residents here an unusual amount of privacy whilst offering easy access to central Exeter, approximately one mile away.

The bespoke ground floor open plan layout offers an exceptional combination of space and functionality, it's dual aspect flooding the living area with light from sunrise to sunset.

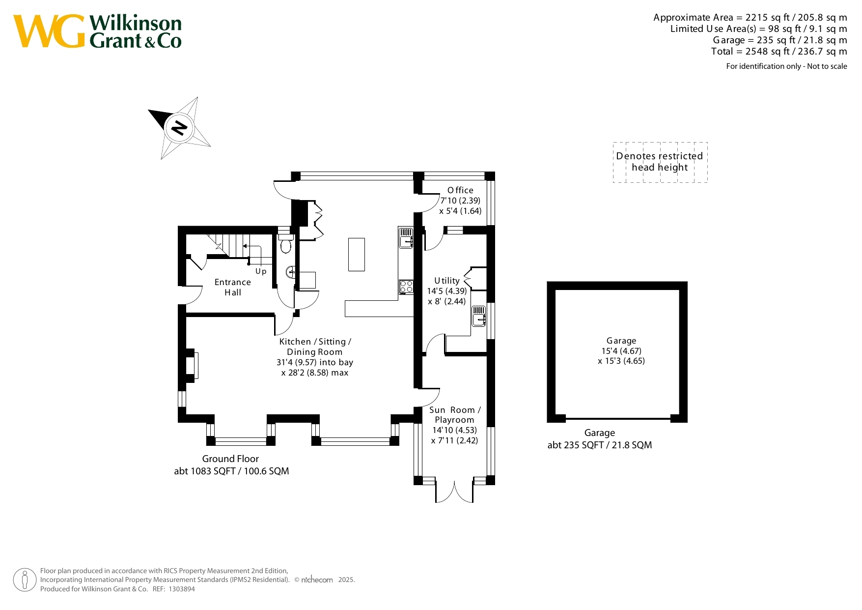
This home spans generously over three floors and 2215 square ft of beautifully presented space with four bedrooms and three high quality bathrooms. The principle bedroom on the first floor provides the luxury of an en-suite bathroom and private terrace with south facing views towards the Haldon Hills and across the city. The second floor bedroom also benefits from an en-suite and dressing area.

The property is filled throughout by modern conveniences, a fully fitted System Six kitchen, generous utility, sunroom/playroom and three separate office areas. The ample storage in the communal areas and fitted cupboard/wardrobe space in the bedrooms complete this lovely home.

The beautiful gardens have been creatively landscaped with spaces for al-fresco dining, very well-maintained tiered lawns, and raised beds containing mature shrubs and trees.

The front of the property boasts two glass-fronted balustrades to fully utilise the Southerly aspect and Westerly sunsets. There is a double garage and ample parking on the expansive driveway, complete with an EV charging point and bordered by an attractive, landscaped and tiered front garden.

This fantastic property offers a unique opportunity to acquire an incredible, unique home in a very sought after location on a generous plot with wonderful gardens and views.

SERVICES:    The vendor has advised the following:    Mains gas (serving the central heating boiler and hot water), mains electricity, water and drainage. Wood burning stove installed.
Telephone landline not currently in contract. Broadband (fibre optic to property) currently in contract with BT approx. Download speed 457.85 Mbps and Upload speed 104.53 Mbps.
Mobile signal: Several networks currently showing as available at the property. Electric vehicle charging point installed.
Council Tax Band G.

AGENTS NOTE:    The vendor advises that there is an Estate Management charge paid to Hillcrest Park Management Company Limited, in respect of the private access road. We are advised that the charge for 2024 was £95.

50.741147 -3.528353

Important Information

  • This is a Freehold property.

Property Ref: SOU210724

Share:

Similar Properties

Old Pinn Lane, Pinhoe, Exeter

4 Bedroom Detached House | Guide Price £1,000,000

Ashley House is a spacious, BEAUTIFULLY RENOVATED family home in the heart of Pinhoe. Offering over 2,500 sq ft of VERSA...

Broadclyst, Exeter

5 Bedroom Detached House | Guide Price £1,000,000

A fabulous FIVE BEDROOM DETACHED HOUSE with a separate COACH HOUSE FLAT/ANNEXE and SHEPHERDS HUT, both providing INCOME...

Aspen Close, Exeter, Devon

4 Bedroom Detached House | Guide Price £950,000

Welcome to Kahiwi House. A spectacular CONTEMPORARY RESIDENCE that redefines MODERN LIVING. Cleverly designed to capture...

St Leonards, Exeter, Devon

5 Bedroom Semi-Detached House | Guide Price £1,125,000

BEAUTIFULLY-PRESENTED EDWARDIAN period home in a most sought-after ST.LEONARDS address. Offering a large amount of groun...

West Hill, Ottery St. Mary, Devon

4 Bedroom Detached House | Guide Price £1,150,000

Tarka's Holt is a spacious, 3054 square foot versatile FAMILY HOME in sought-after WEST HILL, set in almost 0.75 ACRE of...

Pennsylvania, Exeter

6 Bedroom Detached House | Guide Price £1,150,000

EXTENSIVELY-IMPROVED 1930’S-BUILT detached FAMILY-SIZE home in a sought-after TREE-LINED AVENUE close to the city centre...

Wilkinson Grant & Co (Exeter)

1 Castle Street, Southernhay West, Exeter, Devon, EX4 3PT

01392 427500

How much is your home worth?

Use our short form to request a valuation of your property.

Request a Valuation

Mortgage Calculator

Amount Borrowed: £
Total Amount Repayable: £
Total Monthly Payment: £
©2026 The Guild of Property Professionals. All rights reserved. Terms and Conditions | Privacy Policy | Cookie Policy | Complaints Policy | Members Login
The Guild of Property Professionals Trading Address: 121 Park Lane, London W1K 7AG. GPEA Limited. Registered in England & Wales.  Company No: 02819824.  Registered Office Address: 2 St. Stephen's Court, St. Stephen's Road, Bournemouth, Dorset, England, BH2 6LA.  VAT Registration No: 576 8795 61
Book a Property Valuation Update Cookies Preferences