Barbican Court, 54 Vauxhall Street, Plymouth

£650,000
SSTC
This property listing is now SSTC

House for sale in Plymouth

  • Grade II listed bonded warehouse converted into 5 apartments & a commerical unit
  • Each apartment comprises an open-plan living room, kitchen, bedroom & bathroom
  • Commercial unit arranged over 2 storeys
  • Currently the commercial unit is a hairdressers/salon
  • Being sold as a whole to include the freehold
  • Currently generating an overall annual income of xxx
  • Iconic Barbican location

Grade II listed bonded warehouse converted into 5 purpose-built apartments each with open-plan living room, kitchen, double bedroom & bathroom. In addition is a commercial unit which is currently used as a hairdressing/beauty salon arranged over 2 storeys. The property is being sold as a whole to include the freehold. Currently receiving an overall yearly income of �46,000

Flats 7-11 Barbican Court -

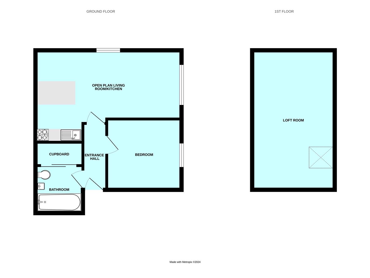
Flat 9 - accommodation (accommodation) - Front door opening into the entrance hall.

Entrance Hall - Intercom entry system. Providing access to the accommodation. Over-head consumer unit. Laminate flooring.

Open-Plan Living Room & Kitchen - 6.25m x 3.86m (20'6 x 12'8) - Superb open-plan room with ample space for seating and dining. Electric heater. Window with fitted blinds to the front elevation. The kitchen area has a range of modern cabinets with work surfaces and splash-backs. Stainless-steel single drainer sink unit. Built-in oven and hob with a cooker hood above. Space for free-standing appliances. Laminate flooring.

Double Bedroom - 3.05m x 3.00m (10' x 9'10) - Window with fitted blind. Electric heater.

Shower Room - 3.23m x 1.70m incl cupboard (10'7 x 5'7 incl cupbo - Comprising a large walk-in shower with fixed glass screen, tiled surround and a built-in shower system, basin and wc with a push button flush set into a cabinet providing storage and concealing the cistern. Sliding doors opening into a large walk-in cupboard housing the hot water cylinder. Laminate flooring.

Flat 8 - accommodation (accommodation) - Front door opening into the entrance hall.

Entrance Hall - Providing access to the accommodation. Over-head consumer unit.

Open-Plan Living Room & Kitchen - 5.33m x 4.09m max dimensions (17'6 x 13'5 max dime - An open-plan dual aspect room with windows with fitted blind to the front and side elevations. Ample space for seating and dining. Modern fitted kitchen with matching fascias and work surfaces. Built-in oven. Inset hob with cooker hood. Space for free-standing appliances. Laminate flooring. Electric heater.

Bedroom - 3.12m x 2.64m (10'3 x 8'8) - Window with fitted blind. Electric heater.

Shower Room - 3.23m x 1.80m max dimensions incl cupboard (10'7 x - Comprising a built-in shower with a tiled surround, fixed glass screen and a fitted shower system, wc with a push-button flush and basin set into a cabinet providing storage and concealing the cistern. Sliding doors opening into a walk-in cupboard housing the hot water cylinder. Laminate flooring.

Flat 11 - accommodation (accommodation) - Front door opening into the entrance hall

Entrance Hall - Providing access to the accommodation. Over-head consumer unit.

Open-Plan Living Room & Kitchen - 6.30m x 3.84m (20'8 x 12'7) - An open-plan dual aspect room with windows to 2 elevations with lovely views. Ample space for seating and dining. The kitchen is fitted with units with matching fascias, work surfaces and tiled splash-backs together with an island and breakfast bar. Stainless-steel single drainer sink. Built-in oven and cooker hood. Space for free-standing fridge. Feature exposed stone and brick internal wall. Storage heater.

Bedroom - 3.12m x 3.02m (10'3 x 9'11) - Window with fitted blinds. Wall-mounted Slimline electric heater.

Bathroom - 3.20m x 1.80m (10'6 x 5'11) - Comprising a bath with an electric shower system over, vanity-style basin with a cupboard beneath and wc. Tiled walls. Wall-mounted electric fan heater. Sliding doors opening into a large walk-in cupboard housing the hot water cylinder.

Loft Room - 6.07m x 3.51m (19'11 x 11'6) - Pull-down loft ladder. Boarded and carpeted. Velux window. Power and lighting.

Flat 10 - accommodation (accommodation) - Front door opening into the entrance hall

Entrance Hall - Providing access to the accommodation. Over-head consumer unit.

Open-Plan Living Room & Kitchen - 5.41m x 4.24m (17'9 x 13'11) - A dual aspect room with windows to 2 elevations. Lovely views. Ample space for seating and dining. Kitchen cabinets with matching fascias and work surfaces together with an island and breakfast bar. Feature exposed natural stone wall. Built-in oven and hob with a cooker hood above. Electric heater.

Bedroom - 3.20m x 2.69m (10'6 x 8'10) - Window. Wall-mounted Slimline electric heater.

Bathroom - 3.20m x 1.80m (10'6 x 5'11) - Comprising a bath with tiled area surround and an electric shower over, vanity-style basin with a cupboard beneath and wc. Wall-mounted fan heater. Sliding mirrored doors opening into a large walk-in cupboard housing the hot water cylinder.

Loft Room - Pull-down loft ladder. Boarded and carpeted. Velux window. Power and lighting.

Flat 7 - accommodation (accommodation) - Front door opening into the entrance hall

Entrance Hall - Providing access to the accommodation. Over-head consumer unit.

Open-Plan Living Room & Kitchen - 6.25m x 3.84m (20'6 x 12'7) - A generous open-plan room with window. Ample space for seating and dining. The kitchen area is fitted with a range of base and wall-mounted cabinets with matching fascias, work surfaces together with an island and breakfast bar. Built-in oven and hob with a cooker hood above. Feature exposed natural stone wall. Electric heater.

Bedroom - 3.10m x 3.00m (10'2 x 9'10) - Window with fitted blind.

Bathroom - 3.20m x 1.80m (10'6 x 5'11) - Comprising a bath with an electric shower over, vanity basin with a cabinet beneath and wc. Partly-tiled walls. Sliding mirrored doors opening into a large walk-in cupboard housing the hot water cylinder.

Main Ground Floor Salon - 14.81m x 5.41m (48'7 x 17'9) -

Wig Studio - 5.33m x 4.11m (17'6 x 13'6) -

Salon Room - 3.12m x 2.62m (10'3 x 8'7) -

Shower Room -

Agent's Note - There are individual EPCs for each of the flats and a commerical EPC for the Hair Boutique.
Flats 7, 8, 10 and 11 having a rating of C and flat 9 has a rating of B.
The Hair Boutique has a rating of C54

Property Ref: 11002660_33337888

Share:

Similar Properties

Plymstock, Plymouth

5 Bedroom Detached House | Offers Over £650,000

A rare opportunity to acquire this older-style detached house in one of Plymstock's most sought-after locations. The hou...

Wembury, Plymouth

4 Bedroom Detached House | £650,000

Individually-designed detached property occupying a lovely position in Beach View Crescent enjoying fabulous views towar...

Plymstock, Plymouth

4 Bedroom Semi-Detached House | £650,000

Superbly-positioned period semi-detached house offering substantial, beautifully-presented accommodation together with g...

Spring Road, Wembury Point, Plymouth

3 Bedroom Detached Bungalow | £695,000

A rare opportunity to acquire this exceptional property situated in a beautiful position with uninterrupted sea views in...

Brixton, Plymouth

6 Bedroom Detached House | £740,000

Located within the South Hams, close to Brixton, is this imposing detached residence offering flexible accommodation and...

Mount Batten, Plymouth

3 Bedroom Townhouse | £800,000

Lord Louis Crescent is an exclusive development of townhouses, occupying an exceptional position, overlooking Plymouth S...

Julian Marks Estate Agents (Plymstock)

2 The Broadway, Plymstock, Plymstock, Devon, PL9 7AW

01752 401128

How much is your home worth?

Use our short form to request a valuation of your property.

Request a Valuation

Mortgage Calculator

Amount Borrowed: £
Total Amount Repayable: £
Total Monthly Payment: £
©2026 The Guild of Property Professionals. All rights reserved. Terms and Conditions | Privacy Policy | Cookie Policy | Complaints Policy | Members Login
The Guild of Property Professionals Trading Address: 121 Park Lane, London W1K 7AG. GPEA Limited. Registered in England & Wales.  Company No: 02819824.  Registered Office Address: 2 St. Stephen's Court, St. Stephen's Road, Bournemouth, Dorset, England, BH2 6LA.  VAT Registration No: 576 8795 61
Book a Property Valuation Update Cookies Preferences