Brixton, Plymouth

£740,000

6 Bedroom Detached House for sale in Plymouth

3 6 3
  • An imposing detached property with annexe accommodation
  • 3 reception rooms
  • Feature kitchen/dining room & utility
  • 5 bedrooms
  • Master ensuite with dressing room, additional ensuite & family bathroom
  • Adjoining 1-bedroom annexe
  • Double garage & ample off-road parking
  • Mature gardens & countryside views
  • Double-glazing & central heating
  • Income potential

Located within the South Hams, close to Brixton, is this imposing detached residence offering flexible accommodation and income potential. It is currently arranged as a 5-bedroom detached property with 3 separate reception room, lovely-sized feature kitchen/dining room, utility, master ensuite, additional ensuite, family bathroom and a 1-bedroom annexe. There is ample off-road parking & a double garage. The property is set within mature grounds offering a lovely position with countryside views.

Highlands, Brixton, Pl8 2Ax -

Summary - Located within the South Hams, close to Brixton, is this imposing detached residence offering flexible accommodation and income potential. It is currently arranged as a 5-bedroom detached property with 3 separate reception room, lovely-sized feature kitchen/dining room, utility, master ensuite, additional ensuite, family bathroom and a 1-bedroom annexe. There is ample off-road parking & a double garage. The property is set within mature grounds offering a lovely position with countryside views.

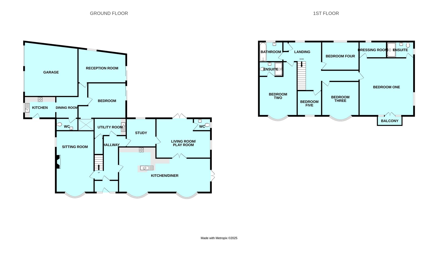
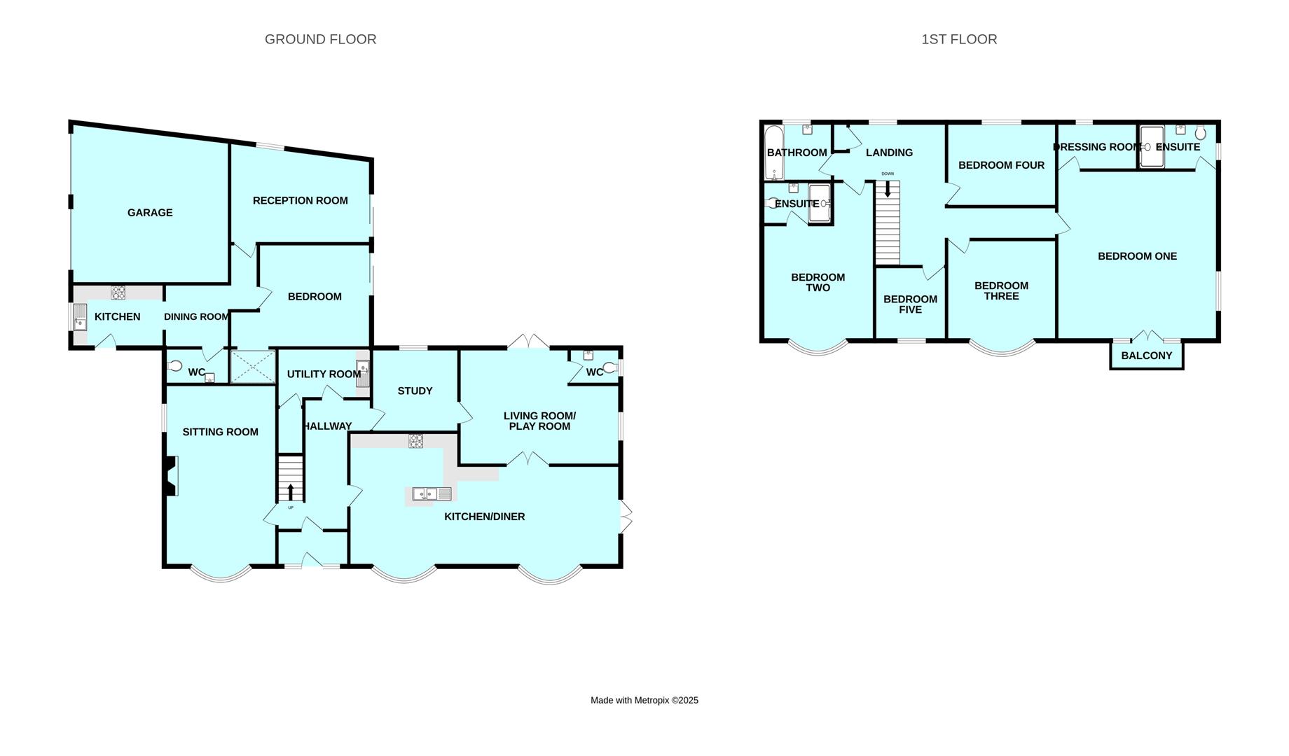
Accommodation - Access to the property is gained via the part uPVC obscured double-glazed entrance door with double-glazed side panels leading into the entrance porch.

Entrance Porch - Step rising into the hall through the wooden part glazed leaded door with matching side panels. Quarry-tiled floor.

Hall - 4.32m x 2.46m (14'2 x 8'1) - Stairs rising to the first floor accommodation. Doors providing access to the ground floor accommodation.

Utility Room - 3.35m x 1.75m (11' x 5'9) - Matching eye-level and base units with work surface. Inset sink unit with mixer tap. Space and plumbing for washing machine. Ample storage. Access to the under-stairs storage cupboard.

Sitting Room - 6.48m into bay x 3.96m (21'3 into bay x 13') - A dual aspect room with a double-glazed window to the side elevation and a double-glazed curved bay window to the front elevation with an outlook across local fields and countryside. Inset feature 'Living Flame' fire.

Kitchen/Dining Room - 10.06m x 4.62m into bay (33' x 15'2 into bay) - Within the kitchen area are a series matching eye-level and base units with solid stone work surfaces and matching up-stands. Inset stainless-steel one-&-a-half bowl single drainer sink unit with a mixer tap. Built-in appliances include a 4-ring induction hob with a canopied extractor hood above, adjacent electric double oven and grill, built-in microwave, integrated fridge, freezer and dishwasher. Vertical radiator. Curved double-glazed bay window to the front elevation with lovely countryside views. Opening leading into the dining area. The dining area is dual aspect, providing a lovely light open space, with a further double-glazed bay window and French-style double doors opening out to a decked area. Solid wood flooring.

Living Room - 5.72m x 4.11m (18'9 x 13'6) - A dual aspect room with a double-glazed window to the side elevation and French-style double doors leading out to a rear decked area. Solid wood flooring. Doorway leading to a separate cloakroom/wc. Connecting door leading into the study.

Downstairs Cloakroom/Wc - 1.96m x 1.30m (6'5 x 4'3) - Fitted with a low level wc and a pedestal wash basin. Solid wood flooring. Half-height panelling to the walls. Obscured double-glazed window to the side elevation.

Study - 3.10m x 3.07m (10'2 x 10'1) - Double-glazed window to the rear elevation. Doorway returning to the hall.

First Floor Landing - 4.62m x 3.53m (15'2 x 11'7) - Providing access to the first floor accommodation. Built-in cupboard with shelving. Loft hatch with a folding wooden loft ladder. Double-glazed window to the rear elevation.

Bedroom One - 5.59m x 5.31m (18'4 x 17'5) - An impressive-sized room with a full-length double-glazed window to the side elevation. French-style double doors with double-glazed slide panels to the front elevation leading onto a small wooden balcony enjoying panoramic countryside views. Doorway leading to the dressing room.

Dressing Room - 2.74m x 1.73m (9' x 5'8) - Range of shelving and storage. Obscured double-glazed window to the rear elevation.

Ensuite Shower Room - 2.69m x 1.70m (8'10 x 5'7) - Comprising a good-sized walk-in shower cubicle with a shower unit with a spray attachment with a rainfall shower head, a pedestal wash basin and a low level toilet. Vertical towel rail/radiator. Tiled floor. Fully-tiled walls. Obscured double-glazed window to the side elevation.

Bedroom Two - Curved double-glazed window to the front elevation. Doorway opening into the ensuite.

Ensuite Shower Room - Comprising a shower cubicle, sink unit and a low level toilet.

Bedroom Three - 3.96m x 3.43m into bay (13' x 11'3 into bay) - Double-glazed bay window to the front elevation with lovely views over the local countryside.

Bedroom Four - 3.99m x 3.07m (13'1 x 10'1) - Double-glazed window to the rear elevation with a lovely outlook onto the local fields.

Bedroom Five - 3.99m x 3.07m (13'1 x 10'1) - Double-glazed window to the front elevation with lovely views over the local countryside.

Bathroom - 2.84m x 1.80m (9'4 x 5'11) - White suite comprising a 'P-shaped' bath with a mixer tap, spray attachment and curved shower screen, low level toilet with a boxed-in cistern and a sink unit with a vanity area and storage cupboards beneath. Tiled floor. Fully-tiled walls. Double-glazed window to the rear elevation.

Little Highlands Annexe - Located to the side of the main residence is an adjoining annexe which has accommodation comprising one reception area, kitchen leading to a dining area, a double bedroom and a wc.

Agent's Note - Please note that at the time of listing that the current vendor enjoys an income from a tenant within the annexe and one room with the main residence.

Outside - Approached via a metal gate, the drive opens up to a good-sized parking area leading to the double garage. The driveway sweeps around to the front of the building, where there is further off-road parking. The grounds consist of a lawned triangular section of garden located at the far side and is enclosed by mature trees and steps lead up to a good-sized decking area to the side and rear of the property providing a seclusion and privacy.

Double Garage -

Council Tax - South Hams District Council
Council tax band F for the main house and council tax band A for the annexe.

Services - The property is connected to mains services: gas, electricity and water. Private drainage.

Location - Located within the South Hams, close to Brixton, is this imposing detached residence offering flexible accommodation and income potential. It is currently arranged as a 5-bedroom detached property with 3 separate reception room, lovely-sized feature kitchen/dining room, utility, master ensuite, additional ensuite, family bathroom and a 1-bedroom annexe. There is ample off-road parking & a double garage. The property is set within mature grounds offering a lovely position with countryside views.

Property Ref: 11002660_34213440

Share:

Similar Properties

Spring Road, Wembury Point, Plymouth

3 Bedroom Detached Bungalow | £695,000

A rare opportunity to acquire this exceptional property situated in a beautiful position with uninterrupted sea views in...

Barbican Court, 54 Vauxhall Street, Plymouth

House | £650,000

Grade II listed bonded warehouse converted into 5 purpose-built apartments each with open-plan living room, kitchen, dou...

Plymstock, Plymouth

5 Bedroom Detached House | Offers Over £650,000

A rare opportunity to acquire this older-style detached house in one of Plymstock's most sought-after locations. The hou...

Mount Batten, Plymouth

3 Bedroom Townhouse | £800,000

Lord Louis Crescent is an exclusive development of townhouses, occupying an exceptional position, overlooking Plymouth S...

Wembury, Plymouth

6 Bedroom Detached House | £895,000

A unique & exceptional once in a lifetime opportunity to acquire The Woodlands- an extended detached property situated i...

Wembury Point, Plymouth

5 Bedroom House | £895,000

A stunning coastal property situated within this highly desirable position enjoying panoramic sea views stretching from...

Julian Marks Estate Agents (Plymstock)

2 The Broadway, Plymstock, Plymstock, Devon, PL9 7AW

01752 401128

How much is your home worth?

Use our short form to request a valuation of your property.

Request a Valuation

Mortgage Calculator

Amount Borrowed: £
Total Amount Repayable: £
Total Monthly Payment: £
©2026 The Guild of Property Professionals. All rights reserved. Terms and Conditions | Privacy Policy | Cookie Policy | Complaints Policy | Members Login
The Guild of Property Professionals Trading Address: 121 Park Lane, London W1K 7AG. GPEA Limited. Registered in England & Wales.  Company No: 02819824.  Registered Office Address: 2 St. Stephen's Court, St. Stephen's Road, Bournemouth, Dorset, England, BH2 6LA.  VAT Registration No: 576 8795 61
Book a Property Valuation Update Cookies Preferences