Wembury, Plymouth

£625,000
SSTC
This property listing is now SSTC

4 Bedroom Detached House for sale in Plymouth

1 4 2
  • Individually-designed detached property
  • Incredible position with lovely views down the valley towards the sea & Mewstone
  • 3 storey contemporary-designed accommodation
  • Entrance porch & hallway
  • Open-plan living room & kitchen & separate utility
  • 4 double bedrooms
  • 2 family shower rooms & master ensuite bathroom
  • South-westerly facing landscaped garden with large decking area & generous driveway
  • Double-glazing & central heating
  • No onward chain

Individually-designed detached property occupying a lovely position in Beach View Crescent enjoying fabulous views towards the sea & the Mewstone. Contemporary accommodation throughout briefly comprising an entrance porch & hallway, large open-plan living room & kitchen with bi-folding doors & fantastic views, separate utility, 4 double bedrooms, 2 family shower rooms & master ensuite bathroom. Generous driveway & landscaped garden with large decking area. Double-glazing & central heating. No onward chain.

Beach View Crescent, Wembury, Pl9 0Hu -

Summary - GUIDE PRICE - ?600,000- ?650,000 Individually-designed detached property occupying a lovely position in Beach View Crescent enjoying fabulous views towards the sea & the Mewstone. Contemporary accommodation throughout briefly comprising an entrance porch & hallway, large open-plan living room & kitchen with bi-folding doors & fantastic views, separate utility, 4 double bedrooms, 2 family shower rooms & master ensuite bathroom. Generous driveway & landscaped garden with large decking area. Double-glazing & central heating. No onward chain.

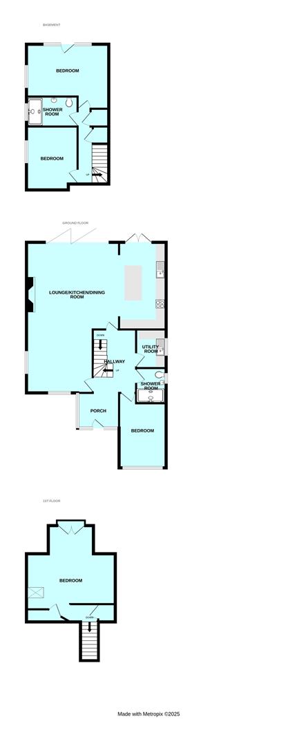
Accommodation -

Entrance Porch - 2.36m x 1.91m (7'9 x 6'3) - uPVC double-glazed entrance porch with full-height windows. Slate floor. Access through to the hallway.

Hallway - 4.24m x 2.13m (13'11 x 7') - Oak flooring. Inset ceiling spotlights. Staircase with hard wood balustrade and glass providing access up and down to the remaining accommodation.

Open-Plan Living Room & Kitchen - 8.64m x 8.13m max dimensions, l-shaped room (28'4 - An open-plan 'L-shaped' room with oak flooring throughout. Triple aspect with windows to the front and side elevations and to the rear, bi-folding doors and patio door providing fabulous views and access to outside. In the lounge area there is a chimney breast and wood burning stove. The kitchen area is fitted with a range of matching units with white gloss fascias and contrasting polished granite work surfaces. Matching island with breakfast bar. Inset stainless-steel one-&-a-half bowl sink unit with a mixer tap. Built-in Bosch double oven and grill. Bosch microwave. Inset Bosch hob with a stainless-steel and glass cooker hood above and a matching glass splash-back. Integral Bosch dishwasher. Integral Bosch full-height fridge. Inset ceiling spotlights.

Utility Room - 2.21m x 1.63m (7'3 x 5'4) - Fitted cabinets. Stainless-steel single drainer sink unit. Space and plumbing for washing machine. Space for freezer. Wall-mounted Vaillant boiler. Oak flooring. Window to the side elevation.

Bedroom Three - 3.96m x 2.74m (13' x 9') - Window to the front elevation. Inset ceiling spotlights. Oak flooring.

Top Floor Landing - Storage cupboard. Oak flooring. Doorway opening into bedroom one.

Bedroom One - 5.00m x 4.47m (16'5 x 14'8) - Oak flooring throughout. French doors to the rear opening onto a glass Juliette-style balcony providing magnificent views down the valley towards the sea and the Mewstone. Additional Velux-style skylights to the side elevation. Inset ceiling spotlights. Eaves storage. Doorway opening into the ensuite bathroom.

Ensuite Bathroom - 2.46m x 2.36m (8'1 x 7'9) - Comprising a bath with a mixer tap shower attachment, basin with cabinet beneath and wc. Chrome towel rail/radiator. Mirror. Partly-tiled walls. Tiled floor. Velux-style skylight to the front elevation.

Lower Landing - Providing access to the remaining accommodation. Under-stairs storage cupboards.

Bedroom Two - 4.85m x 3.68m (15'11 x 12'1) - Large bedroom with oak flooring. Dual aspect with a window to the side elevation and full-height windows and door to the rear opening to outside. Inset ceiling spotlights.

Bedroom Four - 3.61m x 2.77m (11'10 x 9'1) - Window to the side elevation. Cupboard housing the consumer unit. Oak flooring. Inset ceiling spotlighting.

Shower Room - 2.59m x 1.75m (8'6 x 5'9) - Comprising a large walk-in shower with fixed glass screen and an additional rinsing attachment, basin with a mirrored cabinet above and wc. Chrome towel rail/radiator. Fully-tiled walls. Tiled floor. Inset ceiling spotlights. Obscured window to the side elevation.

Outside - To the front a gravel driveway provides plentiful off-road parking. Gardens to the side and rear elevations laid to patio and lawn and enclosed by hedging. To the side, set onto a patio, is a large shed with power, gas and water, which could be utilised to provide further accommodation, if required, subject to consent. To the rear there is a sheltered patio area with an outside shower and outside light. A large decking area with glass and stainless-steel balustrades provides an excellent outside entertainment area with outside lighting and has fantastic views to the sea and Mewstone. There is pedestrian access onto Church Road which in turn leads down to the beach.

Council Tax - South Hams District Council
Council tax band E

Services - The property is connected to all the mains services: gas, electricity, water and drainage.

Wembury - Wembury is a sought-after coastal village with a vibrant community situated in the west of the South Hams between the Yealm Estuary and Plymouth Sound within the South Devon area of outstanding natural beauty. Wembury has a beach, well-known for its excellent surfing and rock pooling, which is on the South West Coast Path, as are the riding stables. Close-by is Mount Batten which has a marina and watersports centre. Within Wembury there is a pub and church together with local shop, beauty salons and a sought-after primary school. More comprehensive shopping facilities can be found in Plymstock which is a short drive away from Plymouth city centre with a rail link to London Paddington. There is also a local golf course at Staddon Heights.

Property Ref: 33965595

Share:

Similar Properties

Plymstock, Plymouth

4 Bedroom House | £625,000

Superbly-presented executive style detached house positioned in a tucked-away location in this highly sought-after cul-d...

Plymstock, Plymouth

5 Bedroom Detached House | £600,000

An individual detached property which has been developed by the current owner into a fabulous versatile home with beauti...

Wembury, Plymouth

5 Bedroom Detached House | Offers Over £600,000

A stunning opportunity to acquire this substantial detached property set within a generous plot & enjoying sea views inc...

Barbican Court, 54 Vauxhall Street, Plymouth

House | £650,000

Grade II listed bonded warehouse converted into 5 purpose-built apartments each with open-plan living room, kitchen, dou...

Plymstock, Plymouth

5 Bedroom Detached House | Offers Over £650,000

A rare opportunity to acquire this older-style detached house in one of Plymstock's most sought-after locations. The hou...

Plymstock, Plymouth

4 Bedroom Semi-Detached House | £650,000

Superbly-positioned period semi-detached house offering substantial, beautifully-presented accommodation together with g...

Julian Marks Estate Agents (Plymstock)

2 The Broadway, Plymstock, Plymstock, Devon, PL9 7AW

01752 401128

How much is your home worth?

Use our short form to request a valuation of your property.

Request a Valuation

Mortgage Calculator

Amount Borrowed: £
Total Amount Repayable: £
Total Monthly Payment: £
©2026 The Guild of Property Professionals. All rights reserved. Terms and Conditions | Privacy Policy | Cookie Policy | Complaints Policy | Members Login
The Guild of Property Professionals Trading Address: 121 Park Lane, London W1K 7AG. GPEA Limited. Registered in England & Wales.  Company No: 02819824.  Registered Office Address: 2 St. Stephen's Court, St. Stephen's Road, Bournemouth, Dorset, England, BH2 6LA.  VAT Registration No: 576 8795 61
Book a Property Valuation Update Cookies Preferences