Wembury, Plymouth

Offers Over
£600,000
SSTC
This property listing is now SSTC

5 Bedroom Detached House for sale in Plymouth

2 5 2
  • Extended detached house
  • In a stunning position with sea views
  • Entrance porch & hallway
  • Triple aspect lounge & separate dining room
  • Kitchen & separate utility with integral access to the garage
  • Downstairs cloakroom/wc
  • 5 double bedrooms
  • Family bathroom & master ensuite shower room
  • Front, rear & side gardens & driveway
  • Double-glazing & central heating

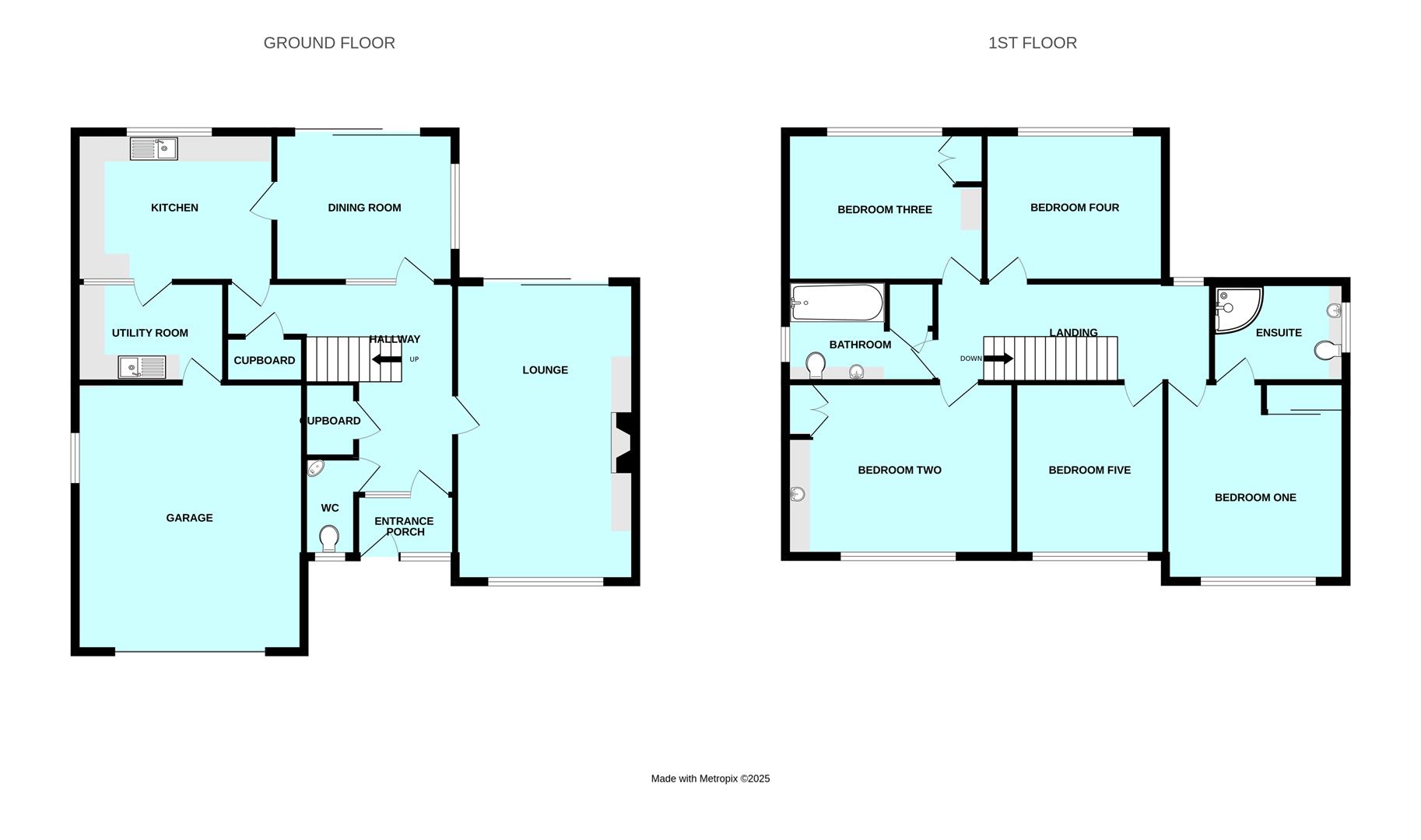
A stunning opportunity to acquire this substantial detached property set within a generous plot & enjoying sea views incorporating the Mewstone. The accommodation briefly comprises an entrance porch, hallway with downstairs cloakroom/wc, triple aspect lounge with a separate dining room, kitchen with a separate utility providing integral access to the double garage. On the first floor there are 5 double bedrooms, family bathroom and master ensuite shower. Generous loft space. Front, side and rear gardens. Brick-paved driveway. Double-glazing & central heating.

St Werburgh Close, Wembury, Pl9 0Ap -

Summary - A stunning opportunity to acquire this substantial detached property set within a generous plot & enjoying sea views incorporating the Mewstone. The accommodation briefly comprises an entrance porch, hallway with downstairs cloakroom/wc, triple aspect lounge with a separate dining room, kitchen with a separate utility providing integral access to the double garage. On the first floor there are 5 double bedrooms, family bathroom and master ensuite shower. Generous loft space. Front, side and rear gardens. Brick-paved driveway. Double-glazing & central heating.

Accommodation - Front door with a matching window to the side opening into the entrance porch.

Entrance Porch - 1.78m x 1.40m (5'10 x 4'7) - Further glazed doorway with a panel to side opening into the hallway.

Hallway - 4.52m x 4.04m max dimensions (14'10 x 13'3 max dim - Providing access to the ground floor accommodation. Staircase ascending to the first floor. Open-plan area beneath the stairs. Larder cupboard with shelving. Separate recessed cloak cupboard fitted with hanging rail and shelving.

Lounge - 6.12m x 3.61m (20'1 x 11'10) - A triple aspect room with windows to the front and side elevations and sliding patio doors to the rear elevation opening onto the garden. Stone-built fireplace with a plinth to side and an open grate.

Dining Room - 3.63m x 3.07m (11'11 x 10'1) - A dual aspect room with a window to the side elevation and sliding double-glazed doors to the rear opening onto the garden.

Kitchen - 3.94m x 3.05m (12'11 x 10') - Fitted with a range of base and wall-mounted cabinets with matching fascias, work surfaces and tiled splash-backs. Stainless-steel one-&-a-half bowl single drainer sink unit. Built-in NEFF double oven and grill. SMEG hob with a cooker hood. Integral BOSCH dishwasher. Integral fridge. Window to the rear elevation. Doorway accessing the utility room.

Utility Room - 3.02m x 1.83m (9'11 x 6') - Matching cabinets and work surface with a tiled splash-back. Space for washing machine and tumble dryer. Floor-mounted boiler. Coat hooks. Window to the side elevation. Doorway providing integral access to the garage.

Downstairs Cloakroom/Wc - 2.06m x 0.89m (6'9 x 2'11) - Comprising a wc and basin with a cupboard beneath. Wall-mounted mirror. Chrome towel rail/radiator. Fully-tiled walls. Panel ceiling with inset ceiling spotlights. Obscured window to the front elevation.

First Floor Landing - 5.56m x 1.85m incl stairs (18'3 x 6'1 incl stairs) - Providing access to the first floor accommodation. Loft hatch. Window to the rear elevation.

Loft - 10.62m x 8.61m (34'10 x 28'3) - A useful loft space accessed via fold-down wooden ladder. The loft has boarding and ample space for hobbies and storage. Power and lighting. Window in the gable providing lovely sea views. Additional window to the side elevation.

Bedroom One - 4.11m x 3.63m (13'6 x 11'11) - Window to the front elevation with fabulous countryside and sea views. Built-in wardrobes. Doorway opening into the ensuite shower room.

Ensuite Shower Room - 2.57m x 1.80m (8'5 x 5'11) - A refurbished ensuite shower room comprising a large walk-in tiled shower, wc and a basin set onto a cabinet. Chrome towel rail/radiator. Obscured window to the side elevation.

Bedroom Two - 4.57m x 3.35m (15' x 11') - Window to the front elevation with lovely sea and countryside views. Built-in wardrobes and drawer storage together with a vanity basin.

Bedroom Three - 3.99m x 3.10m (13'1 x 10'2) - Window to the rear elevation. Built-in wardrobe and drawer storage.

Bedroom Four - 3.61m x 3.07m (11'10 x 10'1) - Window to the rear elevation.

Bedroom Five - 3.40m x 3.00m (11'2 x 9'10) - Currently used as an office. Window to the front elevation with lovely countryside and sea views.

Family Bathroom - 3.05m x 1.88m (10' x 6'2) - Comprising a bath with a shower system over, wc and basin set into a cabinet providing storage and concealing the cistern. Wall-mounted mirror with lighting above. Airing cupboard with slatted shelving and housing the hot water cylinder. Fully-tiled walls. Obscured window to the side elevation.

Integral Double Garage - 5.38m x 4.88m (17'8 x 16') - Double-sized remote up-&-over door to the front elevation. Power and lighting. Consumer unit. Window to the side elevation.

Outside - To the front a brick-paved driveway provides access to the garage and the main front entrance. The garden to the front is laid to lawn together with shrubs. Pathways lead around both side elevations of the house accessing the side and rear gardens. The gardens to the side and rear are mainly laid to lawn plus mature shrubs and small trees. There is a paved patio area adjacent to the property and a timber summerhouse.

Council Tax - South Hams District Council
Council tax band F

Wembury - Wembury is a sought-after coastal village with a vibrant community situated in the west of the South Hams between the Yealm Estuary and Plymouth Sound within the South Devon area of outstanding natural beauty. Wembury has a beach, well-known for its excellent surfing and rock pooling, which is on the South West Coast Path, as are the riding stables. Close-by is Mount Batten which has a marina and watersports centre. Within Wembury there is a pub and church together with local shop, beauty salons and a sought-after primary school. More comprehensive shopping facilities can be found in Plymstock which is a short drive away from Plymouth city centre with a rail link to London Paddington. There is also a local golf course at Staddon Heights.

Property Ref: 11002660_34331887

Share:

Similar Properties

Plymstock, Plymouth

5 Bedroom Detached House | £600,000

An individual detached property which has been developed by the current owner into a fabulous versatile home with beauti...

Turnchapel, Plymouth

4 Bedroom House | £595,000

Superb opportunity to acquire this waterside property in a lovely location on the outskirts of Turnchapel. There are fan...

Mount Batten, Plymouth

5 Bedroom Detached House | £565,000

Extended detached property located within the ever popular Mount Batten area & conveniently located for the Cattewater &...

Elburton, Plymouth

4 Bedroom Detached House | £625,000

Superb opportunity to acquire this executive-style detached house situated in this highly popular enclave of properties...

Barbican Court, 54 Vauxhall Street, Plymouth

House | £650,000

Grade II listed bonded warehouse converted into 5 purpose-built apartments each with open-plan living room, kitchen, dou...

Plymstock, Plymouth

5 Bedroom Detached House | Offers Over £650,000

A rare opportunity to acquire this older-style detached house in one of Plymstock's most sought-after locations. The hou...

Julian Marks Estate Agents (Plymstock)

2 The Broadway, Plymstock, Plymstock, Devon, PL9 7AW

01752 401128

How much is your home worth?

Use our short form to request a valuation of your property.

Request a Valuation

Mortgage Calculator

Amount Borrowed: £
Total Amount Repayable: £
Total Monthly Payment: £
©2026 The Guild of Property Professionals. All rights reserved. Terms and Conditions | Privacy Policy | Cookie Policy | Complaints Policy | Members Login
The Guild of Property Professionals Trading Address: 121 Park Lane, London W1K 7AG. GPEA Limited. Registered in England & Wales.  Company No: 02819824.  Registered Office Address: 2 St. Stephen's Court, St. Stephen's Road, Bournemouth, Dorset, England, BH2 6LA.  VAT Registration No: 576 8795 61
Book a Property Valuation Update Cookies Preferences