Elburton, Plymouth

Guide Price
£500,000
SSTC
This property listing is now SSTC

4 Bedroom Detached House for sale in Plymouth

3 4 1
  • 1930s detached house with large private gardens & fabulous views
  • Many character features
  • Conservatory
  • Entrance hall & downstairs cloakroom
  • Sitting room & formal dining room
  • Kitchen/breakfast room & study with annexe potential
  • 4 bedrooms, bathroom & separate wc
  • Long garage
  • Ample parking
  • Double-glazing & gas central heating

A rare opportunity to acquire this 1930s detached family home set in large gardens with far-reaching views. Many character features and accommodation comprising conservatory, entrance hall, sitting room, dining room, study with annexe potential, kitchen/breakfast room, downstairs cloakroom/wc, 4 bedrooms, bathroom & separate wc. Long garage. Double-glazing & gas central heating. No onward chain.

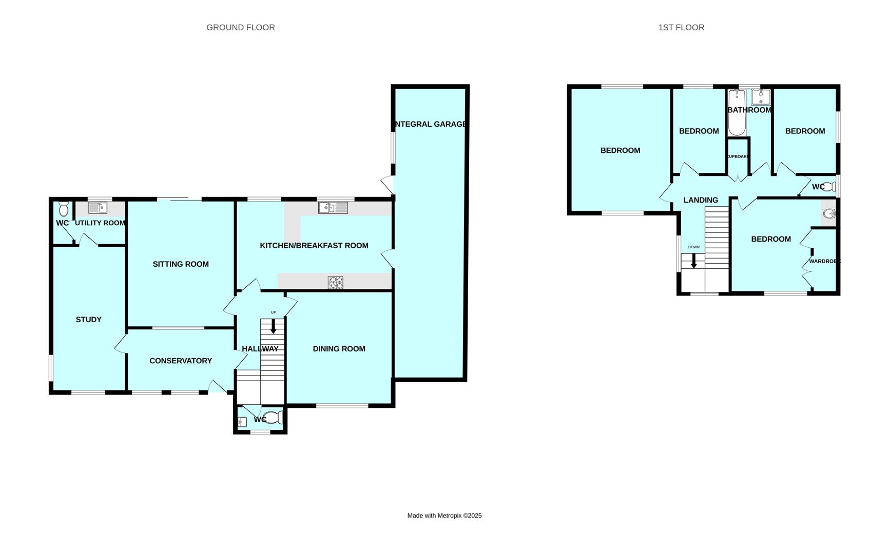
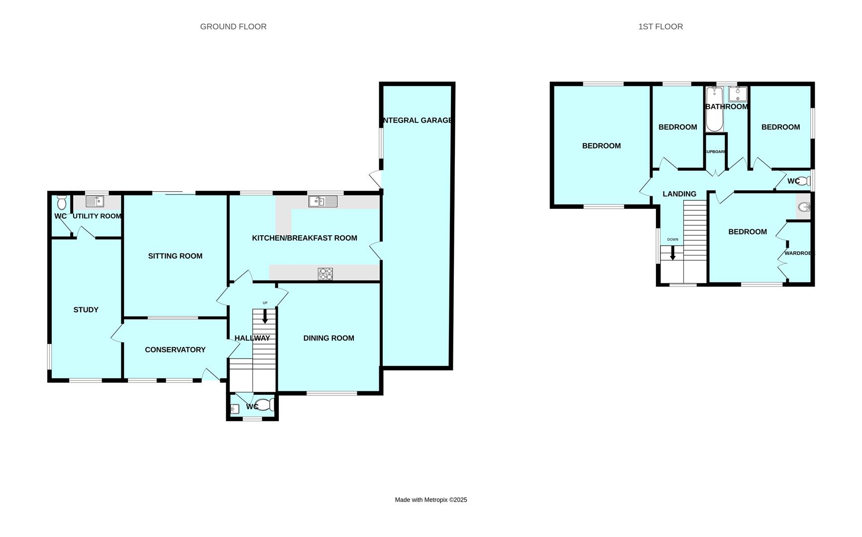
Coltness Road, Elburton, Plymouth Pl9 8Ha - Accommodation - Front door opens into the conservatory.

Conservatory - 13' 10" x 7' 4" (4.22m x 2.24m) - Quarry-tiled floor. Double-glazed windows to the front elevation. Pitched glazed roof. Original door, with stained leaded glass, opening to the entrance hall. A separate door opens into the study.

Entrance Hall - 10' 8" x 7' 5" (3.25m x 2.26m) - Provides access to the accommodation. Coved ceiling. Picture rail. Staircase with a cupboard beneath ascends to the first floor. Original doors provide access to the accommodation.

Sitting Room - 16' 2" x 13' 11" (4.93m x 4.24m) - Dual aspect room with original timber single-glazed window to the front elevation with leaded stained glass looking into the conservatory. To the rear there are sliding uPVC double-glazed patio doors which overlook the garden and provide far-reaching views beyond. Fireplace with a polished marble inset and hearth, mahogany surround and fitted gas fire. Coved ceiling.

Dining Room - 14' 10" x 13' 11" (4.52m x 4.24m) - A spacious formal dining room with a double-glazed window to the front and side elevations. Coved ceiling. Serving hatch through to the kitchen/breakfast room.

Kitchen/Breakfast Room - 25' 2" x 11' 11" (7.67m x 3.63m) - A spacious open plan room with 2 uPVC double-glazed windows to the rear overlooking the garden. Ample space for breakfast table and chairs. The kitchen is fitted with a range of matching base and wall-mounted cabinets with solid oak fascias, work surfaces and tiled splash-backs. Built-in Neff dual oven and grill. Separate inset hob, microwave and stainless-steel one-&-a-half bowl single-drainer sink unit. Space and plumbing for dishwasher. Space for free-standing fridge/freezer. Tiled floor. Obscured double-glazed door providing integral access to the garage. Double doors opening into a utility cupboard which has space and plumbing for a washing machine and space for a further free-standing appliance. Shelf. Matching tiled floor.

Study - 19' 0" x 9' 5" (5.79m x 2.87m) - A spacious dual aspect reception room with potential to be used as an annexe. 2 uPVC double-glazed windows and fitted vertical blinds. Vaulted ceiling with inset spotlighting. Doorway opens into a utility area.

Utility Area - 9' 9" x 5' 4" (2.97m x 1.63m) - Stainless-steel single-drainer sink unit with storage cupboard beneath. Loft hatch. Double-glazed window overlooking the garden and beyond. A doorway opens into the wc which has a white low-level flush system.

Cloakroom/Wc - Fitted with a wc and matching wall-mounted basin with a tiled splash-back. uPVC obscured double-glazed window to the front elevation.

First Floor Landing - 16' 1" x 8' 6" (4.9m x 2.59m) - Provides a spacious approach to the first floor accommodation. Picture rail. Double-glazed windows to 2 elevations.

Bedroom One - 16' 2" x 12' 10" (4.93m x 3.91m) - A dual aspect room with a double-glazed window to the front elevation and a uPVC double-glazed window to the rear which provides fabulous views over the surrounding area towards Dartmoor. The room is comprehensively-fitted with a range of built-in furniture including wardrobes, cupboards, dressing table, bedside cabinets and vanity basin with inset lighting above. Fitted fully-tiled shower cubicle with an electric shower system.

Bedroom Two - 13' 6" x 12' 5" (4.11m x 3.78m) - Double-glazed window to the front elevation. Picture rail. Range of built-in wardrobes and drawer units, dressing table and basin with tiled surround, mirror, light and shaver point.

Bedroom Three - 10' 7" x 8' 6" (3.23m x 2.59m) - uPVC double-glazed window to the side elevation with fabulous views towards Dartmoor. Large attic hatch with a pull-down ladder.

Bedroom Four - 10' 8" x 7' 8" (3.25m x 2.34m) - uPVC double-glazed window to the rear elevation with views. Picture rail.

Bathroom - 10' 6" x 5' 9" (3.2m x 1.75m) - A period suite in green featuring bath with large square basin and matching splash-back. Over the bath is a Mira shower system, shower rail and curtain. Medicine cabinet. Period tiling to the walls. uPVC obscured double-glazed window to the rear elevation.

Separate Wc - Featuring a matching low-level flush system. Period tiling. Obscured double-glazed window to the side elevation.

Loft - The loft is boarded with lighting and provides a useful storage area.

Garage - 38' 0" x 9' 4" (11.58m x 2.84m) maximum - A tandem-length double garage with an up-and-over door to the front elevation. uPVC double-glazed windows to either side. Obscured double-glazed door leading to the rear garden. Pitched roof. Power and lighting. Mains water.

Cellar - A useful sub-floor storage area with lighting.

Outside - The house is approached by both a driveway and a separate pedestrian entrance with wrought iron gates. The driveway runs along the front elevation and is laid to natural stone paving with a variety of well-stocked shrub beds to the front and side elevations, together with a mature copper beech tree. Outside lighting. A generous pathway leads around the side of house accessing the rear. The rear garden is extensive and has a beautiful view towards Dartmoor. The gardens are laid to lawn, bordered by paving, shrub and flower beds. Good-quality timber shed and a greenhouse. Patio areas and pond. Outside lighting.

Council Tax - Plymouth City Council
Council tax band F

Services - The property is connected to all the mains services: gas, electricity, water and drainage.

Property Ref: 11002660_34357445

Share:

Similar Properties

Sherford, Plymouth

6 Bedroom Townhouse | Offers in excess of £500,000

Spend time in viewing this impressive-sized detached 3-storey residence. It is being sold with no onward chain & has spa...

Plymstock, Plymouth

4 Bedroom Detached House | Offers in excess of £500,000

Superbly-presented extended detached family home in a lovely tucked-away position within this popular development. The p...

Elburton, Plymouth

3 Bedroom Detached House | £500,000

Beautifully-presented individual property in a highly sought-after location within Elburton, close to the village & othe...

Brixton, Plymouth

5 Bedroom Semi-Detached House | £525,000

Superbly-presented extended semi-detached house situated in this quiet tucked away village within the South Hams country...

Heybrook Bay, Plymouth

2 Bedroom Detached Bungalow | £525,000

Superb detached property in a highly sought-after location enjoying fantastic views over Plymouth Sound. The accommodati...

Plymstock, Plymouth

4 Bedroom Detached House | £529,950

Superbly-presented detached family home situated in this highly desirable location within central Plymstock. The propert...

Julian Marks Estate Agents (Plymstock)

2 The Broadway, Plymstock, Plymstock, Devon, PL9 7AW

01752 401128

How much is your home worth?

Use our short form to request a valuation of your property.

Request a Valuation

Mortgage Calculator

Amount Borrowed: £
Total Amount Repayable: £
Total Monthly Payment: £
©2026 The Guild of Property Professionals. All rights reserved. Terms and Conditions | Privacy Policy | Cookie Policy | Complaints Policy | Members Login
The Guild of Property Professionals Trading Address: 121 Park Lane, London W1K 7AG. GPEA Limited. Registered in England & Wales.  Company No: 02819824.  Registered Office Address: 2 St. Stephen's Court, St. Stephen's Road, Bournemouth, Dorset, England, BH2 6LA.  VAT Registration No: 576 8795 61
Book a Property Valuation Update Cookies Preferences