Brixton, Plymouth

£525,000
SSTC
This property listing is now SSTC

5 Bedroom Semi-Detached House for sale in Plymouth

3 5 2
  • Extended semi-detached house
  • Highly sought-after location in a quiet tucked away position within Brixton
  • Superbly-presented accommodation throughout
  • Entrance hall
  • Beautifully-fitted kitchen/breakfast room
  • Dining room plus additional family room & a separate formal lounge
  • 5 first floor bedrooms including a top floor master suite with walk-in wardrobe & ensuite
  • Family bathroom
  • Gates gravelled driveway, garage for storage & gardens
  • Double-glazing & central heating

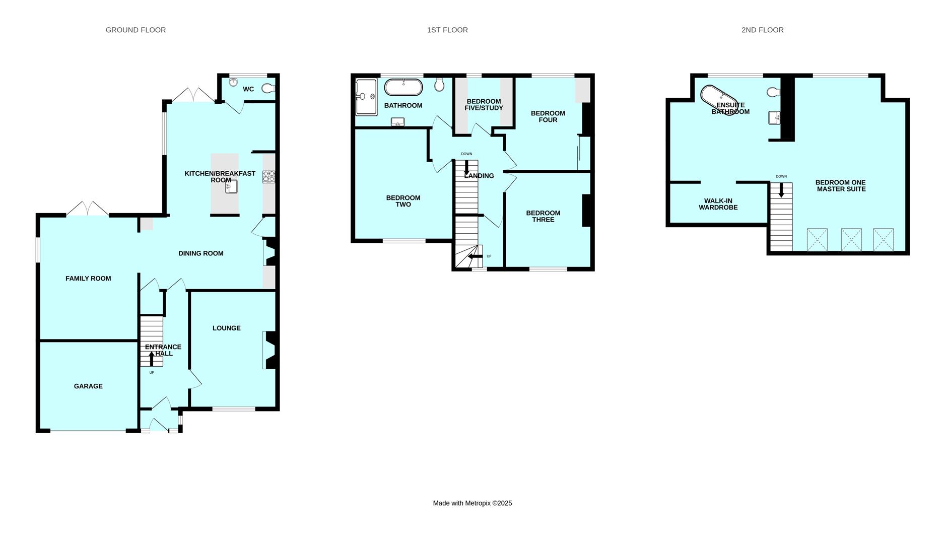
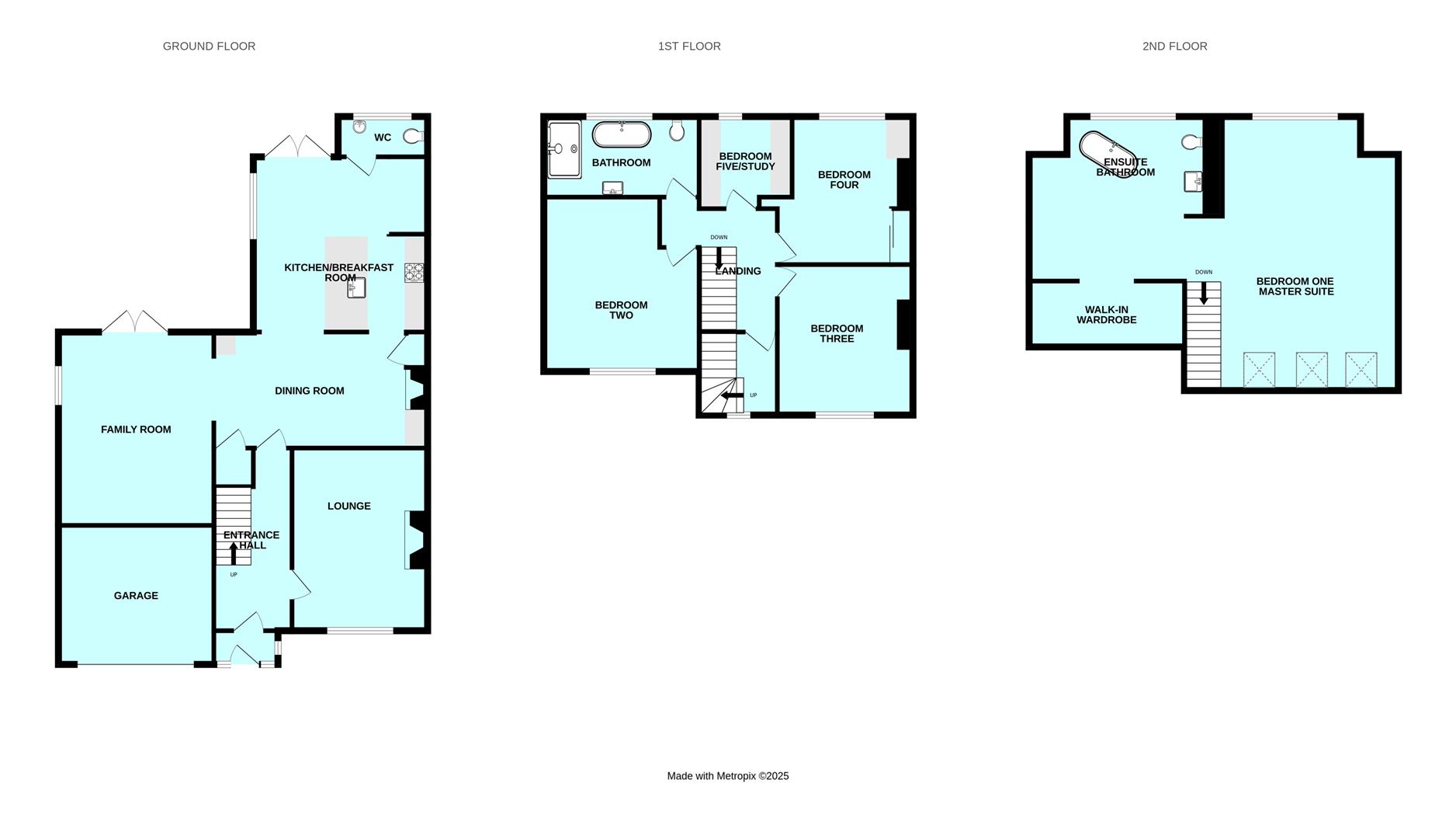
Superbly-presented extended semi-detached house situated in this quiet tucked away village within the South Hams countryside. The accommodation briefly comprises an entrance hall, formal lounge, additional family room plus separate dining room with wood burner and a beautifully-fitted kitchen-breakfast room with downstairs cloakroom/wc. On the first floor there are 4 bedrooms and a bathroom, whilst on the top floor there is a beautiful incredibly spacious master suite with lovely views and includes an ensuite bathroom and walk-in wardrobe. To the front there is a gated gravelled driveway plus a garage for storage together with level gardens to the rear. Double-glazing & central heating.

Cross Park, Brixton, Pl8 2By -

Summary - Superbly-presented extended semi-detached house situated in this quiet tucked away village within the South Hams countryside. The accommodation briefly comprises an entrance hall, formal lounge, additional family room plus separate dining room with wood burner and a beautifully-fitted kitchen-breakfast room with downstairs cloakroom/wc. On the first floor there are 4 bedrooms and a bathroom, whilst on the top floor there is a beautiful incredibly spacious master suite with lovely views and includes an ensuite bathroom and walk-in wardrobe. To the front there is a gated gravelled driveway plus a garage for storage together with level gardens to the rear. Double-glazing & central heating.

Accommodation - Front door opening into the entrance porch.

Entrance Porch - Leading through into the hallway.

Hallway - 4.70m x 1.68m (15'5 x 5'6) - Providing access to the ground floor accommodation. Staircase ascending to the first floor.

Lounge - 4.67m x 3.48m (15'4 x 11'5) - Window with fitted blind to the front elevation. Chimney breast with fireplace with an open grate.

Dining Room - 5.31m x 3.00m (17'5 x 9'10) - Ample space for dining table and chairs. Chimney breast with wood burner and storage either side. Open-plan access through into the remaining ground floor accommodation.

Family Room - 5.03m x 3.86m (16'6 x 12'8) - A useful reception room. Inset ceiling spotlights. Window with fitted blinds to the side elevation. French doors with fitted blind to the rear overlooking the garden.

Kitchen/Breakfast Room - 5.31m x 4.45m (17'5 x 14'7) - Superbly-fitted with a range of a contrasting cabinets finished beneath polished hard wood work surfaces. Belfast-style sink with a work-top mounted mixer tap. Inset Bosch hob with a Baumatic circular extractor above. Built-in double oven and grill. Separate NEFF microwave. Integral dishwasher. Space for an American-style fridge-freezer. Space and plumbing for a washing machine. 4 feature skylights. Inset ceiling spotlights. Window to the side elevation. French doors to the rear overlooking the garden.

Downstairs Cloakroom/Wc - Fitted with a wc and a basin with storage beneath. Wall-mounted storage cupboard. Wall-mounted shoe storage cupboard. Window to the rear elevation overlooking the garden.

First Floor Landing - Providing access to the first floor accommodation. Staircase ascending to the top floor.

Bedroom Two - 4.55m x 3.86m (14'11 x 12'8) - Window with fitted blind to the front elevation providing fabulous views towards the South Hams countryside including the River Yealm.

Bedroom Three - 3.81m x 3.48m (12'6 x 11'5) - Window with fitted blind to the front elevation providing fabulous views towards the South Hams countryside including the River Yealm. Chimney breast with inset cast fireplace and a timber surround.

Bedroom Four - 3.86m x 3.51m (12'8 x 11'6) - Window to the rear elevation overlooking the garden and the countryside beyond. Chimney breast with cast fireplace and built-in storage either side.

Bedroom Five/Study - 2.29m x 2.29m (7'6 x 7'6) - Window to the rear elevation overlooking the garden. Range of built-in cabinets and desks. Inset ceiling spotlights.

Bathroom - 3.84m x 2.11m (12'7 x 6'11) - Comprising a claw and ball-footed roll-top bath, large walk-in tiled shower with a fixed glass screen, basin with storage beneath and wc with a concealed cistern and a push-button flush. Partly-panelled walls. Window with fitted blinds to the rear elevation overlooking the garden and the countryside beyond and distant views to Dartmoor. Inset ceiling spotlights.

Bedroom One Master Suite - 8.97m x 7.09m (29'5 x 23'3) - A beautiful open-plan master suite occupying the entire top floor of the property. The room is dual aspect with dormer windows to the rear elevation plus 3 Velux windows to the front, with incredible views from both elevations. There are views towards Dartmoor and views over the South Hams countryside incorporating the River Yealm from the front. Powered Velux-style skylight. High ceilings with inset ceilings spotlights. Walk-in wardrobe with fitted hanging rails. Eaves access.

Ensuite Bathroom - Comprising a free-standing bath with a floor-mounted mixer tap, wc with a concealed cistern and push-button flush and a basin with drawer storage beneath. Chrome towel rail/radiator. Polished stone-tiled floor.

Garage - 3.96m x 3.89m (13' x 12'9) - Remote door to the front elevation.

Outside - Gates opening onto the drive, which is laid to chippings. Beside the drive, the garden is laid to lawn with bordering shrubs. The rear garden is also laid to lawn together with various shrubs, composite deck, timber shed, outside lighting and power points.

Council Tax - South Hams District Council
Council tax band C

Location - Brixton is a charming village situated in the South Hams, just five miles east of the historic city of Plymouth. The village is an excellent base for exploring the beautiful coast and countryside of South Devon, and is close to the stunning wilderness and pretty villages of the Dartmoor National Park. The lovely sandy beaches at Wembury are some three miles away, whilst the delightful waterside villages of Noss Mayo and Newton Ferrers are around ten minutes' drive. The village itself has good local amenities including the two-hundred-year-old St Mary's Church along with St Mary's primary school. There is also a well-frequented inn, and fish and chip shop, as well as an award-winning farm shop just two miles away.
The village has some very pretty views across the river Yealm, with all its facilities for sailing and boating and the vibrant city of Plymouth with its historic Barbican district is an easy twenty-minute drive direct on the A379.

Property Ref: 11002660_34319628

Share:

Similar Properties

Heybrook Bay, Plymouth

2 Bedroom Detached Bungalow | £525,000

Superb detached property in a highly sought-after location enjoying fantastic views over Plymouth Sound. The accommodati...

Sherford, Plymouth

6 Bedroom Townhouse | Offers in excess of £500,000

Spend time in viewing this impressive-sized detached 3-storey residence. It is being sold with no onward chain & has spa...

Sherford, Plymouth

5 Bedroom End of Terrace House | Offers in excess of £500,000

Superbly-presented brick-faced end-terraced townhouse with feature high ceilings situated in a lovely position within Sh...

Plymstock, Plymouth

4 Bedroom Detached House | £529,950

Superbly-presented detached family home situated in this highly desirable location within central Plymstock. The propert...

Wembury, Plymouth

4 Bedroom House | Offers Over £540,000

Superbly-presented detached house situated in the highly sought-after coastal village of Wembury. The accommodation brie...

Heybrook Bay, Plymouth

3 Bedroom Detached Bungalow | £550,000

Superbly-positioned detached bungalow which has been developed by the current owners into a beautiful home with spacious...

Julian Marks Estate Agents (Plymstock)

2 The Broadway, Plymstock, Plymstock, Devon, PL9 7AW

01752 401128

How much is your home worth?

Use our short form to request a valuation of your property.

Request a Valuation

Mortgage Calculator

Amount Borrowed: £
Total Amount Repayable: £
Total Monthly Payment: £
©2025 The Guild of Property Professionals. All rights reserved. Terms and Conditions | Privacy Policy | Cookie Policy | Complaints Policy | Members Login
The Guild of Property Professionals Trading Address: 121 Park Lane, London W1K 7AG. GPEA Limited. Registered in England & Wales.  Company No: 02819824.  Registered Office Address: 2 St. Stephen's Court, St. Stephen's Road, Bournemouth, Dorset, England, BH2 6LA.  VAT Registration No: 576 8795 61
Book a Property Valuation Update Cookies Preferences