Elburton, Plymouth

£500,000
SSTC
This property listing is now SSTC

3 Bedroom Detached House for sale in Plymouth

1 3 3
  • Individual detached house
  • Superbly-presented throughout
  • Entrance porch
  • Open-plan living space comprising a lounge & kitchen/dining room
  • Feature vaulted ceilings & first floor galleried landing
  • Downstairs shower room, family shower & ensuite shower room
  • 3 double bedrooms & office
  • Integral garage with utility area & plentiful off-road parking
  • Landscaped gardens & garden room/cabin
  • Double-glazing, under-floor ground floor heating & gas central heating

Beautifully-presented individual property in a highly sought-after location within Elburton, close to the village & other local amenities. The accommodation briefly comprises an entrance porch, lounge with feature vaulted ceiling, open-plan kitchen/dining room leading onto the garden, downstairs shower room & an integral garage with a utility area. On the first floor a galleried landing provides access to 3 double bedrooms, an office, family shower & master ensuite shower room. Paved driveway to the front & landscaped gardens to the rear, including a detached garden room/cabin. Double-glazing & central heating.

Netton Close, Elburton, Pl9 8Ul -

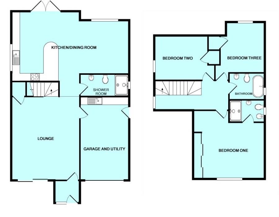
Accommodation - Front door opening into the entrance porch.

Entrance Porch - Oak flooring. Glazed door opening into the lounge.

Lounge - 5.64 x 4.70 (18'6" x 15'5") - Staircase with a hard wood rails and glass balustrade ascending to the first floor. Under-stairs storage cupboard. Wall-mounted flame-effect electric fire. Oak flooring. Feature vaulted ceiling with remote Velux skylight. Sliding patio doors with fitted shutters to the front elevation.

Kitchen/Dining Room - 7.85 x 4.78 (25'9" x 15'8") - An open-plan room running the full-width of the property. Ample space for dining table and chairs. Range of kitchen cabinets with matching fascias and polished granite work surfaces, including a breakfast bar. Inset stainless-steel one-&-a-half bowl sink unit with a Quooker mixer tap providing boiling hot water and sparkling water. Built-in NEFF double oven and grill. NEFF combination microwave oven. NEFF induction hob with a glass splash-back and a stainless-steel NEFF cooker hood. Built-in Siemens dishwasher. Full-height fridge. Under work-top integral freezer. Oak flooring. Part vaulted ceiling with remote Velux skylights. Patio doors to the rear elevation opening onto the garden. Additional window overlooking the garden.

Downstairs Shower Room - 3.02 x 1.47 (9'10" x 4'9") - Comprising a fitted shower with a curved glass screen, wall-mounted basin and wc. Chrome towel rail/radiator. Tiled floor. Fully-tiled walls. Inset ceiling spotlights. Obscured window to the side elevation.

First Floor Landing - A superb galleried landing with hard wood hand rails and glass balustrade providing views into the lounge. Window to the side elevation. Access to the first floor accommodation. Timber paddle staircase accessing the office.

Office - Velux window to the rear elevation. Alcove with shelving, behind which is loft access space.

Bedroom One - 5.00 x 4.75 (16'4" x 15'7") - A stunning master bedroom with feature vaulted ceiling. Window with fitted shutters situated within the gable. Range of wardrobes with sliding mirrored doors. Doorway opening into the ensuite shower room.

Ensuite Shower Room - 2.64 x 1.47 (8'7" x 4'9") - Comprising a large walk-in shower with a glass screen, wall-mounted basin, wc and bidet. Chrome towel rail/radiator. Tiled floor. Fully-tiled walls. Inset ceiling spotlights. Obscured window to the side elevation.

Bedroom Two - 3.99 x 3.05 (13'1" x 10'0") - Dual aspect with a window to the side elevation and Velux skylight to the rear elevation. Built-in wardrobe. Vaulted ceiling.

Bedroom Three - 3.73 x 3.38 (12'2" x 11'1") - Vaulted ceiling with a Velux skylight to the rear elevation. Built-in wardrobe. Range of built-in drawer units with a matching dressing table.

Family Shower Room - 2.64 x 1.78 (8'7" x 5'10") - Comprising a large walk-in shower with a glass screen, wall-mounted basin and wc. Chrome towel rail/radiator. Tiled floor. Fully-tiled walls. Inset ceiling spotlights. Obscured window to the side elevation.

Garage & Utility - 5.92 x 2.97 (19'5" x 9'8") - Remote door to the front elevation. Side access door. Power and lighting. To the rear of the garage, is a utility area with a work surface and tiled splash-back and stainless-steel single drainer sink. Cupboards beneath and above the work surface. Space for washing machine and tumble dryer.

Cabin - A detached garden building which offers an excellent facility including a shed with power and lighting, living room/bedroom with a shower room and wc. Built onto the back of the cabin is a lean-to with open storage.

Outside - To the front, the garden is paved providing plentiful off-road parking. A pathway leads around the side of the house, to the rear. The rear garden has been landscaped with natural stone paving and retained shrub and flower beds. There is a timber pergola and a substantial timber open porch built on to the rear of the property providing a covered area for seating. Outside taps. Outside power points.

Council Tax - Plymouth City Council
Council tax band E

Services - The property is connected to electricity, water and drainage. There is under-floor heating to the ground floor with radiators on the first floor.

Property Ref: 11002660_34239922

Share:

Similar Properties

Sherford, Plymouth

6 Bedroom Townhouse | Offers in excess of £500,000

Spend time in viewing this impressive-sized detached 3-storey residence. It is being sold with no onward chain & has spa...

Sherford, Plymouth

5 Bedroom End of Terrace House | Offers in excess of £500,000

Superbly-presented brick-faced end-terraced townhouse with feature high ceilings situated in a lovely position within Sh...

Plymstock, Plymouth

4 Bedroom Detached House | Offers in excess of £500,000

Superbly-presented extended detached family home in a lovely tucked-away position within this popular development. The p...

Brixton, Plymouth

5 Bedroom Semi-Detached House | £525,000

Superbly-presented extended semi-detached house situated in this quiet tucked away village within the South Hams country...

Heybrook Bay, Plymouth

2 Bedroom Detached Bungalow | £525,000

Superb detached property in a highly sought-after location enjoying fantastic views over Plymouth Sound. The accommodati...

Plymstock, Plymouth

4 Bedroom Detached House | £529,950

Superbly-presented detached family home situated in this highly desirable location within central Plymstock. The propert...

Julian Marks Estate Agents (Plymstock)

2 The Broadway, Plymstock, Plymstock, Devon, PL9 7AW

01752 401128

How much is your home worth?

Use our short form to request a valuation of your property.

Request a Valuation

Mortgage Calculator

Amount Borrowed: £
Total Amount Repayable: £
Total Monthly Payment: £
©2025 The Guild of Property Professionals. All rights reserved. Terms and Conditions | Privacy Policy | Cookie Policy | Complaints Policy | Members Login
The Guild of Property Professionals Trading Address: 121 Park Lane, London W1K 7AG. GPEA Limited. Registered in England & Wales.  Company No: 02819824.  Registered Office Address: 2 St. Stephen's Court, St. Stephen's Road, Bournemouth, Dorset, England, BH2 6LA.  VAT Registration No: 576 8795 61
Book a Property Valuation Update Cookies Preferences